Bungalov s garážou a terasou predstavuje moderné a funkčné riešenie bývania, ktoré spája komfort rodinného domu s praktickými výhodami integrovaného parkovacieho priestoru a vonkajšieho relaxačného zónu. Toto architektonické usporiadanie ponúka množstvo benefitov, od ochrany vozidla pred poveternostnými vplyvmi až po rozšírenie obytného priestoru, čím sa stáva atraktívnou voľbou pre široké spektrum domácností.

Pohodlný Prístup a Ochrana Vozidla
Jednou z najvýraznejších výhod bungalovu s garážou je bezpochyby pohodlie, ktoré poskytuje. S bungalovom s garážou sa premiestnite suchou nohou z auta až do domu aj počas toho najväčšieho nečasu. Táto priama väzba medzi garážou a obytnou časťou domu eliminuje potrebu vystupovať do dažďa, snehu či silného vetra, čo ocenia najmä rodiny s deťmi alebo starší ľudia. Navyše, jednoducho zložíte aj väčší rodinný nákup, či premiestnite deti z auta až do domu bez zbytočných komplikácií. Garáž slúži ako účinná ochrana vozidla pred nepriaznivými poveternostnými podmienkami, ako je slnečné žiarenie, krupobitie, mráz či sneh, čím predlžuje jeho životnosť a zachováva jeho vzhľad.
Optimalizácia Využitia Pozemku a Finančná Efektivita
Integrácia garáže priamo do konštrukcie domu prináša aj významné výhody z hľadiska využitia pozemku a nákladov na výstavbu. Garáž, ktorá je súčasťou domu, zaberá omnoho menšiu časť pozemku, než garáž či prístrešok, ktoré si postavíte na pozemku dodatočne. Týmto spôsobom sa maximalizuje využiteľná plocha pozemku pre záhradu, rekreačné aktivity alebo iné účely. Toto riešenie je zvyčajne aj menej finančne náročné, nakoľko časť garáže využíva priamo konštrukciu domu, a tak je jej stavba jednoduchšia, než je tomu pri samostatnej stavbe. Spoločné steny a strecha znižujú potrebu dodatočných stavebných materiálov a pracovnej sily.
Rozšírenie Obytného Priestoru: Terasa ako Srdce Domu
Kombinácia bungalovu s garážou a terasou transformuje dom na multifunkčný priestor, ktorý plne zodpovedá moderným požiadavkám na bývanie. Vďaka domu s garážou a terasou získate väčší úžitkový priestor. Priestor na terase je ako stvorený na vybudovanie relaxačnej zóny a umiestnenie napríklad posedenia, grilu či bylinkovej záhradky. Táto vonkajšia miestnosť sa stáva prirodzeným rozšírením obývacej izby, ideálnym miestom na trávenie voľného času s rodinou a priateľmi, organizovanie letných grilovačiek alebo jednoducho na vychutnávanie si čerstvého vzduchu a slnečných lúčov. Ako správne pristupovať k terase pri dome môže pomôcť aj názor odborníčky na dizajn a architektúru.

Multifunkčné Využitie Garážového Priestoru
Garážový priestor nie je obmedzený len na parkovanie automobilu. Priestor v garáži môže zase slúžiť okrem parkovania auta aj na skladovanie menších vecí, ako sú bicykle, záhradné náradie, pneumatiky či sezónne dekorácie. S vhodným usporiadaním a policovými systémami sa garáž môže premeniť na praktický skladovací priestor, ktorý pomáha udržiavať poriadok v dome.
Komfortné Bývanie s Potenciálnymi Nevýhodami
Dom s garážou a terasou vám prinesie komfortné bývanie, no, samozrejme, v porovnaní s bungalovmi bez terasy či garáže, má aj svoje nevýhody. Tými najhlavnejšími je najmä vyššia cena a taktiež väčšie nároky na veľkosť pozemku. Integrácia garáže a terasy si vyžaduje viac stavebného materiálu a komplexnejší projekt, čo sa odrazí na celkovej investícii. Taktiež je potrebné počítať s tým, že takýto dom si vyžaduje väčší pozemok, aby bolo dostatok miesta na samotnú stavbu, ako aj na okolie domu.
Výber Správneho Projektu: Individuálne Potreby a Možnosti
Pri výbere projektu bungalovu s garážou a terasou je kľúčové zohľadniť individuálne potreby, finančné možnosti a charakter pozemku. V prípade, ak si vyberiete projekt bungalovu s garážou a terasou, máte istotu, že celý dom ako celok bude spolu ladiť. Architektonické riešenie je navrhnuté tak, aby všetky prvky - dom, garáž a terasa - tvorili harmonický celok. Podobne, ako pri výbere každého projektu domu, aj pri výbere bungalovu s garážou a terasou zohrávajú hlavnú úlohu vaše potreby, finančné možnosti a v neposlednom rade pozemok, na ktorom bude bungalov umiestnený.
Rady architekta: 7 bežných chýb pri plánovaní + čo robiť namiesto toho
Príklady Projektov: Od Kompaktných po Priestranné
Katalógy moderných stavebných spoločností ponúkajú širokú škálu projektov bungalovov s garážou a terasou, ktoré uspokoja rôzne požiadavky.
Projekt Bungalovu 23: Kompaktné a Cenovo Dostupne Riešenie
Projekt bungalovu číslo 23 predstavuje náš najlacnejší a zároveň rozlohovo najmenej náročný projekt domu s garážou aj terasou. Vďaka projektu bungalovu 23 získate dom so 4 izbami, prístreškom na auto, zastrešenou terasou a úžitkovou plochou 99 m2. Celková zastavaná plocha predstavuje 143,30m2 a 8,86 m2 zastrešenie terasy, rozmery domu sú 11 x 11 m. Dom má kuchyňu oddelenú od obývačky a 3 spálne. Ideálne tak poslúži rodine s dvoma deťmi, ktorá hľadá funkčné a ekonomické riešenie. Oddelená kuchyňa poskytuje možnosť súkromia pri varení a oddeľuje kuchynské pachy od obytnej časti domu. Tri spálne zabezpečujú dostatočný priestor pre každého člena rodiny.
Projekt Bungalovu 38: Priestor a Moderný Dizajn
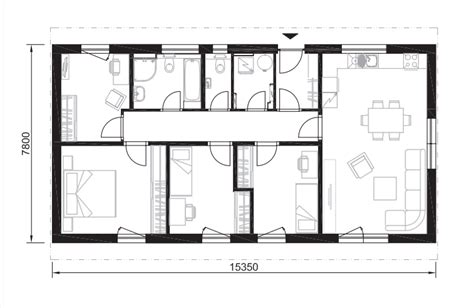
Vďaka projektu bungalovu 38 získate dom s priestrannou garážou a kuchyňou spojenou s obývačkou s východom na zastrešenú terasu. Celková úžitková plocha domu je 118,45 m2. Okrem 3 spálni, ponúka aj oddelené WC od kúpeľne a špajzu. Rozmery domu sú 15,45 x 11,5 m , zastavaná plocha 145,8 m2 + 16,98 m2 prestrešenie terasy. Koncept otvorenej dispozície kuchyne a obývačky podporuje sociálnu interakciu v rámci rodiny a vytvára dojem väčšej priestrannosti. Samostatné WC a špajza zvyšujú komfort a praktickosť bývania. Tento projekt je vhodný pre rodiny, ktoré uprednostňujú moderné a otvorené priestory.

Bungalov Číslo 1: Luxus a Priestrannosť
Bungalov číslo 1 je jednotka nielen čo sa týka názvu. Tento projekt bungalovu s garážou a terasou patrí k väčším domom. Okrem 3 spálni získate s týmto projektom aj kuchyňu spojenú s obývačkou, WC, kúpeľňu, technickú miestnosť a, samozrejme, priestrannú garáž a zastrešenú terasu. Úžitková plocha 135,00 m2 vám dopraje dostatok priestoru na všetko, na čo si len spomeniete. Celková zastavaná plocha tohto priestranného bungalovu predstavuje 157,41m2 + 12,90 m2 zastrešenie terasy +2,90 m2 zastrešenie vchodu, rozmery domu sú 16,20 x 12,00 m. Tento projekt je ideálny pre väčšie rodiny alebo pre tých, ktorí si cenia extra priestor a komfort, vrátane samostatnej technickej miestnosti na umiestnenie kotla, práčky a sušičky, čím sa uvoľní priestor v kúpeľni či kuchyni.
Všetky projekty domov s garážou a terasou z nášho katalógu nájdete na tejto stránke. Okrem katalógových projektov vám vieme pripraviť aj projekt bungalovu s garážou a terasou na mieru, ktorý presne splní všetky vaše potreby a očakávania.
Na Mieru: Dokonalé Prispôsobenie Vašim Potrebám
Možnosť vypracovania individuálneho projektu na mieru je kľúčová pre tých, ktorí majú špecifické predstavy o svojom bývaní. Projekt bungalovu s garážou a terasou na mieru umožňuje zohľadniť všetky vaše potreby a očakávania, od konkrétneho počtu izieb, cez veľkosť a orientáciu miestností, až po špecifické požiadavky na materiály a dizajn. Tento prístup zaručuje, že výsledný dom bude nielen funkčný a estetický, ale predovšetkým dokonale zodpovedať vášmu životnému štýlu.

Bungalov s podzemnou garážou predstavuje komplexné riešenie, ktoré spája vysokú úroveň komfortu, praktickosť a moderný dizajn. Integrácia garáže a terasy do celkového konceptu domu nielenže zvyšuje jeho úžitkovú hodnotu, ale tiež prispieva k lepšiemu využitiu pozemku a celkovej estetike bývania. Pri výbere vhodného projektu je dôležité dôkladne zvážiť vlastné potreby, finančné možnosti a charakter pozemku, pričom možnosť individuálnych úprav zaručuje, že výsledný dom bude plne zodpovedať vašim predstavám o ideálnom bývaní.