Vo svete bývania, kde sa priestor stáva čoraz cennejším artiklom, sa mnohí investori stretávajú s výzvou v podobe úzkych alebo atypických pozemkov. Tieto často zdedené či mestské parcely kladú špecifické nároky na projektovanie rodinných domov, kde tradičné štvorcové alebo obdĺžnikové pôdorysy nemusia byť vždy ideálnym riešením. Avšak, obavy z kompromisov v podobe neatraktívneho, nudného či nefunkčného bývania sú neopodstatnené. Moderná architektúra, najmä v oblasti drevostavieb a tradičných murovaných domov, ponúka inovatívne a funkčné riešenia aj pre tie najužšie pozemky. Spoločnosť Z500, s viac ako 12-ročnými skúsenosťami a viac ako 200 návrhmi domov na mieru, vychádza v ústrety práve týmto investorom, pričom ponúka široké spektrum typových domov, ktoré je možné prispôsobiť individuálnym potrebám a charakteristikám pozemku.

Výzvy a príležitosti úzkeho pozemku
Kúpa pozemku je často prvým krokom k stavbe vysnívaného domu. Avšak, nie každý pozemok má ideálne rozmery a tvar. Zdedené parcely, najmä v mestskom prostredí, môžu byť úzke, podlhovasté alebo nepravidelné, čo predstavuje značné obmedzenie pri navrhovaní. Hoci architekti ponúkajú širokú škálu návrhov, nájsť vhodný projekt pre úzky pozemok môže byť náročnejšie. To však neznamená, že musíme pristúpiť na kompromisy vo funkčnosti či estetike. Naopak, obmedzené rozmery pozemku môžu stimulovať kreativitu a viesť k originálnym architektonickým riešeniam.
Architektonické prístupy k úzkym parcelám
Spoločnosť Z500 reaguje na tieto výzvy ponukou rozsiahleho portfólia projektov špeciálne navrhnutých pre úzke a atypické pozemky. Tieto návrhy sa vyznačujú čistou a jednoduchou architektúrou, bez zbytočných prvkov ako arkierov, balkónov či oblúkov, čo prispieva k maximálnemu využitiu priestoru a znižuje náklady na výstavbu. Architekti sa zamerali na vytvorenie moderných, trvácnych a funkčných domov, ktoré spĺňajú požiadavky aj tých najnáročnejších investorov. V ponuke nájdete viac ako 80 takýchto návrhov, od klasických až po inovatívne riešenia, ktoré sa dajú jednoducho prispôsobiť špecifickým podmienkam pozemku.
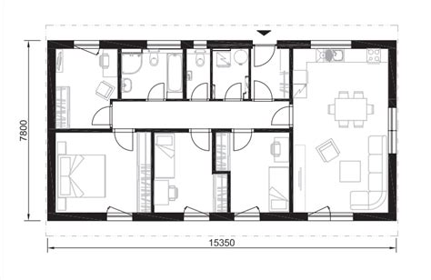
Bungalovy a poschodové domy na úzkom pozemku
Pri obmedzenej šírke pozemku sa často uvažuje o dvoch hlavných možnostiach: bungalov alebo poschodový dom.
Bungalovy predstavujú ideálne riešenie pre tých, ktorí preferujú jednopodlažné bývanie. Sú vhodné na rovinatý alebo mierne svahovitý terén a ponúkajú pohodlné a praktické usporiadanie priestoru. V ponuke Z500 nájdete rôzne typy bungalovov, od skromných 3-izbových domov ideálnych pre menšie rodiny, až po priestranné 6-izbové domy s veľkorysými rozmermi, ktoré zabezpečia dostatok súkromného priestoru pre každého člena rodiny. Tieto domy sú navrhnuté tak, aby maximálne využili dostupnú plochu a zároveň poskytli komfortné bývanie. Napríklad, 3-izbový rodinný dom s dvoma spálňami a útulnou obývacou izbou je skvelou voľbou pre troj- až štvorčlennú rodinu.

Poschodové domy sú vynikajúcou voľbou v prípade, ak je veľkosť pozemku limitujúca a zároveň chceme získať čo najväčšiu úžitkovú plochu. Prednosťou poschodových domov je možnosť efektívneho oddelenia dennej a nočnej časti domu, čo prispieva k lepšej funkčnosti a súkromiu. V ponuke Z500 nájdete moderné murované domy s viacerými izbami, ktoré spĺňajú požiadavky aj väčších rodín. Tieto projekty sú navrhnuté s dôrazom na optimalizáciu priestoru, pričom sa myslí aj na detaily ako sú garáže, terasy či verandy, ktoré sa dajú úspešne integrovať aj na úzky pozemok.
Technológia výstavby a možnosti prispôsobenia
Obmedzenia rozmerov pozemku nepredstavujú prekážku ani z hľadiska technológie výstavby. Na atypickom pozemku je možné postaviť dom v tradičnej murovanej technológii, ale aj v moderných technológiách, ako je napríklad kanadská technológia drevostavieb. Spoločnosť Z500 ponúka viac ako 50 typových domov na kľúč, ktoré je možné individuálne upraviť podľa potrieb a požiadaviek investora. Tím architektov drevostavieb je pripravený navrhnúť dom na mieru, ktorý bude dokonale vyhovovať vašim želaniam a možnostiam vášho pozemku.
Funkčnosť a vizuálna hodnota
Je dôležité si uvedomiť, že funkčnosť domu a jeho vizuálna hodnota sú primárne určované dizajnom - moderným, premysleným a prispôsobeným potrebám investora - a nie rozmermi alebo tvarom pozemku. Aj na úzkom pozemku je možné postaviť dom, ktorý bude nielen praktický, ale aj esteticky príťažlivý. Architekti Z500 sa snažia vytvárať projekty, ktoré odrážajú súčasné trendy, no zároveň zohľadňujú praktické aspekty bývania.
Typové domy pre rôzne potreby
V ponuke Z500 nájdete široký výber úžitkových plôch, od malých domov s rozlohou od 30 m² až po priestrannejšie domy do 150 m². Či už plánujete postaviť letný dom alebo celoročné bývanie, v ponuke Z500 nájdete projekt presne pre vás. Napríklad, priestranný rodinný dom s piatimi izbami je ideálny pre väčšiu rodinu, zatiaľ čo skromný 3-izbový dom postačí pre troj- až štvorčlennú rodinu.

Dvojdomy predstavujú ďalšiu zaujímavú možnosť, najmä ak susediace úzke pozemky patria rôznym majiteľom. Vzájomným postavením dvoch domov sa dá získať cenný priestor, napríklad na záhradu, a zároveň sa optimalizuje využitie oboch parciel.
Cena a kvalita
Spoločnosť Z500 kladie dôraz na najlepší pomer cena a kvalita. Ponúkané domy sú navrhnuté a skonštruované tak, aby boli cenovo čo najvýhodnejšie, bez zbytočných nákladov spojených so zložitými architektonickými prvkami. Investori získavajú kvalitné, moderné, trvácne a funkčné domy, ktoré spĺňajú ich očakávania a zároveň sú cenovo dostupné.

Záver
Napriek obmedzeniam, ktoré môže predstavovať úzky pozemok, je možné postaviť krásny, funkčný a moderný dom. Vďaka inovatívnym architektonickým prístupom a širokej ponuke typových domov, ktoré je možné prispôsobiť individuálnym potrebám, sa sny o vlastnom bývaní stávajú skutočnosťou aj na tých najneobvyklejších parcelách. Spoločnosť Z500 s dlhoročnými skúsenosťami a tímom profesionálov je pripravená pomôcť vám pri výbere alebo návrhu ideálneho domu pre váš úzky pozemok.