Snaha o vytvorenie kvalitného a funkčného domova je prirodzenou túžbou mnohých rodín. V dnešnej uponáhľanej dobe, kedy je čas vzácnou komoditou, sa čoraz viac ľudí obracia k riešeniam, ktoré spájajú efektivitu, pohodlie a moderný dizajn. Jedným z takýchto riešení je aj projekt bungalovu, ktorý sa v posledných rokoch teší rastúcej popularite. Tento článok sa detailne zameria na konkrétny projekt, Bungalov Klára, ktorý je navrhnutý s ohľadom na potreby štvorčlennej rodiny a ponúka nielen útulné bývanie, ale aj možnosť prispôsobenia sa individuálnym požiadavkám a finančným možnostiam. Zároveň sa dotkneme aj širšieho kontextu bývania v Žilinskom kraji, jeho historického vývoja a špecifík regiónu.

Koncept Bungalovu Klára: Pohodlie a funkčnosť pre každú rodinu
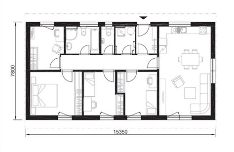
Bungalov Klára je navrhnutý ako ideálne bývanie pre štvordlennú rodinu, pričom jeho hlavným cieľom je poskytnúť maximálne pohodlie a uspokojiť nároky každého člena domácnosti. Útulné izby a celková dispozícia domu sú premyslené tak, aby vytvárali príjemné prostredie pre každodenný život. Výraznou výhodou projektu je dôraz na prirodzené presvetlenie interiéru. Veľké okná v obývacej izbe a spálni zabezpečujú dostatok denného svetla, čo nielenže pozitívne vplýva na atmosféru v dome, ale zároveň prispieva k zníženiu energetickej náročnosti.
Ďalším praktickým prvkom je samostatná technická miestnosť. Toto riešenie je neoceniteľné pre efektívne uskladnenie vecí, čím sa udržiava poriadok a minimalizuje sa neporiadok v obytných priestoroch. Táto miestnosť môže slúžiť na uskladnenie sezónnych potrieb, športového náčinia, alebo ako priestor pre umiestnenie práčky a sušičky, čím sa uvoľní priestor v kúpeľni alebo kuchyni.
Je dôležité poznamenať, že v základnej cene projektu nie je zahrnutá terasa ani jej prestrešenie. Tieto prvky však môžu byť pridané podľa požiadaviek klienta, čím sa rozšíri obytná plocha a vytvorí sa príjemné vonkajšie posedenie. Pôdorys a základné údaje projektu vychádzajú z katalógového bungalovu Klára, čo znamená, že sú overené a osvedčené, no zároveň poskytujú dostatočný priestor na individuálne úpravy.
ModerneDomy.sk - montáž domu RD Rýmařov krok za krokom
Prispôsobenie projektu individuálnym potrebám a možnostiam
Jednou z kľúčových predností prístupu spoločnosti je flexibilita a snaha vyhovieť individuálnym požiadavkám zákazníkov. Celý proces začína na základe návrhu klienta a po obhliadke pozemku. Náš projektant následne pripraví návrh domu, ktorý bude upravovaný až do úplnej spokojnosti zákazníka, pričom sa berú do úvahy aj jeho finančné možnosti. Tento prístup zabezpečuje, že výsledný dom bude nielen esteticky príťažlivý a funkčný, ale aj finančne dostupný.
Po finálnom odsúhlasení návrhu sa vypracuje kompletná projektová dokumentácia potrebná pre získanie stavebného povolenia. Tento krok je zásadný pre hladký priebeh celej stavby a zabezpečuje súlad s platnými predpismi a normami.
Spoločnosť tiež ponúka možnosť obhliadky ktoréhokoľvek z ich rozostavaných domov. Táto príležitosť umožňuje potenciálnym zákazníkom získať reálny obraz o kvalite práce, použitých materiáloch a celkovom prevedení stavieb. Je to vynikajúci spôsob, ako sa presvedčiť o profesionalite a precíznosti, s akou spoločnosť pristupuje ku každému projektu.
Okrem toho, spoločnosť dáva priestor aj na svojpomocné práce. Niektorí zákazníci túto možnosť radi využijú, či už z dôvodu úspory nákladov, alebo preto, že majú špecifické zručnosti a chcú sa aktívne podieľať na tvorbe svojho nového domova. Táto otvorenosť voči zapojeniu klienta do procesu výstavby je ďalším dôkazom snahy o maximálnu spokojnosť.
Alternatívne projekty a vlastné návrhy
Páči sa vám tento projekt, ale máte iné predstavy? Alebo ste si už sami navrhli dom svojich snov? Výborne! Spoločnosť je otvorená aj diskusii o iných projektoch alebo o vašich vlastných návrhoch. Tento prístup vychádza z presvedčenia, že dom je veľmi osobná záležitosť a mal by čo najlepšie odrážať individualitu a životný štýl jeho obyvateľov. Ak máte konkrétnu predstavu o dispozícii, veľkosti, štýle alebo dokonca o špecifických architektonických prvkoch, neváhajte sa obrátiť na ich projektantov. Spoločne môžete transformovať vaše nápady do realizovateľného projektu, ktorý bude spĺňať všetky vaše požiadavky.
Konštrukcia a materiály: Základ kvality a nízkej energetickej náročnosti
V prípade ponuky novostavby 4-izbového rodinného domu, ktorý je zvonku dokončený a zvnútra v štádiu hrubej stavby, je kladený dôraz na použitie kvalitných materiálov. Hrubá stavba je realizovaná z brúsených tehál, čo je tradičný a overený stavebný materiál známy svojimi výbornými tepelno-izolačnými vlastnosťami a akumuláciou tepla. Kompletne dokončená fasáda nie len že zabezpečuje estetický vzhľad domu, ale zároveň chráni konštrukciu pred poveternostnými vplyvmi.
Súčasťou exteriérových prác sú aj chodníky a spevnené plochy pre parkovanie, čo zvyšuje komfort a funkčnosť pozemku. Terasa, aj keď nie je v základnej cene, je často realizovaná ako súčasť exteriérových úprav, pričom možnosť jej prestrešenia poskytuje dodatočnú ochranu pred slnkom a dažďom. Predprípravy na exteriérové žalúzie sú ďalším praktickým prvkom, ktorý zvyšuje komfort bývania a umožňuje reguláciu svetla a tepla v interiéri.
Jednou z veľkých výhod tohto rodinného domu je jeho nízka energetická náročnosť. Tento aspekt je v dnešnej dobe čoraz dôležitejší nielen z hľadiska úspory nákladov na energie, ale aj z hľadiska ekologického prístupu k bývaniu. Použitie kvalitných materiálov v kombinácii s modernými stavebnými technológiami zabezpečuje, že dom bude efektívne hospodáriť s teplom, čo sa prejaví v nižších účtoch za vykurovanie a v príjemnejšej klíme počas celého roka.
V druhom podlaží domu sa nachádzajú tri samostatné izby. Tieto priestory sú navrhnuté s flexibilitou, aby mohli slúžiť rôznym účelom - ako hlavná spálňa, detské izby, pracovňa, hosťovská izba alebo dokonca ako hobby miestnosť. Možnosť vytvorenia samostatných izieb poskytuje súkromie a priestor pre každého člena rodiny. Celková plocha domu je 150 m², s pozemkom o rozlohe 510 m², čo predstavuje ideálnu veľkosť pre pohodlné bývanie.

Žilinský kraj: Historický kontext a demografické údaje
Územie Slovenska, a teda aj Žilinský kraj, má bohatú a dlhú históriu formovania štátnych útvarov a kultúrnych vplyvov. Prvé štátne útvary Slovanov na území dnešného Slovenska siahajú do 7. storočia (Samova ríša), neskôr nasledovalo Nitrianske kniežatstvo (začiatok 9. storočia), ktorého spojením s Moravským kniežatstvom vznikla v roku 833 Veľká Morava. Od polovice 10. do konca 11. storočia sa územie Slovenska postupne začlenilo do Uhorska. Po jeho rozpade v roku 1918 sa Slovensko stalo súčasťou Česko-Slovenska až do roku 1993, s výnimkou obdobia samostatnosti počas vojenskej Slovenskej republiky. Od roku 2004 je Slovensko členom Európskej únie a od roku 2007 aj členom Schengenského priestoru. Od 1. januára 2009 je platnou menou euro.
Žilinský kraj, kde je projekt Bungalov Klára situovaný, má svoje špecifické charakteristiky. K 21. máju 2011 bolo na jeho území evidovaných 144 948 domov, čo predstavovalo 13,5 % z celkového počtu domov v Slovenskej republike. Z tohto počtu bolo 120 788 obývaných, teda 83,3 %. Žilinský kraj sa v počte domov umiestnil na druhom mieste za Nitrianskym krajom (podiel 16,2 %). V rámci okresov kraja mal najvyšší počet domov okres Žilina (20,3 %), zatiaľ čo najmenej domov bolo v okrese Turčianske Teplice (3,3 %).
Z geomorfologického hľadiska celé toto hornaté územie spadá do Západných Karpát. Horské masívy v tejto lokalite sa sformovali pomerne nedávno, v období paleogénu. Vplyvom pohybov príkrovov došlo k vyzdvihovaniu pôvodných morských sedimentov, z ktorých postupne vznikli impozantné údolia. Po páde Veľkomoravskej ríše v roku 907, ku ktorej toto územie patrilo, bolo od 12. storočia prakticky až do roku 1918 súčasťou uhorského kráľovstva. V 13. storočí bola na obranu proti mongolským nájazdom vybudovaná stratégická sieť hradov, ako napríklad Hričov, Považský, Košecký, Lietavský a Strečniansky. Obdobie 16. storočia prinieslo miestnym obyvateľom chudobu a strach, najmä kvôli hrozbe tureckej okupácie a živelným pohromám. Koncom 19. storočia sa situácia začala postupne meniť s rozvojom priemyslu a infraštruktúry.
Občianska vybavenosť a život v obci
Obce, v ktorých sa takéto rodinné domy zvyčajne nachádzajú, sú často vybavené základnou občianskou vybavenosťou, ktorá zabezpečuje pohodlný život. V popise projektu sa spomína, že obec ponúka školu, škôlku a potraviny. Táto dostupnosť základných služieb je kľúčová pre rodiny s deťmi a pre zabezpečenie každodenných potrieb bez nutnosti dlhého cestovania. Lokalita v pokojnej slepej ulici rodinných domov navyše prispieva k pokojnému a bezpečnému bývaniu, kde je minimálna premávka a väčší dôraz na komunitný život.
Tieto faktory - kvalitná stavba, možnosť individuálnych úprav, nízka energetická náročnosť, ale aj príjemné prostredie a dostupná občianska vybavenosť - robia z Bungalovu Klára atraktívnu voľbu pre tých, ktorí hľadajú moderné, funkčné a cenovo dostupné bývanie na Slovensku.