Pri plánovaní výstavby rodinného domu či rekreačnej chaty sa často stretávame s rôznymi typmi pôdorysov a zastavaných plôch. Jedným z takýchto rozmerovo špecifických návrhov je bungalov s rozmermi 8x17 metrov. Táto konfigurácia, hoci na prvý pohľad nemusí pôsobiť ako najbežnejšia, ponúka zaujímavé možnosti pre efektívne využitie priestoru a vytvorenie funkčného a príjemného bývania. V tomto článku sa podrobne pozrieme na to, čo tieto rozmery znamenajú v praxi, aké výhody a nevýhody prinášajú a ako ich možno optimálne využiť pri návrhu interiéru.
Základná charakteristika a porovnanie rozmerov
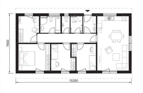
Rozmer 8x17 metrov znamená, že celková zastavaná plocha takéhoto bungalovu je 136 metrov štvorcových. Toto je relatívne veľkorysá plocha, ktorá umožňuje komfortné bývanie pre stredne veľkú rodinu alebo poskytuje dostatok priestoru pre rekreačné účely.
Pre lepšiu predstavu si môžeme tieto rozmery porovnať s inými bežnými typmi domov. Napríklad štandardný obdĺžnikový dom s rozmermi 10x10 metrov má tiež zastavanú plochu 100 m², čo je menej ako náš bungalov 8x17 m. Na druhej strane, dom s rozmermi 10x15 metrov by mal 150 m², čo je už o niečo viac. Dôležité je však uvedomiť si, že tvar pôdorysu výrazne ovplyvňuje vnútorné usporiadanie a vnímanie priestoru.
Bungalov s rozmermi 8x17 metrov je v podstate pretiahnutý obdĺžnik. Táto forma má svoje špecifické výhody a nevýhody, ktoré je potrebné zvážiť pri návrhu.

Výhody bungalovu s rozmermi 8x17 metrov
Jednou z najvýznamnejších výhod tohto rozmerového usporiadania je možnosť efektívneho využitia priestoru. Vďaka pretiahnutému tvaru je možné vytvoriť dlhšiu chodbu, ktorá môže slúžiť nielen ako komunikačný priestor, ale aj ako priestor na umiestnenie úložných skríň, knižníc alebo dokonca malého pracovného kútika. Tento typ pôdorysu tiež umožňuje dobré presvetlenie jednotlivých miestností, ak sú okná umiestnené na viacerých stranách domu, najmä na dlhších stranách.
Ďalšou výhodou môže byť flexibilita v dispozičnom riešení. Dlhší a užší tvar umožňuje rôzne usporiadanie miestností. Je možné vytvoriť oddelené zóny pre denné a nočné bývanie, alebo napríklad umiestniť viacero spální v jednej časti domu a spoločenské priestory v druhej. Tento formát je tiež ideálny pre vytvorenie priestranného otvoreného obývacieho priestoru, ktorý môže zahŕňať obývaciu izbu, jedáleň a kuchyňu v jednom celku.
Pre majiteľov pozemkov s obmedzenou šírkou, ale dostatočnou dĺžkou, môže byť bungalov 8x17 metrov ideálnym riešením, ktoré maximalizuje zastavanú plochu na danom pozemku. Taktiež je dôležité spomenúť, že bungalovy sú všeobecne vhodné pre starších ľudí alebo rodiny s malými deťmi, pretože bývanie na jednej úrovni eliminuje potrebu schodísk, čím sa zvyšuje bezpečnosť a komfort.
Nevýhody a výzvy spojené s rozmermi 8x17 metrov
Napriek mnohým výhodám prináša tento typ pôdorysu aj určité výzvy. Jednou z nich je potenciálne dlhá a úzka chodba, ktorá môže pôsobiť monotónne a neútulne, ak nie je správne navrhnutá a osvetlená. Je dôležité dbať na dostatočné presvetlenie chodby, napríklad umiestnením okien na jej koncoch alebo využitím presklených dverí.
Ďalšou nevýhodou môže byť potenciálne horšie presvetlenie vnútorných častí domu, najmä ak sú miestnosti umiestnené hlboko vo vnútri dispozície a nemajú dostatok okien smerujúcich do exteriéru. Toto sa dá čiastočne riešiť otvorenejšími dispozíciami a strategickým umiestnením okien.
Pri takto pretiahnutom tvare je tiež potrebné venovať pozornosť statike a konštrukčnému riešeniu, najmä pri dlhších nosných stenách. Je dôležité zabezpečiť dostatočnú pevnosť a stabilitu celej konštrukcie.
Z hľadiska nákladov na výstavbu môže byť pretiahnutý tvar bungalovu nákladnejší ako kompaktnejší dom s podobnou zastavanou plochou. Dôvodom je väčšia dĺžka obvodových stien a strešnej konštrukcie, čo znamená vyššiu spotrebu materiálu a potenciálne vyššie náklady na prácu.
Dispozičné možnosti a návrh interiéru
Pri návrhu interiéru bungalovu s rozmermi 8x17 metrov je kľúčové myslieť na funkčné rozdelenie priestoru. Existuje niekoľko osvedčených prístupov:
Rozdelenie na dennú a nočnú zónu: Jedna časť domu môže byť vyhradená pre spoločenské aktivity (obývacia izba, kuchyňa, jedáleň) a druhá pre súkromné bývanie (spálne, kúpeľne). Vďaka pretiahnutému tvaru je toto rozdelenie prirodzené a efektívne. Napríklad, na jednom konci môže byť vstupná hala, kuchyňa, obývacia izba a jedáleň, zatiaľ čo na druhom konci sa nachádzajú spálne a kúpeľne.

Otvorený koncept: Ako už bolo spomenuté, tento pôdorys je ideálny pre vytvorenie otvoreného obývacieho priestoru. Kuchyňa, jedáleň a obývacia izba môžu tvoriť jeden veľký, prepojený celok, ktorý pôsobí vzdušne a moderne. Toto riešenie je obzvlášť vhodné pre rodiny, ktoré chcú mať počas varenia a stolovania neustály kontakt s ostatnými členmi domácnosti.
Využitie chodby: Dlhú chodbu je možné premeniť z pasívneho komunikačného priestoru na aktívnu súčasť bývania. Môže slúžiť ako:
- Úložný priestor: Vstavané skrine na mieru môžu poskytnúť dostatok miesta na uloženie oblečenia, sezónnych potrieb alebo domácich potrieb.
- Pracovný kútik: Ak je chodba dostatočne široká, je možné do nej umiestniť malý písací stôl a vytvoriť tak kompaktný pracovný priestor.
- Detský kútik: V prípade potreby sa dá chodba čiastočne využiť aj na hru detí, napríklad s umiestnením nízkych poličiek na hračky.
- Dekoratívny prvok: Chodbu je možné oživiť obrazmi, fotografiami, rastlinami alebo zaujímavým osvetlením, čím sa stane príjemnejšou a menej jednotvárnou.
Počet a veľkosť izieb: S plochou 136 m² je možné navrhnúť bungalov s tromi až štyrmi spálňami, dvoma kúpeľňami, technickou miestnosťou a dostatočne priestrannou obývacou časťou. Veľkosť jednotlivých miestností je samozrejme možné prispôsobiť individuálnym potrebám.
Návrh interiéru rezidenčního domu - VITAE Design
Praktické aspekty výstavby
Pri výstavbe bungalovu s rozmermi 8x17 metrov je dôležité zvážiť niekoľko praktických aspektov:
- Orientácia na svetové strany: Správne nasmerovanie domu je kľúčové pre optimálne využitie denného svetla a minimalizáciu tepelných strát. Obývacia izba a jedáleň by mali ideálne smerovať na juh alebo juhovýchod, zatiaľ čo spálne by mohli byť orientované na východ alebo severovýchod.
- Strešná konštrukcia: Pretiahnutý tvar môže ovplyvniť výber strešnej konštrukcie. Zvážiť je možné sedlovú strechu, pultovú strechu alebo plochú strechu, pričom každá má svoje výhody a nevýhody z hľadiska konštrukcie, údržby a estetiky.
- Energetická efektívnosť: Pri takto veľkej zastavanej ploche je dôležité dbať na kvalitné zateplenie obvodových stien, strechy a základov, ako aj na výber moderných okien s nízkymi tepelnými stratami. Tým sa minimalizujú prevádzkové náklady na vykurovanie a chladenie.
- Napojenie na inžinierske siete: Dlhší tvar domu môže ovplyvniť umiestnenie a dĺžku prípojok na inžinierske siete (voda, kanalizácia, elektrina, plyn). Je potrebné to zohľadniť už vo fáze projektu.
Estetické a architektonické možnosti
Aj keď je pôdorys 8x17 metrov daný, existuje mnoho možností, ako dodať bungalovu atraktívny architektonický vzhľad.
- Fasáda: Moderné fasádne materiály ako drevené obklady, kamenné prvky, tehla alebo omietka v rôznych farebných odtieňoch môžu výrazne ovplyvniť celkový dojem z domu. Kombinácia viacerých materiálov môže dodať fasáde dynamiku a zaujímavosť.
- Strecha: Tvar strechy, či už sedlová, pultová alebo plochá, môže výrazne ovplyvniť architektonický štýl domu. Moderné ploché strechy môžu dodať domu minimalistický a súčasný vzhľad, zatiaľ čo tradičné sedlové strechy evokujú útulnosť a klasiku.
- Okná a dvere: Veľké presklené plochy, posuvné dvere a strategicky umiestnené okná môžu nielen zlepšiť presvetlenie interiéru, ale aj otvoriť dom smerom do záhrady a vytvoriť tak prepojenie medzi vnútorným a vonkajším priestorom.
- Záhradné úpravy: Okolie domu by malo dopĺňať jeho architektúru. Vhodné záhradné úpravy, chodníky, terasy a osvetlenie exteriéru môžu vytvoriť harmonický celok a zvýrazniť prednosti bungalovu.

Materiály a konštrukčné systémy
Pri výstavbe bungalovu 8x17 metrov je možné použiť rôzne konštrukčné systémy a materiály, ktoré ovplyvnia nielen cenu, ale aj tepelno-izolačné vlastnosti a životnosť stavby. Medzi najčastejšie patria:
- Tehlové murivo: Tradičný a osvedčený materiál, ktorý poskytuje dobré tepelno-izolačné vlastnosti a zvukovú izoláciu. V kombinácii s modernými zatepľovacími systémami je možné dosiahnuť vysokú energetickú efektivitu.
- Pórobetónové tvárnice: Ľahký a pevný materiál s vynikajúcimi tepelno-izolačnými vlastnosťami, ktorý umožňuje rýchlu výstavbu.
- Drevostavby: Moderné drevostavby ponúkajú rýchlu výstavbu, vynikajúce tepelno-izolačné vlastnosti a ekologický prístup. Tento systém je vhodný aj pre pretiahnuté konštrukcie.
- Konštrukcie z ocele alebo betónu: V niektorých prípadoch, najmä pri moderných architektonických riešeniach, môžu byť použité aj oceľové alebo betónové konštrukcie, ktoré umožňujú vytvorenie otvorených priestorov a netradičných tvarov.
Voľba materiálov by mala vždy zohľadňovať lokálne podmienky, klimatické pásmo, požiadavky na energetickú náročnosť a samozrejme aj finančný rozpočet.
Záver
Bungalov s rozmermi 8x17 metrov predstavuje zaujímavú alternatívu k tradičným obdĺžnikovým alebo štvorcovým pôdorysom. Jeho pretiahnutý tvar ponúka potenciál pre efektívne využitie priestoru, dobré presvetlenie a flexibilné dispozičné riešenia. Hoci prináša aj určité výzvy, ako je potenciálna monotónnosť chodby alebo náročnejšie presvetlenie vnútorných častí, pri správnom návrhu a dôrazom na detaily je možné vytvoriť moderné, funkčné a esteticky príťažlivé bývanie. Dôležité je zveriť návrh skúseným architektom, ktorí dokážu optimálne využiť prednosti daného pôdorysu a minimalizovať jeho nevýhody, čím sa dosiahne komfortné a dlhodobo udržateľné bývanie.