Hľadanie ideálneho bývania je často komplexný proces, ktorý spája požiadavky na komfort, priestor, lokalitu a v neposlednom rade aj na možnosť relaxácie v súkromí. V kontexte prenájmu 3-izbových bytov sa čoraz častejšie objavujú ponuky, ktoré idú nad rámec štandardného mestského bývania. Jednou z takýchto atraktívnych možností je 3-izbový byt so záhradou v obci Hviezdoslavov, ktorý spája výhody rodinného domu s pohodlím bytového komplexu.

Výhody bývania s vlastnou záhradou
Prenájom 3-izbového bytu so záhradou v Hviezdoslavove predstavuje jedinečnú príležitosť pre tých, ktorí túžia po dodatočnom priestore a možnostiach, ktoré štandardný byt neposkytuje. Záhrada pri byte nie je len estetickým doplnkom, ale multifunkčným prvkom, ktorý môže slúžiť na rôzne účely. Pre rodiny s deťmi predstavuje bezpečné ihrisko a priestor na hranie pod holým nebom. Pre milovníkov záhradkárčenia je to možnosť pestovať vlastnú zeleninu, bylinky či kvety. V neposlednom rade, záhrada poskytuje ideálne miesto na relaxáciu, grilovanie s priateľmi či pokojné posedenie s dobrou knihou, čím výrazne zvyšuje kvalitu života.
V ponukách sa často objavujú byty s priamym vstupom do záhrady, čo zabezpečuje maximálne súkromie a pohodlie. Tento typ bývania je obzvlášť atraktívny pre tých, ktorí hľadajú kompromis medzi pohodlím bytu a priestorom rodinného domu, bez nutnosti starať sa o údržbu celej nehnuteľnosti.
Lokalita Hviezdoslavov: Komplexný pohľad
Obec Hviezdoslavov, ktorá sa nachádza v okrese Dunajská Streda, si získava na popularite ako atraktívne miesto na bývanie. Jej strategická poloha umožňuje dobrú dostupnosť do blízkych miest, ako sú Šamorín, Dunajská Lužná či dokonca Bratislava, čo je ideálne pre pracujúcich dochádzajúcich do hlavného mesta. V posledných rokoch prešla obec značným rozvojom, čo sa prejavilo aj v ponuke moderných bytových projektov.

Hviezdoslavov ponúka pokojnejšie prostredie v porovnaní s ruchom veľkomesta, no zároveň poskytuje dostatočné občianske vybavenie pre každodenné potreby. Nájdete tu obchody, základné služby a postupne sa rozvíja aj infraštruktúra pre voľnočasové aktivity. Blízkosť prírody a možnosť tráviť čas v exteriéri sú ďalšími benefitmi, ktoré lokalita prináša.
Špecifické ponuky, ako napríklad "Prenájom 2-izbový byt s parkovaním Hviezdoslavov" či "Prenájom bytu v obci Hviezdoslavov", naznačujú rastúci dopyt po bývaní v tejto lokalite. Zmienka o "modernom a kompletne zariadenom 2-izbovom byte v obci Hviezdoslavov" a "úplne novom a pripravenom pre prvého nájomcu" sľubuje bývanie na vysokej úrovni s dôrazom na komfort a súkromie.
Charakteristika 3-izbových bytov so záhradou
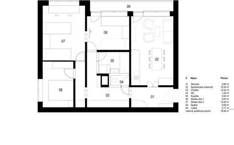
3-izbový byt so záhradou v Hviezdoslavove spravidla ponúka optimálnu dispozíciu pre rodiny alebo páry, ktoré potrebujú dostatok priestoru. Typicky sa skladá z obývacej izby spojenej s kuchynským kútom, dvoch samostatných spální a sociálneho zariadenia. Kľúčovým prvkom je prístup do záhrady, ktorý býva realizovaný cez obývaciu izbu alebo priamo z terasy.

V inzerátoch sa často stretávame s popisom "novozrekonštruovaný 3-izbový byt na prenájom" alebo "nový 3 izbový byt so záhradou". Tieto označenia svedčia o tom, že ponuka zahŕňa moderné bývanie s novými technológiami a kvalitným vybavením. Ceny prenájmu sa môžu líšiť v závislosti od konkrétnej lokality v rámci obce, veľkosti bytu, jeho vybavenia a stavu. V Hviezdoslavove sa ceny za prenájom 3-izbového bytu so záhradou pohybujú v rôznych reláciách, od približne 800 € až po 1480 € mesačne, ako naznačujú uvedené príklady. Ponuky ako "Prenájom kompletne zariadeného 3-izbového bytu v Moste pri B" alebo "Na prenájom 3 izbový byt v Šamoríne, ul. Dunajská 65 m2" ukazujú variabilitu v ponuke aj v blízkom okolí.
V ponuke sa nachádzajú aj byty s dodatočnými benefitmi ako "parkovanie", "klimatizácia" či "terasa", ktoré ďalej zvyšujú komfort bývania. Napríklad, "3-izb. byt na prenájom, Rovinka - novostavba, klimatizácia, parkovanie" alebo "PRENÁJOM--Moderný 3 izbový byt s terasou a záhradou - Jelka" ilustrujú rozmanitosť vybavenia a typov nehnuteľností.
Porovnanie s inými lokalitami a typmi nehnuteľností
Pri zvažovaní prenájmu 3-izbového bytu so záhradou v Hviezdoslavove je užitočné porovnať túto možnosť s inými lokalitami a typmi nehnuteľností.
Šamorín a okolie: Okolité obce ako Šamorín ponúkajú podobné typy nehnuteľností. Napríklad, "Novozrekonštruovaný 3 - izbový byt na prenájom" v Šamoríne s cenou 850 € alebo "Prenájom 3-izbový byt v Šamoríne" za 750 € sú priamymi konkurentmi. Tieto ponuky často zahŕňajú byty v bytových domoch, niektoré s prístupom na spoločné dvory alebo menšie terasy. Priestranné 3-izbové byty so záhradou v Šamoríne sa môžu pohybovať v cenovej relácii okolo 780 € až 1480 €, čo naznačuje, že Hviezdoslavov ponúka konkurencieschopné ceny, najmä ak zohľadníme potenciál rastu obce.
Rovinka a Dunajská Lužná: Tieto obce, taktiež v blízkosti Bratislavy, ponúkajú moderné novostavby. "Na prenájom 3 - izbový zariadený byt v bytovom dome v Rovinke" za 700 € alebo "Zariadený 3-izbový byt v obci Rovinka" za 680 € predstavujú cenovo dostupnejšie alternatívy, hoci nemusia vždy disponovať súkromnou záhradou. Ponuky ako "3-izb. byt na prenájom, Rovinka - novostavba, klimatizácia, parkovanie" za 900 € alebo "Prenájom 3 izb. bytu v Dunajskej Lužnej - Green Village" za 900 € sú už bližšie k štandardu bytov so záhradou, pričom cena je porovnateľná.
Most pri Bratislave a Veľký Biel: Tieto obce taktiež ponúkajú zaujímavé možnosti. "Prenájom kompletne zariadeného 3-izbového bytu v Moste pri B" za 630 € je jednou z cenovo výhodnejších ponúk. Na druhej strane, "Bývanie ako v dome: Štýlový 3-izbový byt vo Veľkom Bieli" za 1000 € predstavuje luxusnejšiu variantu. Dlhšie obdobie prenájmu, ako napríklad "Prenájom 3 izbový byt Most pri Bratislave" za 750 € po viac ako 6 mesiacoch, naznačuje stabilitu trhu.
Dobrohošť: Obec Dobrohošť ponúka napríklad "Prenájom 3i zariadeného bytu s predzáhradkou a parkingom" za 480 €. Táto cena je výrazne nižšia, čo môže naznačovať odlišnú úroveň vybavenia alebo polohu. Ide o príklad širšej škály cenových hladín dostupných v regióne.

Porovnanie s bytmi v centre mesta: Pri porovnaní s ponukami v centre mesta, ako napríklad "Na prenájom zariadený byt v centre mesta, Trenčín, ul. Hviez" alebo "Štýlový 2i byt, Hviezdoslavovo námestie, Staré", je zrejmé, že byty v centrách sú často drahšie, najmä ak sa nachádzajú v historických budovách alebo na lukratívnych adresách. Ponuky ako "2-IZB BYT v HISTORICKOM CENTRE MESTA" alebo "🔥 TOP lokalita + investičný potenciál | 1-izbový byt 36 m²| hviezdoslavova ul." naznačujú, že mestské bývanie, aj keď menšieho rozmeru, môže mať vyššiu cenu za meter štvorcový. Bývanie v Hviezdoslavove so záhradou tak ponúka výhodnejší pomer cena/úžitková hodnota pre tých, ktorí preferujú priestor a pokojnejšie prostredie.
Špecifické ponuky a potenciálne bývanie
Na základe poskytnutých informácií môžeme identifikovať niekoľko kľúčových typov ponúk, ktoré sa objavujú v súvislosti s prenájmom nehnuteľností:
- Byty v centre miest: Ponuky ako "Exkluzívna adresa: 1izbový byt centre na Kúpeľná ulici" alebo "Na prenájom zariadený byt v centre mesta, Trenčín, ul. Hviez" poukazujú na atraktivitu bývania v mestských centrách, kde je všetko na dosah ruky. Tieto byty, často menšieho rozmeru (1-izbové alebo 2-izbové), sú ideálne pre jednotlivcov alebo páry, ktoré uprednostňujú mestský životný štýl.
- Kancelárske a nebytové priestory: Informácie o "Kancelárske priestory v centre Námestova" alebo "Nebytový priestor o ploche 100 m2 nachádzajúci sa na hviezdoslavovej ulici 484 v centre mesta Senica" naznačujú dopyt po priestoroch na podnikanie. Tieto priestory sú často lokalizované na frekventovaných uliciach a sú vhodné pre rôzne druhy podnikania, od kancelárií až po kaderníctva či salóny.
- Rodinné domy: Ponuka "Moderný dom - ideálne sídlo pre Vašu firmu" v Dolnom Štále, ktorý je "úplne zrekonštruovaný rodinný dom na veľkom pozemku v pokojnej obci", predstavuje alternatívu pre firmy hľadajúce reprezentatívne sídlo s dostatkom priestoru a súkromia.
VIDEOobhliadka bytu na predaj 3 izbový byt so záhradou pri Bratislave, Hviezdne bývanie
Pri hľadaní 3-izbového bytu so záhradou v Hviezdoslavove je dôležité zohľadniť všetky faktory. Hoci priemerne ceny prenájmu v Hviezdoslavove sú uvádzané okolo 583 €, konkrétne ponuky 3-izbových bytov so záhradou, ako napríklad "Nový 3 izbový byt so záhradou v meste Šamorín na prenájom" za 1480 € alebo "PRENÁJOM--Moderný 3 izbový byt s terasou a záhradou - Jelka" za 900 €, ukazujú širšie cenové rozpätie a rôznorodosť ponuky.
Záujem o bývanie v Hviezdoslavove je evidentný, čo potvrdzujú aj informácie z platforiem ako Rentola. "There are currently 6 apartments for rent in Hviezdoslavov." Tieto ponuky zahŕňajú rôzne typy bytov, od štúdií až po viacizbové apartmány, a sú dostupné ako zariadené, tak aj nezariadené. Možnosť filtreovať ponuky podľa ceny, počtu izieb či lokality umožňuje nájsť ideálne bývanie.
Pri výbere 3-izbového bytu so záhradou v Hviezdoslavove je dôležité zvážiť aj aspekty ako dostupnosť občianskej vybavenosti, dopravnú infraštruktúru a celkovú atmosféru obce. Hviezdoslavov ponúka vyvážený mix pokojného vidieckeho života s dobrou dostupnosťou k mestským službám, čo z neho robí atraktívnu voľbu pre široké spektrum záujemcov.
Je tiež dôležité poznamenať, že niektoré ponuky, ako napríklad "Hľadám prenájom bytu v Šamoríne pre konkrétnych klientov" alebo "PRE ROBOTNÍKOV. Prenájom 3i byt v dome Železničná ul.Rovinka", naznačujú špecifické potreby a cieľové skupiny na trhu s nehnuteľnosťami. V kontexte 3-izbového bytu so záhradou v Hviezdoslavove je však primárnym cieľom nájsť komfortné a funkčné bývanie, ktoré spĺňa požiadavky na priestor, súkromie a relaxáciu.