Ružomberok, mesto s bohatou históriou a malebným prostredím, ponúka rôzne možnosti bývania. Medzi nimi sa často objavujú trojizbové byty, ktoré predstavujú ideálne riešenie pre rodiny, páry či jednotlivcov hľadajúcich dostatočný priestor a komfort. Jednou z takýchto ponúk, ktorá sa v minulosti objavila na trhu, bol trojizbový byt na ulici Ivana Houdeka, konkrétne na 9. poschodí dvanásťposchodového bytového domu. Hoci táto konkrétna ponuka už nemusí byť aktuálna, poskytuje cenný pohľad na typické vlastnosti bytov v tejto lokalite a na to, čo kupujúci môžu očakávať.

Dispozícia a Orientácia: Funkčnosť na prvom mieste
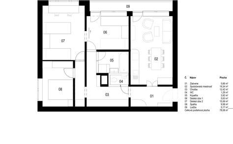
Byt na ulici Ivana Houdeka disponoval premyslenou dispozíciou, ktorá maximalizovala využitie priestoru. Vstupná hala plynule prechádzala do chodby, ktorá slúžila ako spojovacie centrum bytu. Z nej bol prístup do jednotlivých miestností. Kúpeľňa s vaňou a samostatné WC zabezpečovali komfort a súkromie. Dennú časť bytu tvorila obývacia miestnosť spolu s jednou izbou, ktoré boli orientované na juh. Táto orientácia zaručovala dostatok prirodzeného svetla počas dňa, čo prispievalo k príjemnej atmosfére. Kuchyňa a spálňa boli orientované na sever. Z kuchyne bol umožnený vstup na balkón o rozlohe 3 m², ktorý predstavoval príjemné miesto na relaxáciu alebo pestovanie menších rastlín.

Rekonštrukcia a Vybavenie: Modernizácia pre pohodlné bývanie
Byt prešiel čiastočnou rekonštrukciou, ktorá zvýšila jeho atraktivitu a komfort. V obývacej izbe, predsieni a chodbe boli položené plávajúce podlahy, ktoré sú nielen estetické, ale aj praktické na údržbu. V kuchyni bola použitá keramická dlažba a steny boli upravené stierkami, čo dodalo priestoru moderný vzhľad. Kuchyňa bola navyše vybavená na mieru robenou kuchynskou linkou so spotrebičmi, čo znamenalo, že noví majitelia nemuseli investovať do základného vybavenia. Jadro bytu však zostalo pôvodné, čo mohlo predstavovať priestor pre ďalšie úpravy podľa individuálnych preferencií.
Ústredné kúrenie bolo zabezpečené prostredníctvom panelových radiátorov, ktoré boli osadené termostatickými hlavicami a pomerovými meračmi tepla. Toto moderné riešenie umožňovalo efektívnejšiu reguláciu teploty a lepšiu kontrolu nad nákladmi na vykurovanie. Byt bol tiež pripravený na moderné komunikačné technológie, keďže mal prípojku káblovej televízie, internetu a pevnej telefónnej linky. K bytu navyše prislúchali dve pivnice o rozlohe 2 x 2 m², ktoré sa nachádzali priamo na poschodí bytu, čo poskytovalo dostatok úložného priestoru.
Bytový Dom a Okolie: Infraštruktúra a Príroda na dosah
Samotný bytový dom prešiel v roku 2012 komplexnou rekonštrukciou. Zateplenie fasády a strechy prispelo k lepšej energetickej efektivite budovy a zníženiu nákladov na vykurovanie. Hydroizolácia strechy zabezpečila ochranu pred vlhkosťou. Výmena rozvodov v stúpačkách bola dôležitým krokom k modernizácii a zvýšeniu bezpečnosti. Rekonštrukcia balkónov a hlavného vchodu s elektrickým vrátnikom navyše zlepšila celkový vzhľad a funkčnosť budovy.
Lokalita, v ktorej sa byt nachádzal, sídlisko Baničné, je charakterizovaná ako dobrá a tichá oblasť v tesnom spojení s prírodou. Táto kombinácia poskytuje obyvateľom pokojné bývanie s ľahkým prístupom k prírodným krásam, zároveň však zabezpečuje plnú občiansku vybavenosť. V bezprostrednej blízkosti sa nachádzali obchody, škola, škôlka, detské ihrisko, kostol, reštaurácia, pohostinstvo, lekáreň a zastávka autobusu. Táto vynikajúca dostupnosť služieb a dopravných spojení robí z lokality atraktívnu voľbu pre rôzne skupiny obyvateľov.
Finančné Aspekty: Dostupnosť a Možnosti Financovania
Cena bývania je vždy kľúčovým faktorom pri rozhodovaní o kúpe nehnuteľnosti. V prípade bytu na ulici Ivana Houdeka bola spomenutá splátka 151,64 € pri úrokovej sadzbe 1,49% na 30 rokov. Tieto údaje naznačujú, že byt bol potenciálne dostupný aj pre širšiu skupinu záujemcov, najmä ak bola možnosť využiť výhodné hypotekárne podmienky. Otázka "Potrebujete celú kúpnu cenu? Nájdeme riešenie aj pre Vás." naznačuje, že realitná kancelária bola pripravená pomôcť potenciálnym kupujúcim s financovaním, čo je bežná prax pri predaji nehnuteľností.

Širší Kontext Trhu s Nehnuteľnosťami v Ružomberku
Informácie o iných ponukách v Ružomberku poskytujú širší obraz o trhu s nehnuteľnosťami v meste. Objavujú sa tu rôzne typy bytov, od kompletne zariadených bytov s premyslenou dispozíciou na Bystrickej ceste, až po byty v rekonštrukcii v obciach ako Ľubochňa či Liptovská Osada. Niektoré ponuky boli označené ako "PREDANÉ" alebo "REZERVÁCIA", čo svedčí o dynamickom trhu a dopyte po nehnuteľnostiach. Ceny sa líšili v závislosti od lokality, veľkosti a stavu bytu, pričom sa pohybovali od symbolických cien (1,- €) pri predaných nehnuteľnostiach až po cenovky ako 120.000,- €.
Okrem predaja sú v Ružomberku dostupné aj byty na prenájom. Podľa dostupných údajov je v meste k dispozícii okolo 70 bytov na prenájom, s priemerným mesačným nájmom okolo 653 €. Ceny nájmov sa pohybujú od približne 250 € za menšie byty až po vyššie sumy za priestrannejšie alebo luxusnejšie nehnuteľnosti. Ponuka zahŕňa široké spektrum bytov, od garsónok až po trojizbové byty, čo umožňuje nájsť bývanie podľa individuálnych potrieb a rozpočtu. Zariadené byty sú tiež bežnou súčasťou ponuky, čo je výhodné pre tých, ktorí hľadajú okamžité riešenie bývania.
Porovnanie rôznych ponúk naznačuje, že Ružomberok ponúka rôznorodé možnosti bývania, ktoré uspokoja široké spektrum potrieb a preferencií. Lokalita na ulici Ivana Houdeka, s jej kombináciou pokojného prostredia, dobrej občianskej vybavenosti a blízkosti prírody, predstavuje atraktívnu voľbu pre mnohých.