Bratislavská mestská časť Ružinov, konkrétne jej časť Trnávka, predstavuje dynamicky sa rozvíjajúcu lokalitu s rastúcim záujmom o bývanie. V tomto kontexte sa často objavujú ponuky jednoizbových bytov, ktoré sú atraktívne pre jednotlivcov, páry, či ako investičná príležitosť. Tento článok sa zameriava na konkrétne bývanie v jednohviezdičkovom byte na ulici Slovinská, analyzujúc jeho charakteristiky, výhody a porovnávajúc ho s podobnými ponukami v širšej oblasti Ružinova.

Lokalita Slovinská: Kľúč k pohodlnému životu
Byt na Slovinskej ulici sa nachádza v mestskej časti Bratislava II - Ružinov, v časti Trnávka. Táto lokalita je charakteristická dobrou občianskou vybavenosťou a vynikajúcou dostupnosťou do centra mesta aj na diaľničný obchvat. V tesnej blízkosti do 10 minút autom sa nachádzajú významné nákupné centrá ako IKEA, Avion Shopping Park, Fresh Market a Klientske centrum. Zastávka mestskej hromadnej dopravy je vzdialená len 3 minúty chôdze, čo zabezpečuje rýchle a efektívne spojenie do centra mesta. Výhodou je tiež pomerne dobré parkovanie v okolí domu.

Charakteristika bytu na Slovinskej ulici
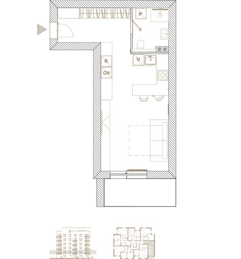
Ponúkaný jednoizbový byt na Slovinskej ulici má úžitkovú plochu 29,07 m² a nachádza sa na 2. poschodí zatepleného tehlového bytového domu, ktorý nemá výťah. Byt prešiel čiastočnou rekonštrukciou a je orientovaný na juhozápadnú stranu, čo zabezpečuje dostatok prirodzeného svetla.
Dispozícia bytu je prakticky riešená, s oddelenou spálňovou časťou od obývacej miestnosti spojenej s kuchyňou. Vstupná predsieň disponuje vstavaným zrkadlovým rolldorom s množstvom odkladacieho priestoru. Kuchyňa je vybavená kuchynskou linkou, chladničkou, mrazničkou, digestorom a elektrickým sporákom, pričom je čiastočne oddelená od obývacej časti praktickým pultom. Spálňová časť je prístupná cez zasúvacie dvere a obsahuje vstavanú skriňu. Kúpeľňa je spojená s toaletou a je vybavená vaňou a práčkou. V byte sú osadené plastové okná s interiérovými hliníkovými žalúziami a sieťkami proti hmyzu. Podlahy sú kombináciou plávajúcej podlahy a keramickej dlažby.

Tehlový dom a jeho výhody
Bytový dom, v ktorom sa byt nachádza, je tehlový a bol zateplený pred desiatimi rokmi, čo prispieva k jeho energetickej nenáročnosti a lepšej tepelnej izolácii. Tehlové stavby sú často spájané s vyššou kvalitou výstavby, dobrou akumuláciou tepla a zvukovou izoláciou v porovnaní s panelovými domami. Zateplenie navyše znižuje prevádzkové náklady na bývanie. Vstupná brána domu je zabezpečená na čip, čo zvyšuje bezpečnosť obyvateľov.
Porovnanie s inými ponukami v Ružinove
Lokalita Ružinov ponúka široké spektrum jednoizbových bytov, ktoré sa líšia veľkosťou, stavom, umiestnením v bytovom dome a cenou. Pri porovnaní s inými ponukami v Ružinove, napríklad na uliciach Miletičova, Kaštielska, Mierová, Prístavná, Súmračná, Trenčianska, Tomášiková, Kozmonautická či Galvaniho, môžeme vidieť rôzne cenové relácie a charakteristiky.
- Miletičova ul.: Ponúka väčší 1-izbový byt s výmerou 44,5 m² na zvýšenom prízemí tehlového domu za 190 000 €. K bytu patrí pivnica a prešiel čiastočnou rekonštrukciou.
- Kaštielska a Mierová ul.: 1-izbový byt v novostavbe s plochou 34,58 m² na 4. poschodí z 10, bezbariérový, za 180 000 €.
- Trnávka (priestrannejší byt): 1-izbový byt s plochou 45 m² za 183 500 €. Dispozícia zahŕňa vstupnú predsieň, obývaciu miestnosť s kuchyňou a priestorom na spanie, a priestrannú kúpeľňu s vaňou.
- Prístavná ulica: 1-izbový ateliér v novovznikajúcej rezidenčnej časti pri zimnom prístave, s možnosťou odpočtu DPH, s plochou 45,4 m² za 228 900 €.
- Mierová ulica (rezervované): Slnečný 1-izbový byt s úžitkovou plochou 40 m² plus lodžia a pivnica, na 5. poschodí, za 185 000 €.
- Súmračná ulica: Komfortný 1,5-izbový byt s balkónom za 199 000 €.
- Trenčianska/Miletičova ul.: 1-izbový byt s plochou 40 m², so samostatnou kuchyňou, vo vyhľadávanej lokalite, za 230 000 €.
- Prístavná ulica (nadštandardné bývanie): Nadštandardný 1-izbový byt na 3. poschodí, s mestským komfortom v exkluzívnej polohe, za 180 000 €.
- Tomášiková ulica (rezidencia Koloseo): Zariadený 1-izbový byt na 8. poschodí, orientovaný na východ, za cenu nešpecifikovanú v tomto výpise, ale popisovaný ako "TOP cena".
- Kozmonautická ulica: Krásny 1,5-izbový byt po kompletnej rekonštrukcii, za 150 000 €.
- Galvaniho (Avidol): Priestranný 1,5-izbový byt s výhľadom na zeleň, v staršej novostavbe z roku 2008, za cenu nešpecifikovanú v tomto výpise.
V porovnaní s týmito ponukami, byt na Slovinskej ulici s plochou 29,07 m² a cenou 190 000 € (v jednom z uvedených príkladov, hoci v texte sa cena priamo neuvádza, spomína sa len ponuka na predaj bez uvedenia ceny, ale predchádzajúca ponuka na Slovinskej ulici uvádza cenu 190 000 € a byt s podobnou výmerou), predstavuje menšiu, ale prakticky riešenú možnosť. Jeho výhodou je dobrá lokalita a tehlová konštrukcia domu. Niektoré iné ponuky ponúkajú väčšiu plochu, balkón, lodžiu alebo sú v novostavbách, čo sa odzrkadľuje aj na ich cene. Ateliér na Prístavnej ulici je cenovo najvyššie, zatiaľ čo 1,5-izbový byt na Kozmonautickej ulici za 150 000 € je najlacnejšou z uvedených, avšak po kompletnej rekonštrukcii.

Potenciál investície a bývania
Jednoizbový byt na Slovinskej ulici je ideálny ako štartovací byt pre jednotlivcov alebo mladé páry, ktoré hľadajú bývanie v obľúbenej lokalite s kompletnou občianskou vybavenosťou a výbornou dostupnosťou. Možnosť okamžitého nasťahovania po čiastočnej rekonštrukcii a praktické riešenie interiéru z neho robia atraktívnu ponuku. Okrem bývania má tento typ nehnuteľnosti aj značný investičný potenciál, vzhľadom na neustály dopyt po prenájmoch v Bratislave, najmä v lokalitách s dobrou infraštruktúrou a dopravným spojením.
Mesačné náklady spomenuté v jednom z opisov (130,- EUR pre 2 osoby) sú priaznivé a naznačujú efektívne hospodárenie s energiami, čo ďalej zvyšuje atraktivitu bytu z hľadiska prevádzkových nákladov.
Bratislava - Výstavba bytov (1953)
Záver
Byt na Slovinskej ulici v bratislavskej Trnávke predstavuje premyslenú voľbu pre tých, ktorí uprednostňujú bývanie v lokalite s výbornou občianskou vybavenosťou a dopravnou dostupnosťou. Jeho praktické dispozičné riešenie, tehlová konštrukcia domu a čiastočná rekonštrukcia ho robia atraktívnym ako pre vlastné bývanie, tak aj ako investíciu. Porovnanie s inými ponukami v Ružinove ukazuje, že hoci nie je najväčším ani najnovším bytom na trhu, jeho kombinácia lokality, stavu a potenciálu ho radí medzi zaujímavé možnosti na realitnom trhu.
tags: #1 #izbovy #byt #na #slovinskej