Pri zariaďovaní alebo rekonštrukcii bývania sa často stretávame s otázkou, aké rozmery by mali mať jednotlivé miestnosti, aby spĺňali nielen estetické, ale aj legislatívne požiadavky. Spálňa, ako intímne útočisko každého jednotlivca či páru, si zaslúži osobitnú pozornosť. Norma STN 73 4301 poskytuje rámec pre minimálne rozmery a funkčné usporiadanie obytných miestností, pričom zohľadňuje aj komfort a potreby budúcich obyvateľov.
Základné požiadavky na bývanie a obytné miestnosti
Bývanie je definované ako rodinný dom alebo byt, ktorý pozostáva z jednej alebo viacerých obytných miestností s vlastným príslušenstvom. Kľúčovým predpokladom je, že tieto priestory musia spĺňať požiadavky na trvalé bývanie z hľadiska stavebno-technického a funkčného usporiadania, ako aj celkového vybavenia. Pri kúpe nového bytu, a v niektorých prípadoch aj pri rekonštrukcii rodinného domu, existuje možnosť ovplyvniť veľkosť miestností, napríklad posunutím priečok. Je však nevyhnutné dbať na dodržiavanie minimálnych rozmerov stanovených stavebným zákonom a normami STN, vrátane STN EN.

Minimálne rozmery a odporúčania pre spálne
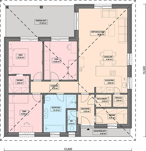
Norma STN 73 4301 stanovuje, že minimálna podlahová plocha obytnej miestnosti v byte by mala byť 8 m². Pre spálňu sa však odporúča minimálna plocha aspoň 10 m². Tieto predpísané veľkosti nezohľadňujú len počet obyvateľov, ale môžu byť ovplyvnené aj vekom, záujmami či povolaním budúcich užívateľov.
Konkrétne pre spálňu platí:
- Spálňa s jednou posteľou: Smerodajný rozmer miestnosti je minimálne 10 m² s minimálnou šírkou 2 metre.
- Spálňa s dvoma posteľami: Mala by mať plochu minimálne 14 m² a šírku aspoň 2,4 metra.
Je dôležité si uvedomiť, že tieto rozmery sú minimálne. Pri plánovaní je vhodné zohľadniť aj ďalší nábytok a vybavenie, ktoré sa v spálni nachádza. Napríklad, ak preferujete manželskú posteľ s rozmermi 180x200 cm, namiesto pôvodne zakresleného dvojlôžka s rozmermi 140x200 cm, priestor sa môže výrazne zmenšiť. Podobne, ak plánujete vstavaný šatník s hĺbkou 50 cm, štandardná šatníková skriňa s hĺbkou 60 cm bude z neho presahovať, čím sa zmenší celkový využiteľný priestor. Pred kúpou projektu katalógového domu je preto kľúčové skontrolovať reálne rozmery izieb, chodieb a kuchyne, aby nedošlo k sklamaniu pri zariaďovaní.
Výška miestností a jej význam
Okrem podlahovej plochy je dôležitá aj výška miestností. Norma STN 73 4301 definuje minimálnu svetlú výšku obytných miestností na 2,6 metra. V zmysle zákona je možné túto výšku za určitých podmienok znížiť na 2,4 metra. Pre obytné podkrovia sa odporúča výška 2,4 až 2,6 metra, s minimom 2,3 metra, pričom táto minimálna výška musí byť dodržaná nad polovicou pôdorysu.
V prípade rodinného domu, kde sa často spájajú obývacia izba s kuchyňou a jedálňou, sa pre zachovanie absolútneho pohodlia odporúča dopriať týmto viacúčelovým miestnostiam plochu 45 až 50 m². V rámci kuchyne je tiež dôležitý dostatočný voľný priestor pred jednostranne usporiadaným kuchynským zariadením, ktorý by mal byť minimálne 1,1 metra. Nezabúdajte ani na skladovanie potravín v odvetrávanej špajzovej skrini alebo komore, ktoré by nemali byť umiestnené vedľa komína alebo sporáka.

Preslnenie a prirodzené osvetlenie
Predpisy sa netýkajú len rozmerov, ale aj presvetlenia miestností. Dostatočné preslnenie obytných priestorov je zásadným faktorom pre zdravie a pohodu obyvateľov. Podľa normy STN 73 4301 by mal byť každý byt preslnený v období od 21. marca do 22. septembra. Pre byty s dvoma a viacerými obytnými miestnosťami platí, že aspoň jedna z nich musí byť preslnená minimálne 3 hodiny denne. Ak sa pred obývacou izbou alebo nad ňou nachádza balkón či lodžia, ktoré slúžia ako tieniaci prvok, postačuje dodržať požadovaný čas pre tzv. kritický deň, ktorým je 21. marec. Na Slovensku platí, že všetky obytné miestnosti bytu alebo rodinného domu musia byť osvetlené priamym denným svetlom.
Vplyv nábytku a dispozičného riešenia
Pri výbere katalógového rodinného domu je dôležité nenechať sa uniesť prvým pohľadom na pôdorysy s nábytkom. Často sú v projektoch zakreslené menšie rozmery postelí, sedačiek či pracovných stolov, ktoré môžu vytvárať ilúziu dostatočného priestoru. V reálnosti však štandardné rozmery nábytku môžu priestor výrazne zmenšiť. Taktiež umiestnenie vstavaných skríň či iných úložných priestorov môže ovplyvniť celkovú využiteľnosť miestnosti. Dôležité je zohľadniť aj atypické pôdorysy, ktoré môžu obmedziť využitie časti podlahovej plochy.
3 rýchle tipy na úložný priestor v malej spálni.
Detské izby a kúpeľne
Pri detských izbách sa odporúča sústrediť skôr na ich funkčné zariaďovanie než na predimenzovanie veľkosti. Rozloha 12 m² pre jedno dieťa je považovaná za veľkorysú, rovnako ako 20 m² pre dve deti. V praxi sa však často stretávame aj s menšími rozmermi, ktoré pri správnom usporiadaní postačujú.
Kúpeľňa by mala byť navrhnutá s ohľadom na to, či bude slúžiť aj návštevám. Pre kúpeľňu s toaletou a sprchovacím kútom postačuje 4 m². Ak ide o súkromnú kúpeľňu, môže mať pohodlných 10-12 m² a zahŕňať vaňu aj viaceré umývadlá. Pri plánovaní je dôležité zohľadniť aj umiestnenie práčky.
Technické miestnosti a garáže
Rozloha technickej miestnosti alebo garáže závisí od ich plánovaného využitia. Technická miestnosť môže mať 4 m², ale ak slúži aj ako sklad, môže byť potrebných až 12 m². Podobne garáž, pre niektorých stačí 30 m², iným nemusia postačovať ani rozmery dvojgaráže.
Praktický prístup k plánovaniu
Pri výbere projektu rodinného domu je dôležité byť praktický. Zohľadnite svoje aktuálne potreby a očakávania do budúcnosti, ale vyhýbajte sa zbytočnému zväčšovaniu rozmerov domu na základe neistých scenárov. Najobľúbenejšie projekty rodinných domov majú zvyčajne 4 až 5 obytných miestností, čo vyhovuje potrebám rodín s dvoma deťmi.
Pri definovaní ideálnych rozmerov domu je dôležité vziať do úvahy nielen normy, ale aj subjektívne vnímanie priestoru. Kým pre niekoho je komfortných 120-150 m², iný potrebuje viac. Kľúčom k spokojnému bývaniu je harmonické spojenie funkčnosti, dostatočného priestoru a dodržiavania platných noriem, ktoré zabezpečujú zdravé a bezpečné prostredie pre všetkých obyvateľov.

Dôležitosť správneho náčrtu a legislatívy
Pri plánovaní nového domu je nevyhnutné poznať legislatívu týkajúcu sa minimálnych počtov a rozmerov jednotlivých miestností. Rodinný dom by mal spĺňať základné kritériá: minimálne jeden, maximálne tri byty s vlastným vstupom, zázemie pre varenie, uskladňovanie potravín, osobnú hygienu a úložisko na upratovacie potreby. Pre všetky obytné miestnosti platí minimálna výška 2,6 metra (resp. 2,4 metra na hranici) a v prípade jedinej obytnej miestnosti podlahová plocha 18 m². Miestnosti musia byť priamo denne osvetlené, vetrateľné, vykurované a ich konštrukcie musia zabezpečovať dostatočnú tepelnú a akustickú ochranu.
Špecifické požiadavky na obytné miestnosti
- Obývacia izba: Často najväčšia miestnosť, ponúkajúca sa k viacúčelovému využitiu. Môže byť samostatná (odporúčaná plocha 20-25 m²) alebo spojená s jedálňou a kuchyňou (odporúčaná plocha 45-50 m²). V prípade spojenia je dôležitý dostatočný priestor pred kuchynským zariadením (min. 1,1 m) a priestor na skladovanie potravín.
- Spálňa: Norma STN 73 4301 uvádza minimálne 8 m², no pre komfortnejšie bývanie, najmä pre páry, sa odporúča aspoň 12 m². S ohľadom na súčasné trendy a potrebu umiestnenia väčších postelí, skríň či iného vybavenia, je vhodné počítať s plochou okolo 16 m².
- Detská izba: Minimálna plocha pre jedno dieťa je 8 m², pre dve deti 12 m². S ohľadom na nábytok, technológie a potrebu súkromia, je vhodné zvážiť priestornejšie riešenie, prípadne oddelenú herňu či študovňu.
- Kúpeľňa a WC: Pri viac ako piatich osobách v dome je nutné zariadiť minimálne dve umývadlá v rozdielnych miestnostiach. Samostatné WC by malo mať rozmery minimálne 900 mm x 1 100 mm. Kombinácia WC a kúpeľne je možná len v 1-izbových bytoch.
- Úložné priestory: V súčasnosti sa od skladovacích priestorov ako komory či pivnice často upúšťa v prospech efektívnejšieho hospodárenia s energiou. Odporúča sa však rátať s minimálne 1 m² na vstavané skrine v domoch s viac ako 2 izbami.
Dôkladné plánovanie a zohľadnenie legislatívnych požiadaviek a individuálnych potrieb sú kľúčové pre vytvorenie funkčného, pohodlného a zdravého bývania.