Plánujete stavať rodinný dom a práve si vyberáte projekt? Okrem dispozície, materiálov a štýlu domu je nevyhnutné myslieť aj na podmienky vyplývajúce z vášho pozemku. Kľúčovým aspektom je spôsob, akým na ňom môžete dom umiestniť. Dôležitým prvkom stavby sú totiž aj odstupové vzdialenosti od hranice pozemku a od susedných stavieb. Stavebný zákon a nadväzujúce vyhlášky presne definujú podmienky, ktoré je potrebné dodržať pri výstavbe. Tieto pravidlá sa musia dodržiavať pri umiestňovaní stavby na pozemku a zahŕňajú minimálne vzdialenosti budovy od hraníc pozemku, od okolitých stavieb a od komunikácie.

Rozhodnutie o umiestnení stavby: Čo všetko zahŕňa?
Rozhodnutím o umiestnení stavby sa primárne určuje stavebný pozemok a samotná stavba na ňom. Okrem toho toto rozhodnutie definuje podmienky pre umiestnenie stavby, ako aj požiadavky na obsah projektovej dokumentácie a časovú platnosť samotného rozhodnutia. Umiestnenie stavby je vždy vyznačené v grafickej prílohe územného rozhodnutia.
Podmienky umiestnenia stavby: Komplexný pohľad
Podmienky na umiestnenie stavby sú formulované tak, aby zabezpečili harmonický rozvoj územia a ochranu životného prostredia. Tieto podmienky zahŕňajú:
- Ochranu prírody a krajiny: Požiadavky na ochranu prírodného prostredia a zabezpečenie starostlivosti o životné prostredie sú neoddeliteľnou súčasťou každého stavebného projektu.
- Urbanistické a architektonické riešenie: Zabezpečenie súladu urbanistického a architektonického riešenia stavby s okolitým prostredím je kľúčové. To sa týka najmä výškového a polohového umiestnenia stavby, vrátane odstupov od hraníc pozemku a od susedných stavieb. Dôležitá je aj výška stavby, prístupnosť a užívanie stavieb osobami s obmedzenou schopnosťou pohybu a orientácie.
- Technické vybavenie a napojenie na infraštruktúru: Určujú sa požiadavky na napojenie stavby na siete technického vybavenia a na pozemné komunikácie. Taktiež sa definuje podiel zastavanej a nezastavanej plochy na stavebnom pozemku, vrátane požiadaviek na úpravu nezastavaných plôch.
- Špecifické podmienky územia: V prípade chránených častí krajiny alebo ich blízkosti sa uplatňujú osobitné podmienky.
- Stanoviská dotknutých orgánov: Všetky požiadavky vyplývajúce zo stanovísk dotknutých orgánov musia byť zohľadnené.
Ako na stavebné povolenie: aktuálne pravidlá a postupy
Kedy rozhodnutie o umiestnení stavby nie je potrebné?
Existujú situácie, kedy sa rozhodnutie o umiestnení stavby nevyžaduje. Medzi ne patria:
- Stavby podrobne riešené územným plánom zóny: Ak podmienky na umiestnenie stavby podrobne rieši záväzná časť územného plánu zóny, samostatné rozhodnutie sa nevyžaduje.
- Drobné stavby: Tieto stavby, ktoré majú doplnkovú funkciu k hlavnej stavbe a ich rozmer nepresahuje 25 m², nevyžadujú rozhodnutie o umiestnení.
- Stavebné úpravy a udržiavacie práce: Bežné úpravy a práce na existujúcich stavbách nevyžadujú špeciálne rozhodnutie o umiestnení.
- Stavby umiestňované v uzavretých priestoroch: Ak sa nemení vonkajšie pôdorysné ohraničenie a výškové usporiadanie priestoru existujúcich stavieb, rozhodnutie nie je potrebné.
- Reklamné stavby: V niektorých prípadoch ani reklamné stavby nevyžadujú osobitné rozhodnutie o umiestnení.
Spájanie konaní: Zjednodušenie procesu
Stavebný úrad môže spojiť územné konanie o umiestnení stavby so stavebným konaním, najmä pri jednoduchej stavbe alebo jej prístavbe a nadstavbe, ak sú podmienky umiestnenia jednoznačné. Pri ostatných stavbách sa tak môže stať, ak podmienky na ich umiestnenie vyplývajú z územného plánu zóny. V prípade jednoduchej stavby, jej prístavby alebo nadstavby môže stavebný úrad v rozhodnutí určiť, že na jej uskutočnenie postačí ohlásenie.
Odstupové vzdialenosti: Základ dobrých susedských vzťahov
V súčasnosti sa pri stavbe domu počíta každý meter pozemku, avšak je dôležité uvedomiť si, že dom nemožno postaviť hocikde. Zo zákona platia nariadenia, ktoré určujú, že dom môžete postaviť len s dodržaním určitých odstupov od hranice pozemku. Odstupy od hranice pozemku sú mimoriadne dôležitým prvkom, najmä čo sa týka susedských vzťahov. Nikto z nás by predsa nechcel, aby nám niekto postavil dom meter od toho nášho, čím by sme stratili dôležitý priestor a boli by nám zatienené okná. Práve preto je nevyhnutné zamerať sa na odstup stavby od hranice pozemku, pričom sa budeme zaoberať zákonom, odstupovými vzdialenosťami a bezpečnosťou.
V stavebníctve poznáme tri základné typy odstupov:
- Odstup medzi stavbami: Vzdialenosť medzi dvoma alebo viacerými budovami.
- Odstup stavby od hranice pozemku: Minimálna vzdialenosť, ktorú musí stavba dodržať od hranice pozemku, na ktorom sa nachádza.
- Odstup stavby od pozemnej komunikácie: Vzdialenosť stavby od okraja cesty alebo inej komunikácie, známa aj ako uličná čiara.
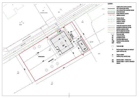
Odstupy stavby od hranice pozemku sú určené na to, aby spĺňali urbanistické, architektonické, hygienické a bezpečnostné požiadavky. Taktiež sú dôležité pre životné prostredie, ochranu povrchových alebo podzemných vôd. O odstupoch stavby od hranice pozemku nám priamo hovorí vyhláška č. 532/2002 Z. z. Ministerstva životného prostredia Slovenskej republiky o všeobecných technických požiadavkách na výstavbu.

Minimálne odstupové vzdialenosti podľa vyhlášky
Vyhláška č. 532/2002 Z. z. v § 6 detailne popisuje minimálne vzdialenosti a odstupy stavieb od hraníc pozemkov, susedných stavieb a od komunikácií. Tieto údaje následne ovplyvnia výber projektu stavby.
- Vzdialenosť rodinných domov od spoločných hraníc pozemkov: Nesmie byť menšia ako 2 metre.
- Vzdialenosť medzi rodinnými domami: Ak rodinné domy vytvárajú medzi sebou voľný priestor, vzdialenosť medzi nimi nesmie byť menšia ako 7 metrov. Z tohto vyplýva, že minimálna vzdialenosť, pri ktorej ešte môžu byť v protiľahlých stenách rodinných domov umiestnené okná z neobytných aj obytných miestností, je 7 metrov.
- Minimálna vzdialenosť priečelí budov s oknami obytných miestností od okraja pozemnej komunikácie: Musí byť najmenej 3 metre.
Vzájomné odstupy stavieb sa merajú na najkratších spojniciach medzi vonkajšími povrchmi obvodových stien. Vystupujúce časti stavby, ako balkóny, terasy, rímsy alebo striešky na prekrytie vstupu, sa zohľadňujú, ak presahujú viac ako 1,5 metra od obvodových stien stavby.
Stiesnené územné podmienky a stavba na hranici pozemku
V stiesnených územných podmienkach je možné vzdialenosť medzi rodinnými domami znížiť až na 4 metre, avšak len za predpokladu, že v žiadnej z protiľahlých stien nie sú okná obytných miestností. V takomto prípade sa nevyžaduje dodržanie vzdialenosti 2 metrov od spoločných hraníc pozemkov. Stiesnené pomery môžu vyplývať z rôznych faktorov, ako je nevhodná poloha pozemku, jeho tvar, veľkosť, základové pomery, konfigurácia terénu, jeho sklon a orientácia k svetovým stranám, negatívny vplyv už existujúcej okolitej zástavby, ochranné pásma alebo iné obmedzenia vyplývajúce z osobitných predpisov. Každý takýto prípad sa posudzuje individuálne.
Stavba na hranici pozemku je možná, avšak nesmie trvalo obmedziť užívanie susedného pozemku na určený účel. Ak sa na susednom pozemku nachádza dom postavený menej ako 4 metre od hranice, nemôžete osadiť nový dom na hranicu bez súhlasu suseda. Avšak, aj napriek súhlasu suseda, stavebný úrad môže stavbu zamietnuť, ak by došlo k trvalému obmedzeniu užívania susedného pozemku. V prípade rekonštrukcie stavby, ktorá je už postavená na hranici, je stavba na hranici dovolená.
Drobné stavby: Pravidlá pre doplnkové objekty
Drobné stavby, ktoré majú doplnkovú funkciu k hlavnej stavbe a ich rozmer nepresahuje 25 m², ako sú garáže, prístrešky či altánky, majú svoje špecifické pravidlá. Pre ich realizáciu zvyčajne postačí ohlásenie na stavebnom úrade. Pri drobnej stavbe je potrebné dodržať tzv. uličnú čiaru. Drobná stavba môže byť umiestnená aj na hranici pozemku, ak sú splnené podmienky, že to neobmedzí užívanie susedného pozemku na daný účel a nevznikne na susednom pozemku škoda.
Prakticky to znamená, že strechu drobnej stavby musíte spádovať od hranice tak, aby dažďová voda nestekala na susedný pozemok. Podobne je potrebné dbať na to, aby škoda na susednom pozemku nevznikla ani pri výsadbe stromčekov či inej zelene. Pri vysádzaní je potrebné myslieť na to, že v budúcnosti môžu konáre presahovať na susedný pozemok, čo môže byť zdrojom konfliktov.
Výsadba zelene a odstupové vzdialenosti
Vzdialenosť výsadby stromov a inej zelene od hranice pozemku je dôležitá pre predchádzanie konfliktom a škodám na majetku. Rizikom bývajú konáre zasahujúce do susedovho pozemku, korene prerastajúce pod plot, ale aj tienenie susedného pozemku vzrastlou zeleňou. Už pri vysádzaní malých stromčekov či kríkov je potrebné myslieť na ich budúci vývoj. Vzdialenosť je potrebné prispôsobiť konkrétnemu druhu a odhadovaným rozmerom, do ktorých môžu narásť.
Momentálne neexistuje právna norma, ktorá by presne určovala vzdialenosť stromov od hranice pozemku. Všeobecne sa však odporúča vzdialenosť 2,5 až 3 metre, no pri vyšších či širších drevinách môže byť táto vzdialenosť o 1 - 2 metre väčšia (na základe noriem a štúdií odborníkov z oblasti dendrológie). V prípade malých stromčekov či kríkov môže byť táto vzdialenosť menšia.
Orientácia na svetové strany a svetlotechnické hľadisko
Pri umiestňovaní rodinného domu na pozemku je potrebné vyhodnotiť aj možnosti zastavania susedných pozemkov a možnosť údržby stavieb a využívania priestorov medzi nimi. Podľa situácie na pozemku sa môže stavba posudzovať predovšetkým zo svetlotechnického hľadiska. Odstupy medzi budovami umožňujú presvetlenie obytných miestností domov, ale aj používanie priestoru medzi budovami, napríklad na ich údržbu. Nezabúdajte, že nielen odstupy od hraníc a susedných budov, ale aj orientácia na svetové strany je dôležitá. Pri nevhodnej polohe môže totiž dochádzať k nežiaducemu tieneniu susedných pozemkov.
Diskusia so susedmi a stavebný úrad
Pred plánovaním stavby alebo stavebných úprav je vždy vhodné svoje plány včas prediskutovať aj so susedmi. Otvorená komunikácia môže predísť mnohým nedorozumiam a konfliktom. V prípade akýchkoľvek nejasností alebo potreby ďalších informácií týkajúcich sa umiestnenia stavby rodinného domu na pozemku, vám radi poskytnú odbornú radu na príslušnom stavebnom úrade.
tags: #stavebny #zakon #umietsnenie #stavby