Väčšina ľudí, ktorí si splnili sen o vlastnom dome alebo chate, sa skôr či neskôr stretne s otázkou, kam umiestniť auto, kde uskladniť náradie, ako oplotiť pozemok, alebo kde postaviť altánok na relax s rodinou či priateľmi. Na tieto účely slúžia drobné stavby, ktoré dopĺňajú hlavnú stavbu a nemajú výrazný vplyv na životné prostredie. Je dôležité si uvedomiť, že aj drobná stavba si vyžaduje povolenie od obce, ktoré sa vydáva na základe ohlásenia drobnej stavby. Tento proces, vrátane správneho vypracovania situačného výkresu, je kľúčový pre hladké získanie potrebných povolení a zabránenie budúcim komplikáciám.
Definícia a Význam Drobných Stavieb
Drobné stavby sú definované ako stavby, ktoré majú doplnkovú funkciu k hlavnej stavbe, ako je napríklad stavba na bývanie, občianske vybavenie, výrobu, skladovanie alebo individuálnu rekreáciu. Zároveň by nemali podstatne ovplyvňovať životné prostredie. Svojím účelom a charakterom nesmie podstatne ovplyvniť životné prostredie. Medzi drobné stavby patria prízemné stavby, napríklad: rôzne prístrešky, práčovne, úschovne bicyklov či kočíkov (plocha nesmie presiahnuť 25 m² a výšku 5 m) a podzemné stavby, napríklad pivnica, žumpa (plocha nesmie presiahnuť 25 m² a hĺbku 3 m), tiež oplotenie, prípojky stavieb a pozemkov na verejné rozvodné siete a kanalizáciu atď. Podrobne je drobná stavba definovaná v ustanovení § 139b ods. 2 stavebného poriadku.

Čo Konkrétne Spadá Pod Drobné Stavby?
Stavebný poriadok presne vymedzuje, čo sa považuje za drobnú stavbu. Okrem už spomínaných prístreškov, práčovní a úschovní bicyklov, sem patria aj:
- Prízemné stavby s plochou do 25 m² a výškou maximálne 5 m: Toto zahŕňa širokú škálu objektov, od malých záhradných domčekov, cez letné kuchyne, až po technické miestnosti.
- Podzemné stavby s plochou do 25 m² a hĺbkou maximálne 3 m: Sem spadajú najmä pivnice, ale aj žumpy či malé sklady zemnín.
- Oplotenie: Akékoľvek oplotenie pozemku, ktoré spĺňa technické normy a nezasahuje do verejných priestranstiev alebo pozemkov susedov bez povolenia.
- Prípojky stavieb a pozemkov na verejné rozvodné siete a kanalizáciu: Tieto nevyhnutné infraštruktúrne prvky sú tiež klasifikované ako drobné stavby.
V praxi sa však môže vyskytnúť situácia, v ktorej stavebný úrad určí, že ohlásenú drobnú stavbu možno postaviť len na základe stavebného povolenia. Toto rozhodnutie závisí od konkrétnych okolností a potenciálneho vplyvu stavby na okolie.
Konzultácia a Plánovanie: Kľúč k Úspechu
Na začiatku celého procesu je vhodné zámer drobnej stavby prekonzultovať s obecným úradom. Odporúča sa aj konzultácia s architektom alebo statikom, najmä ak ide o technicky náročnejšiu konštrukciu. Za najefektívnejšie sa považuje, ak má stavebník vopred premyslenú polohu, tvar a rozmery všetkých doplnkových stavieb ešte pred začatím projekčnej prípravy hlavnej stavby. Projektant tak môže tieto objekty projekčne pripraviť už v čase, keď sa rieši projekt na stavebné povolenie. Schválenie bude v takomto prípade predmetom jedného schvaľovacieho procesu pre všetky doplnkové stavby a objekty v rámci stavebného povolenia.
Každý koncept urbanistického plánovania vysvetlený za 9 minút
Ohlásenie Drobnej Stavby: Postup Krok za Krokom
Vybavenie ohlásenia drobnej stavby je pomerne jednoduchý proces, ktorý by mal zvládnuť každý stavebník. Tlačivá potrebné na ohlásenie sú dostupné na webových stránkach obecných úradov. Stavebník je povinný uskutočnenie stavieb upravených v § 55 ods. 2 stavebného poriadku vopred písomne ohlásiť stavebnému úradu. Samotný proces ohlásenia stavebnému úradu upravuje § 57 stavebného poriadku. Drobú stavbu môžete začať stavať až keď prijmete písomné oznámenie miestne príslušného stavebného úradu, že nemá proti stavbe námietky. Ak stavebný úrad neurčí inak, súhlas by ste mali získať do 2 mesiacov od dátumu doručenia ohlásenia drobnej stavby. Stavebné práce musia byť začaté najneskôr do dvoch rokov od doručenia vyjadrenia stavebného úradu, že proti stavbe nemá námietky.
Potrebné Dokumenty a Podklady pre Ohlásenie
Na vybavenie ohlásenia drobnej stavby je potrebný podklad, ktorého základom je zakreslenie polohy objektu do katastrálnej mapy. Vyhláška Ministerstva životného prostredia Slovenskej republiky č. 453/2000 Z. z. upravuje okrem iného aj podrobnosti týkajúce sa ohlásenia drobnej stavby. K ohláseniu je potrebné priložiť:
- Doklad, ktorým sa preukazuje vlastnícke alebo iné právo k pozemku: Typicky ide o list vlastníctva alebo nájomnú zmluvu.
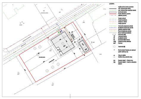
- Jednoduchý situačný výkres v dvoch vyhotoveniach: Tento výkres obsahuje vyznačenie umiestnenia stavby na pozemku vrátane odstupov od hraníc so susednými pozemkami a od susedných stavieb, ako aj základné stavebné riešenie stavby.
- Jednoduchý technický opis stavby: Stručný popis materiálového riešenia a konštrukcie stavby.
- Vyznačenie odstupových vzdialeností od susedných nehnuteľností s kótami: Tieto vzdialenosti sú kľúčové pre dodržanie súkromia a stavebných predpisov.
- Zakreslenie existujúcich inžinierskych sietí na pozemku: Aby sa predišlo poškodeniu podzemných vedení.
- Nákres drobnej stavby: Znázornenie pohľadov na stavbu a jej materiálové riešenie.
- Rozhodnutia, stanoviská, vyjadrenia, súhlasy, posúdenia alebo iné opatrenia dotknutých orgánov štátnej správy: V závislosti od charakteru stavby a jej umiestnenia.
- Ak bude drobnú stavbu realizovať stavebná firma: Je potrebné doložiť výpis z obchodného registra.
- Ak bude stavba realizovaná svojpomocne: Je nutné zabezpečiť stavebný dozor s príslušným oprávnením.
Vlastníkovi susednej nehnuteľnosti je potrebné predložiť situačný výkres s vyznačením odstupových vzdialeností.

Stavebný Dozor a Geometrický Plán
Stavebný dozor musí vypracovať vyhlásenie, že bude stavbu dozorovať. Táto osoba dohliada na správnosť postupu výstavby a dodržiavanie technických noriem. Ak ide o nadzemnú stavbu, ktorá má charakter budovy a bude sa evidovať v katastri nehnuteľností, je potrebné nechať geodetovi vyhotoviť geometrický plán, ktorý sa overí na príslušnom katastri. Geometrický plán je dôležitý najmä vtedy, ak sa menia hranice pozemku alebo ak ide o stavbu, ktorá má byť zapísaná do listu vlastníctva. Následne sa požiada obec o vydanie súpisného čísla, pričom obec rozhodne, či je súpisné číslo potrebné.
Ohlásenie vs. Stavebné Povolenie: Rozdielne Požiadavky
Základný rozdiel spočíva v rozsahu a komplexnosti procesu. Pre bazén do 25 m² postačuje ohlásenie drobnej stavby, zatiaľ čo pre bazén nad 25 m² je potrebné stavebné povolenie. Stavebné povolenie sa vo všeobecnosti vyžaduje pri stavbách každého druhu bez ohľadu na ich stavebnotechnické vyhotovenie, účel a čas trvania, ako aj pri zmene stavieb, najmä pri prístavbe, nadstavbe a stavebných úpravách. Ohlásenie stavebnému úradu postačí pri jednoduchej stavbe, jej prístavbe a nadstavbe, ak tak určil stavebný úrad v územnom rozhodnutí, pri drobných stavbách, ktoré plnia doplnkovú funkciu k hlavnej stavbe a ktoré nemôžu podstatne ovplyvniť životné prostredie.
Dôležitosť Dodržiavania Procesu Ohlásenia
Stavebníci často podceňujú význam ohlásenia drobnej stavby, argumentujúc tým, že ide o malú a "nepodstatnú" stavbu na ich vlastnom pozemku. Avšak, takéto úvahy môžu neskôr viesť k problémom. Ak by ste chceli nehnuteľnosť predať, mohol by sa zistiť rozpor medzi skutočným stavom na pozemku a stavom zapísaným na katastri, kde by "čierna stavba" neexistovala. Tento problém by mohol nastať aj pri dedičskom konaní alebo pri vypracovávaní znaleckého posudku. Pokutu môže dostať každý, kto uskutočňuje jednoduchú stavbu, drobnú stavbu, stavebné úpravy alebo udržiavacie práce, ktoré treba ohlásiť, bez takéhoto ohlásenia alebo v rozpore s ním. Dopúšťa sa priestupku v zmysle § 105 ods. 1 písm. d) stavebného poriadku.
Novela Stavebného Zákona a Jej Vplyv
Od 1. apríla 2024 vstúpila do platnosti novela stavebného zákona, podľa ktorej "čierne" drobné stavby nebude možné legalizovať a bude nutné ich odstránenie. Táto legislatívna zmena zdôrazňuje potrebu dôsledného dodržiavania stavebných predpisov a procesov, aj pri najmenších stavbách.
Zmeny Stavby Pred Dokončením: Ako Postupovať
V prípade, že potrebujete vykonať zmeny na stavbe pred jej dokončením, je potrebné podať žiadosť o zmenu stavby pred dokončením. K tejto žiadosti je potrebné doložiť:
- Dokumentáciu zmeny stavby (v 2 vyhotoveniach): Obsahuje súhrnnú správu, situačný výkres, stavebné výkresy a statické posúdenie (v prípade zásahu do nosnej konštrukcie).
- Výpis z katastra nehnuteľností alebo doklad o inom práve k pozemku alebo k stavbe.
- Kópiu pôvodného stavebného povolenia.
- Doklady o prejednaní s orgánmi štátnej správy a dotknutých organizácií.
- Písomné splnomocnenie, ak je stavebník zastúpený.
Správny poplatok za zmeny stavby na bývanie alebo individuálnu rekreáciu je 23,- €, za zmeny doplnkových stavieb 16,50 €. Formuláre na stiahnutie nájdete na webových stránkach príslušného stavebného úradu.
Všeobecné Požiadavky na Stavby
Bez ohľadu na veľkosť alebo typ stavby, všetky stavby musia spĺňať základné požiadavky na:
- Mechanickú odolnosť a stabilitu.
- Bezpečnosť v prípade požiaru.
- Hygienu, zdravie a životné prostredie.
- Bezpečnosť a prístupnosť pri užívaní.
- Ochranu proti hluku.
- Energetickú hospodárnosť.
Kto Môže Uskutočňovať Stavby
Stavbu môže realizovať len právnická alebo fyzická osoba, ktorá je oprávnená na vykonávanie stavebných prác. Pri uskutočňovaní drobných stavieb platí výnimka, že sa môžu realizovať aj svojpomocne so zabezpečením stavebného dozoru. Vedenie uskutočňovania stavby, ktoré nie je realizované svojpomocne, vykonáva stavbyvedúci.
Dotknuté Orgány a Ich Úloha
Dotknutým orgánom je orgán verejnej správy, ktorý je správnym orgánom chrániacim určené záujmy (napr. zdravie ľudí, zdravé životné podmienky). Sem patrí aj obec, ak nie je stavebným úradom, a tiež vlastník sietí a zariadení technického vybavenia územia. Ich stanoviská a súhlasy sú často nevyhnutnou súčasťou povoľovacieho procesu.
Kolaudácia Stavieb: Formalita aj pre Drobné Stavby?
Dokončenú stavbu, prípadne jej časť spôsobilú na samostatné užívanie, možno užívať len na základe kolaudačného rozhodnutia. Kolaudačné konanie vykonáva stavebný úrad, ktorý vydal stavebné povolenie. V prípade drobných stavieb však môže stavebný úrad v zmysle § 81c písm. a) stavebného poriadku od ich kolaudácie upustiť.
Určenie Súpisného a Orientačného Čísla
Obec určuje stavbám súpisné číslo a orientačné číslo. Vedie evidenciu týchto čísel a udržiava ju v súlade so skutočným stavom. Súpisné číslo je dôležité pre oficiálnu identifikáciu stavby, zatiaľ čo orientačné číslo slúži na jej ľahšiu lokalizáciu.
Vzdialenosť od Susedného Pozemku a Kataster
Vzdialenosť drobnej stavby od susedného pozemku nie je priamo upravená žiadnym všeobecným právnym predpisom. Vyhláškou Ministerstva životného prostredia Slovenskej republiky č. 532/2002 Z. z. je v § 6 stanovená len vzdialenosť medzi rodinnými domami. Preto je dôležité konzultovať tieto aspekty s obecným úradom a susedmi. Drobné stavby, ako napríklad garáž alebo prístrešok, sa spravidla do katastra nehnuteľností nezapisujú. Robí sa tak len v prípade, ak by išlo o drobnú stavbu s pevným základom, ktorá má charakter budovy. Posúdenie, či je drobná stavba predmetom evidencie katastra, vykoná príslušný úrad.
Situačný Výkres a Portál CICA
Úrad geodézie, kartografie a katastra Slovenskej republiky v minulosti spustil nový portál cica.vugk.sk s vyhľadávacou aplikáciou CICA. Táto aplikácia má za cieľ rýchlo, jednoducho a intuitívne vyhľadať a zobraziť výpis z listu vlastníctva. Ovládanie je možné aj výlučne s využitím počítačovej myši. Oproti staršiemu Katasterportálu je prehľadnejšia a hlavne je orientovaná na „bežného“ občana. Nemá ambíciu poskytovať prehľadávanie cez celé Slovensko ani služby a analýzy pre veľkých odberateľov údajov. Prostredníctvom webovej aplikácie CICA možno vyhľadávať údaje aj na mobilnom telefóne kdekoľvek, kde je k dispozícii signál. Je veľmi vhodná napríklad na rýchlu kontrolu toho, či sa pri konkrétnej nehnuteľnosti neobjaví plomba, ktorá by tam nemala byť. V novom vyhľadávači na portáli cica.vugk.sk bola plánovaná aj funkčnosť mapovej časti, ktorá by mala umožniť vyhľadanie a zobrazenie výpisu z listu vlastníctva konkrétnej parcely priamo v mape.
Zápis Nehnuteľnosti do Katastra
Konanie o zápise nehnuteľnosti do katastra sa začína podaním návrhu na vklad. Zápis sa urobí len za predpokladu, že sa neodhalí skutočnosť, ktorá by tomu bránila. Ak je všetko v poriadku, kataster vystaví pre nového majiteľa list vlastníctva. Do katastra sa vpíše právo k nehnuteľnosti, napríklad vlastnícke alebo záložné právo. Prílohy, ktoré sa prikladajú k návrhu na vklad do katastra zahŕňajú: zmluvu, na základe ktorej má byť právo k nehnuteľnosti zapísané; geometrický plán, ak nehnuteľnosť nie je v katastrálnej mape; verejnú listinu potvrdzujúcu právo k nehnuteľnosti, ak nie je priamo vpísané na liste vlastníctva; identifikáciu parciel, ak vlastnícke právo nie je vpísané na liste vlastníctva; ak je účastník zastupovaný splnomocnencom, dohodu o splnomocnení; potvrdenie o zmene priezviska v prípade rozvodu alebo vydaja.
V prípade, že máte kúpený pozemok, ktorý je uvedený v pozemkovej knihe, ale bez vkladu do katastra, a kataster ho nechce zapísať, je potrebné dôkladne preskúmať dôvody tohto odmietnutia a prípadne doplniť chýbajúce dokumenty alebo požiadať o odbornú pomoc.