Rodinné domy typu bungalov predstavujú obľúbenú voľbu pre mnohé slovenské domácnosti, ktoré snívajú o vlastnom bývaní. Bungalovy, ako prízemné stavby, ponúkajú rad výhod, od bezbariérovosti až po rýchlejšiu výstavbu. Tento článok sa zameriava na konkrétny projekt - bungalov s rozmermi 9x15 metrov, ktorý spája moderné architektonické prvky s praktickým dispozičným riešením a energetickou efektívnosťou.

Katalógové projekty verzus individuálne riešenia
Pri výbere projektu rodinného domu stoja potenciálni stavitelia pred dilemou: siahnuť po overenom katalógovom projekte, alebo zainvestovať do individuálneho návrhu? Katalógové projekty, ako napríklad spomínaný bungalov 9x15, sú ideálnou voľbou pre rovinaté pozemky a sú dostupné v rôznych štýloch, od klasických až po architektonicky odvážnejšie. Ponúkajú stovky elegantných riešení a sú komplexné, obsahujúce všetky potrebné výkresy a špecifikácie. Výhodou je tiež rýchle dodanie a priaznivejšia cena.
Projekty so zmenou predstavujú kompromis, ak sa vám páči katalógový projekt, ale chcete doň zakomponovať drobné úpravy. Týmto sa vyhnete nákladom a časovej náročnosti individuálneho projektu.
Individuálne projekty rodinných domov sú na druhej strane určené pre náročných investorov, najmä pri svahovitých alebo nadštandardných pozemkoch. Architekt pri nich zohľadňuje špecifické požiadavky klienta a charakteristiky pozemku, čím vzniká jedinečné a komfortné bývanie s potenciálne nádherným výhľadom.
Bungalov 9x15: Detaily projektu a dispozícia
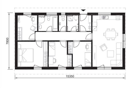
Projekt bungalovu s rozmermi 9x15 metrov je navrhnutý s dôrazom na maximálne využitie priestoru a komfort bývania pre 4-5 osôb. Tento typ domu sa často označuje aj ako Bungalov 15, čo naznačuje jeho vhodnosť pre rodiny so strednými nárokmi na priestor. Pri vstupe do domu vás privíta priestranná predsieň, ktorá môže byť vybavená veľkým šatníkom alebo predsieňovou zostavou nábytku. Vstupná chodba je strategicky oddelená od obytnej časti domu posuvnými dverami, čím sa zvyšuje súkromie a funkčnosť.

Jednou z kľúčových výhod tohto projektu je prepojenie obývačky s kuchyňou, čo je moderný trend prinášajúci do interiéru pocit vzdušnosti a priestrannosti. V tomto konkrétnom prípade je pre obývačku a kuchyňu vyčlenená podlahová plocha až 47,8 m². Optické zväčšenie priestoru je dosiahnuté aj vďaka strešným oknám, ktoré zabezpečujú dostatok prirodzeného svetla. Kuchynská linka je navrhnutá do tvaru U, s možnosťou umiestnenia barového pultu, ktorý slúži nielen ako súčasť kuchynského dizajnu, ale aj ako optické oddelenie kuchyne od obývačky. Praktickým doplnkom je komora pri kuchyni, ideálna na skladovanie potravín a iných potrieb. Obývacia miestnosť s krbom ponúka ideálne miesto na relaxáciu a prijímanie hostí. Vďaka svojej veľkorysej ploche umožňuje flexibilné zariedenie podľa individuálnych predstáv.
Spálňa v tomto bungalove je navrhnutá s ohľadom na dostatočný priestor, kde sa okrem manželskej postele pohodlne zmestí aj šatníková skriňa, komoda či iný doplnkový nábytok. Detské izby sú tiež priestranné, pričom väčšia z nich pojme dve postele, šatník a písacie stoly, pričom deťom zostáva dostatok miesta na hranie. Kúpeľňa je navrhnutá s ohľadom na každodenný zhon a zároveň poskytuje pohodlie pri večernej hygiene. Je dostatočne veľká na inštaláciu vane, umývadla, WC a dokonca aj práčky. Dodatočné WC je umiestnené pri vchode do domu pre väčšie pohodlie.
Ponúkame Vám na predaj novostavbu rodinného domu typu bungalov v Trenčíne, časť Záblatie.
Dispozičné riešenie tohto prízemného rodinného domu efektívne oddeľuje dennú a nočnú zónu, čím zabezpečuje viac súkromia pre obyvateľov. Bungalov 15 je možné realizovať na rovinatom až mierne svahovitom teréne.
Energetická efektívnosť a moderné štandardy
Moderné bungalovy, vrátane projektu 9x15, sa vyznačujú nízkou spotrebou energie. Všetky projekty sú dodávané v energetickej triede A0, čo znamená minimálne náklady na vykurovanie a prevádzku domu. Tento aspekt je čoraz dôležitejší nielen z hľadiska úspory financií, ale aj z hľadiska zodpovedného prístupu k životnému prostrediu.
Pri výbere projektu rodinného domu je dôležité zohľadniť aj energetickú hospodárnosť budovy. Projektové hodnotenie energetickej hospodárnosti je neoddeliteľnou súčasťou komplexnej dokumentácie, ktorá pomáha investorovi pochopiť energetickú náročnosť domu a potenciálne úspory.
Tvar bungalovu a jeho výhody
Bungalovy nie sú len klasické domy v tvare kocky. Architekti ponúkajú širokú škálu možností, ktoré sa prispôsobujú individuálnym potrebám a charakteristikám pozemku.
- Bungalov v tvare L: Ak máte dostatočne veľký pozemok, projekt bungalovu v tvare L môže byť ideálnou voľbou. Táto dispozícia umožňuje vytvorenie terasy krytej z dvoch strán, čo zabezpečuje súkromie a ochranu pred vetrom.
- Bungalov v tvare I (na úzky pozemok): Bungalovy sa dajú úspešne postaviť aj na veľmi úzkych pozemkoch. Projekty v tvare I sú navrhnuté tak, aby maximalizovali priestor a úložné možnosti aj na obmedzenom pôdoryse.
- Bungalov vo svahu: Aj keď väčšina ľudí uprednostňuje rovné pozemky, bungalov je možné prispôsobiť aj svahovitému terénu. Správne navrhnutý bungalov vo svahu môže mať svoje čaro, hoci si vyžaduje špecifické riešenia a môže byť spojený s vyššími nákladmi na výstavbu.

Cena rodinného domu: Čo ovplyvňuje náklady?
Otázka "Koľko stojí rodinný dom?" je jednou z najčastejších a zároveň najkomplexnejších. Cena sa líši v závislosti od mnohých faktorov, podobne ako pri autách. Základná výbava a "plná paľba" prinášajú rozdielne ceny. Najviac cenu ovplyvňuje veľkosť domu, no je dôležité sledovať cenu za m² pri úžitkovej ploche v rozmedzí 120-200 m². Cena za realizáciu zvyčajne zahŕňa kompletnú stavbu, podlahy, omietky, obkladačky, sanitu a technológie potrebné na nasťahovanie, s výnimkou nábytku a kuchynskej linky.
Vnútorná výbava môže cenu výrazne ovplyvniť. Napríklad rozdiel medzi lacnými laminátovými a kvalitnými drevenými podlahami môže pri 100 m² predstavovať až 6000 EUR, čo sa premietne do ceny 60 EUR na m². Podobne to platí pre omietky, obkladačky, okná, fasádu či vybavenie kúpeľní.
Veľké presklenia, tvar domu, podlažnosť a iné komplikácie môžu tvoriť až tretinu ceny domu, zatiaľ čo zvyšok súvisí s plochou a objemom. Priemerná cena práce tvorí približne 40-50% celkového rozpočtu realizácie na kľúč. Svojpomocná výstavba môže priniesť úspory, ale je dôležité ju dobre zvážiť, pretože neskúsenosť môže viesť k vyšším nákladom. Stavba na kľúč zabezpečuje zmluvne dohodnutú cenu, no je kľúčové vybrať si spoľahlivú firmu.

Výhody a nevýhody bungalovu oproti poschodovému domu
Pri rozhodovaní medzi bungalovom a poschodovým domom je dobré zvážiť ich špecifické výhody:
Výhody bungalovu:
- Bezbariérovosť: Jednoduchšia výstavba bezbariérových prístupov, čo ocenia najmä starší ľudia a rodiny s deťmi.
- Rýchlejšia výstavba: Obvykle je výstavba bungalovu o pár mesiacov rýchlejšia v porovnaní s poschodovým domom.
- Flexibilita dispozície: Miestnosti sa dajú navrhnúť bez ohľadu na náväznosť s ďalším podlažím.
- Širšia ponuka: Ponuka katalógových projektov bungalovov je často väčšia.
Výhody poschodového domu:
- Oddelenie zón: Jednoduchšie oddelenie dennej a nočnej časti domu.
- Výhľad: Z vyššieho podlažia je často lepší výhľad na okolie.
- Využitie svahu: Možnosť vytvorenia polozapusteného podlažia do svahovitého pozemku.
- Úspora plochy: Poschodové domy šetria plochu na pozemku.
Kompletná projektová dokumentácia
Kvalitné katalógové projekty domov, vrátane bungalovu 9x15, sú komplexné a podrobné. Okrem výkresov pôdorysov, rezov a pohľadov obsahujú aj presné výkazy výrobkov na objednávanie, detaily zábradlí, komínov a iných častí. Súčasťou sú aj projekty profesií ako statika, vykurovanie, zdravotechnika, elektroinštalácie či požiarna ochrana.
Dôležitou súčasťou je tiež projektové hodnotenie energetickej hospodárnosti budovy, výkaz výmer a položkový rozpočet. Pri kúpe projektu bývajú často súčasťou aj autorský súhlas na zmeny, digitálna podpora pri výstavbe a v prípade realizácie bez zmien aj energetický certifikát zadarmo.
Kompletná projektová dokumentácia zvyčajne zahŕňa:
- Projekt stavebnej časti: Obsahuje sprievodnú a súhrnnú technickú správu, výkresy základov, pôdorysy, rezy, pohľady, detaily, výkazy podláh, okien, dverí, muriva, strešnej krytiny a výkaz výmer.
- Projekt statiky: Zahŕňa technickú správu, statický výpočet, výkresy stropov, výstuže, vencov, prekladov, schodíšť a výkaz materiálu.
- Projekt vykurovania: Technická správa, výpočet spotreby energie, výkresy rozvodov ústredného kúrenia, schéma zapojenia kotla, umiestnenie vykurovacích telies a výkaz materiálu.
- Projekt zdravotechniky: Technická správa, výkresy vnútorného vodovodu, kanalizácie, plynovodu a výkaz materiálu.
- Projekt elektroinštalácií: Technická správa, rozvody zásuvkovej, svetelnej a motorickej elektroinštalácie, slaboprúdové rozvody, schéma rozvádzača, výkres bleskozvodu a výkaz materiálu.
- Projekt rekuperácie: Technická správa a výkresy.
Pri výbere projektu rodinného domu typu bungalov 9x15 je kľúčové zamerať sa na funkčnosť, zohľadniť svoje individuálne potreby a požiadavky všetkých členov domácnosti a predovšetkým si vybrať projekt, ktorý zodpovedá charakteru vášho pozemku.