Projekt Pri Mýte v bratislavskom Novom Meste predstavuje moderný rezidenčný komplex, ktorý bol navrhnutý s cieľom poskytnúť obyvateľom kvalitné mestské bývanie s dôrazom na estetiku, funkčnosť a komfort. Komplex, ktorý vznikol na mieste bývalej železničnej stanice Bratislava-filialka, medzi ulicami Račianska, Kominárska a Škultétyho, je rozdelený do troch etáp výstavby. Prvé dve etapy už boli úspešne dokončené a priniesli na trh celkovo 329 bytových jednotiek, zatiaľ čo tretia, záverečná etapa, dotvára celkový obraz tohto ambiciózneho projektu.

Architektonický Koncept a Urbanistické Riešenie
Hlavným architektom urbanistického konceptu celého obytného súboru je renomovaný slovinský ateliér Arhitektura Krušec, ktorý zvíťazil v súťaži v roku 2012. Ich vízia spočíva v šachovnicovom rozmiestnení jednotlivých sekciových objektov okolo centrálnej osi. Tento prístup umožňuje nerušené priehľady a napriek vyššej hustote zástavby zachováva dostatočnú intimitu pre jednotlivé objekty a ich obyvateľov. V prvej etape boli postavené štyri šesťpodlažné domy, ku ktorým neskôr pribudlo ďalších päť objektov, vrátane impozantného dvanásťpodlažného bloku. Celkovo tak vzniklo 329 bytových jednotiek s pestrou priestorovou skladbou, kde sú najsilnejšie zastúpené štandardné dvojizbové a trojizbové byty. Byty s najväčšou výmerou, teda štvorizbové a päťizbové, sú strategicky situované na najvyšších podlažiach výškovej stavby, čím ponúkajú svojim obyvateľom výnimočné výhľady.

Miestnym partnerom pri realizácii bol architektonický ateliér Vallo Sadovsky Architects, zatiaľ čo krajinnú architektúru a návrh sadových úprav mal na starosti slovinský ateliér AKKA. Ich spolupráca prispela k vytvoreniu harmonického celku, kde sa moderná architektúra snúbi s príjemným zeleným prostredím.
Inovatívna Architektúra a Fasádne Riešenia
Racionalita urbanistického riešenia sa prenáša aj do samotnej architektúry budov. Jednoduché monochromatické plochy fasád sú dynamicky členené sofistikovaným systémom posuvného tienenia. Tento prvok nielenže dodáva architektúre „živý“ výraz, ale zároveň poskytuje obyvateľom možnosť regulovať mieru súkromia a intenzitu slnečného svetla v ich lodžiách a bytoch. Perforované tieniace panely sú funkčným a zároveň estetickým doplnkom, ktorý prispieva k celkovej jedinečnosti projektu. Slovinskí architekti v sprievodnej správe zdôrazňujú: „Hmotovo jednoznačná fasáda kontrastuje s mäkkými a jemne zvlnenými líniami sadových úprav.“

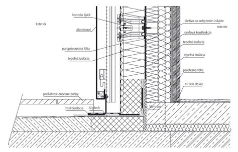
Nosnú konštrukciu domov tvorí robustný železobetónový skelet, ktorý je v bytových podlažiach vyplnený nenosným keramickým murivom. Murivo je kvalitne zateplené minerálnou vlnou a omietnuté štruktúrovanou fasádnou omietkou, čo zaisťuje energetickú efektívnosť a dlhú životnosť budov. Na loggiách sa ako tienenie využívajú spomínané posuvné perforované metalické panely, pričom podobné prvky sú integrované aj na oknách kúpeľní, osadené priamo v rovine fasády pre zachovanie čistého dizajnu.
Priestorový Koncept a Dispozície Bytov
Špecifickým rysom obytného súboru Pri Mýte je dôraz na preplávajúce byty, čo znamená, že väčšina bytov disponuje oknami a orientáciou na dve protipólne svetové strany. Hlavné priečelia a tým aj obytné priestory sú orientované na severovýchod a juhozápad, čo zabezpečuje optimálne presvetlenie počas celého dňa. Tento koncept, spolu s malým počtom bytových jednotiek prístupných z jedného podlažia a sekcie, umocňuje dojem menšej, intimnejšej obytnej štruktúry a prispieva k celkovému komfortu bývania.

Interiérové riešenia bytov sú navrhnuté s dôrazom na maximálne využitie priestoru a funkčnosť. Príkladom je minimalistický štvorizbový byt, ktorý bol navrhnutý pre mladú štvorčlennú rodinu. Návrh interiéru umožnil zasiahnuť aj do dispozície bytu pred jeho výstavbou, a tak ju prispôsobiť presným predstavám majiteľov. Dominantným materiálom v tomto byte je drevo, ktoré je doplnené monochromatickými prvkami, čím vyniká a zároveň vytvára harmonický celok. Nábytok na mieru zaisťuje efektívne využitie každého centimetra plochy a poskytuje dostatok úložných priestorov, ktoré nenarúšajú estetiku interiéru. Vstupná hala sa vyznačuje čistými líniami a jednoduchými tvarmi, pričom použitie dubovej podlahy rovnakej ako vo zvyšku bytu vytvára vizuálnu kontinuitu. Napriek čiastočnému presvetleniu prirodzeným svetlom je zariadenie navrhnuté v bielej farbe, aby pôsobilo vzdušne a priestranne.
Dennú časť bytu tvorí otvorený koncept kuchyne s ostrovčekom, jedálenského stola pre šesť osôb a komfortnej sedačky s rohovým ležadlom. Kuchynská zostava a skrinka pod televízor sú vyrobené na mieru, zatiaľ čo ostatné zariadenie pochádza od renomovaných výrobcov dizajnového nábytku. Čiernobiely dizajn kuchyne je dôsledne realizovaný, s výnimkou betónovej zásteny a nerezového digestora. Vysoké čierne kuchynské skrinky poskytujú dostatok úložných priestorov a integrujú vstavané spotrebiče. Minimalistický biely ostrovček s varnou doskou je dizajnovým centrom kuchynskej časti.
Obývacia časť je koncipovaná s dôrazom na pohodlie, s televíznou skrinkou, konferenčnými stolíkmi a exkluzívnou sedačkou s oceľovo-drevenou podnožou. Orientácia sedenia chrbtom k jedálenskej časti vizuálne vymedzuje priestor obývačky a zároveň mu dodáva pocit oddelenia a súkromia. V dennej zóne je použité trojité osvetlenie zodpovedajúce jej funkčným častiam: biele bodové svietidlá na čiernej lište osvetľujú kuchyňu, závesné svietidlá dominujú nad jedálenským stolom a silné svietidlo s difúznym zdrojom svetla je umiestnené nad obývacou časťou.
Spálňa je ladená do prírodných tónov s dominantným drevom na podlahe, nočných stolíkoch, šatníkovej skrini a posteli. Detská izba je navrhnutá s dvomi pracovnými miestami, dvomi posteľami a rebrovaním. Vďaka samostatnému šatníku je v izbe minimum ďalších úložných priestorov. Dizajn izby je hravý, no zároveň neutrálny, s decentnou kombináciou prírodného dreva a bielej farby. Kúpeľňa prístupná z nočnej zóny obsahuje umývadlo s dvomi batériami, toaletu s bidetovou sprškou a samostatnú mokrú zónu, ktorú tvorí sprchový kút s vaňou oddelený sklenenou zástenou.
Infraštruktúra a Verejné Priestory
Projekt Pri Mýte nie je len o modernom bývaní, ale aj o vytvorení plnohodnotného mestského prostredia s občianskou vybavenosťou a verejnými priestormi. Okrem rezidenčnej časti projekt ponúka aj kancelárske a retailové priestory, ktoré vďaka svojej polohe na Račianskej ulici predstavujú ideálne zázemie pre podnikanie. Tieto priestory profitujú zo skvelej polohy s vysokou frekvenciou ľudí a kompletnou občianskou vybavenosťou v okolí, čo z nich robí atraktívnu lokalitu pre firmy a obchody. Výber ideálneho kancelárskeho alebo obchodného priestoru v mestskom prostredí projektu Pri Mýte je preto pre podnikateľov výhodnou voľbou.
Posledná etapa projektu, ktorá bola zahájená spoločnosťou Penta Real Estate, prináša ďalší osempodlažný bytový dom. Ten okrem 98 bytových jednotiek na vyšších podlažiach ponúkne na prízemí aktívny parter s retailom a na druhom nadzemnom podlaží kancelárske priestory. Spoločnosť Penta Real Estate ukončuje tento úspešný projekt výstavbou posledného bytového domu, čím projektu Pri Mýte dodá jeho finálnu podobu.

Záujemcovia o bývanie v tretej etape projektu Pri Mýte ocenia nielen kvalitnú architektúru z pera architektonického ateliéru Sadovsky & Architects v spolupráci so Superatelier, ale aj jedinečné riešenie tienenia balkónov a vnútorného členenia bytov. Projekt zároveň rozšíri infraštruktúru o promenádu, park s fontánou prístupné verejnosti a nabíjacie stanice pre elektromobily, čím podporí udržateľný rozvoj a zvýši kvalitu života v danej lokalite.
Všetky parkovacie miesta sú situované pod poloverejnou promenádou, čo prispieva k čistejšiemu a príjemnejšiemu verejnému priestoru. Krajinná architektúra a riešenie verejných priestorov, na ktorom pracoval ateliér AKKA, má podnecovať k ich aktívnemu využitiu a podporovať vytváranie sociálnych väzieb medzi obyvateľmi. Nízke záhony, lemujúce bytové domy po celom ich obvode, vytvárajú jasnú hranicu medzi súkromným a verejným priestorom.
Na dokončenie čaká uličná čiara prebiehajúca pozdĺž Račianskej ulice a v budúcnosti by severozápadnú časť pozemku mal uzatvoriť ďalší obytný blok, čím sa projekt ešte viac integruje do mestského tkaniva.
Projekt Pri Mýte sa nachádza v tesnej blízkosti centra Bratislavy, čo obyvateľom poskytuje výhody mestského života s dostupnosťou služieb, kultúry a pracovných príležitostí. Lokalita a jej obyvatelia tak profitujú z nových služieb a skvalitnených verejných priestorov, ktoré projekt prináša. Projekt Pri Mýte sa stal úspešným príkladom moderného mestského bývania, ktoré spĺňa vysoké nároky na architektúru, komfort a integráciu do mestského prostredia. V roku 2018 bol projekt dokonca nominovaný na prestížnu architektonickú cenu CE-ZA-AR, čo potvrdzuje jeho kvalitu a výnimočnosť.
tags: #rezidencia #pri #myte #vykurovanie #bytu