Staré okná, najmä tie drevené, často predstavujú nielen architektonický klenot, ale aj potenciálny zdroj tepelných strát a diskomfortu. Ak si vaše okná pamätajú lepšie časy a vy uvažujete nad ich obnovou, rekonštrukcia starých okien v Prievidzi a jej okolí ponúka efektívne riešenie, ktoré zachová ich pôvodný charakter a zároveň im vdýchne nový život. Nestrácajte čas a financie za ich výmenu, ak je možné ich renovovať.

Prečo zvážiť rekonštrukciu starých okien?
Mnohí majitelia historických budov alebo starších rodinných domov sa stretávajú s dilemou: vymeniť staré okná za moderné, alebo ich dať zrenovovať? Odpoveď často závisí od individuálnych potrieb a hodnôt. Ak ste si všimli niekoľkých nedostatkov, ako napríklad neprimeraného rosenia okien a pocitu chladu v zime, prehrievania interiéru v lete či hluku zvonku, je čas sa zamyslieť nad renováciou. Tieto problémy signalizujú, že okná už neplnia svoju funkčnosť optimálne.
Páči sa vám historický dizajn vašich okien, no zdá sa vám, že okná už neplnia svoju funkčnosť? Historické a kastlové okná sú skutočným klenotom architektúry. Svoje čaro si uchovávajú po celé desaťročia, avšak časom môžu stratiť na funkčnosti či energetickej efektívnosti. Výmena starých okien za nové často stojí nemalé peniaze. My vám však ponúkame efektívne riešenie!

Kedy má renovácia okien zmysel?
Renovácia okien má zmysel len vtedy, ak sa kompletne vykoná s výmenou skla. Drobné renovácie bez výmeny skla (samotné natieranie alebo tesnenie) nerobíme. S renováciou okien máme bohaté skúsenosti. O tom by mohli rozprávať tisíce spokojných zákazníkov. Kto ich videl, obdivuje ich. Veľmi dobrá práca. Všetko, čo mi technik povedal pri zameraní okien, bola pravda. Montážna čata prišla načas, práca išla dobre, boli naozaj šikovní a montáž zvládli skôr, ako som očakával. Menší problém z mojej strany bol, že mám menší dvor a bol trochu problém zmestiť všetkých montérov. Z mojej strany úplná spokojnosť s prácou vašej spoločnosti.
Renovácia historických a kastlových okien
Spoločnosť Povrchovky sa špecializuje na rekonštrukcie historických a kastlových okien. Náš tím špecialistov na rekonštrukciu má za sebou množstvo zrealizovaných objektov, a preto vám vieme presne odporučiť, čo vaše historické okná potrebujú. Naši skúsení pracovníci vám na mieste profesionálne zrenovujú rámy okien, a to bez nutnosti stavebných zásahov. Jednou z výhod renovácie našou spoločnosťou sú nižšie náklady na renováciu historických okien oproti stavebným nákladom použitým na osadenie nových okien.
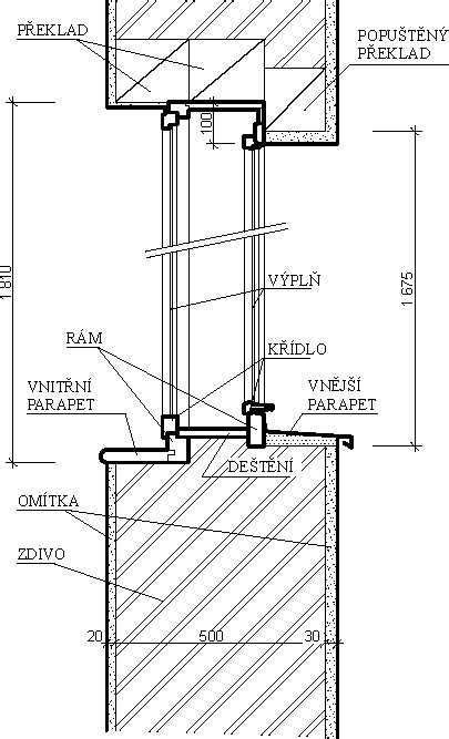
Máme za sebou množstvo renovácií v Bratislave, vo Viedni, vo Švajčiarsku, ale aj iných mestách v rámci Slovenska a Rakúska. Pri renovácii kastlových a špaletových okien používame vlastnú technológiu. Vonkajšie krídla nahradíme kópiami osadenými izolačným dvojsklom so zafrézovaným tesnením, ale zároveň s použitím klasických mechanizmov s tyčkami rozvorami a pololivami.

Vnútorné krídla meníme za kópie osadené 4 mm float sklom. Používame klasické okenné brzdy a zarážky, čím okno nestratí svoj historický pôvab a charakter. Vybrať si môžete z množstva klasických mosadzných kľučiek. Naše okenné krídla vyrábame zo smrekového dreva a používame vysokopevnostné rohové spoje, čo zaručuje dlhotrvajúcu tvarovú stabilitu okien.
Rámy okien renovujeme na mieste, detekujeme kritické miesta a hnilé komponenty nahradíme novými. S našou renováciou získate historické okná s novými vlastnosťami bez nutnosti robiť akékoľvek stavebné zásahy tak, ako pri výmene okien. Profiláciu okien vieme plne prispôsobiť požiadavkám či už KPÚ alebo zákazníka. Historické a kastlové okná sú charakteristickým znakom architektonického dedičstva. Naša odborná renovácia vám pomôže zachovať ich pôvodnú krásu a zároveň zlepšiť ich funkčnosť.
Pri renovácii historických okien sa zameriavame na dôkladnú diagnostiku, opravu drevených rámov, výmenu skiel a povrchovú úpravu. Skontrolujeme stav drevených rámov, skiel a povrchovej úpravy. Používame špeciálne techniky na opravu poškodených častí rámov. Ak je to potrebné, ponúkame výmenu starých skiel za nové izolačné sklá. Renovácia zachováva autentický vzhľad a historickú hodnotu okien, pričom zlepšuje ich funkčné vlastnosti.
Renovácia Okien
Servis a opravy okien a dverí v Prievidzi a okolí
Okrem renovácie starých drevených okien sa v regióne Prievidze poskytujú aj komplexné služby servisu a opráv iných typov okien a dverí. Spoločnosť Gu100, s.r.o. a AWF s. r .o. sa zameriavajú na servis plastových, hliníkových okien a dverí, predaj, montáž a servis žalúzií, roliet a sietí proti hmyzu. Ich služby zahŕňajú:
- Servis plastových okien a dverí: Nastavenie plastových okien, výmena tesnení, mazanie kovania, centrovanie krídel, odblokovanie zaseknutých dverí, výmena zámkov, tesnení, kovaní.
- Servis hliníkových okien a dverí: Podobne ako pri plastových oknách, aj hliníkové konštrukcie vyžadujú pravidelný servis a nastavenie.
- Servis eurookien: Oprava a výmena kovaní na eurooknách, výmena tesnení a kľučiek.
- Oprava balkónových dverí: Riešenie problémov s uvoľnením z pántov pri otváraní na vetranie.
- Výmena tesnení: Na plastových oknách, dverách a rámoch.
- Mazanie a nastavenie kovaní: Zabezpečenie plynulého a bezproblémového otvárania a zatvárania.
- Oprava nájdených závad: Odstránenie netesností, kadiaľ prefukuje vzduch.

Renovácia dverí a iné špecializované služby
Okrem okien sa služby často zameriavajú aj na renováciu a opravu dverí. Môže ísť o:
- Renovácia dverí v byte: Potreba renovácie na bledý dub aj so zárubňami.
- Natieranie drevených dverí: Zmena farby drevených dverí zelenou farbou/lakom, prípadne inými odtieňmi.
- Montáž samozatváračov a vrátnikov: Zabezpečenie komfortu a bezpečnosti vchodových dverí.
Spoločnosti ako INCON, spol. ROL s. r. o. alebo Bowi, s.r.o. sa zaoberajú aj dodávkou a montážou tieniacej techniky (žalúzie, rolety) a sietí proti hmyzu, čo sú neodmysliteľné doplnky pre každý moderný domov, najmä počas letných mesiacov. RD-TECH - Bc. Roman Dujsík sa tiež špecializuje na tieniacej technike a siete proti hmyzu. A.T.O.S. LR, s.r.o. sa zameriava na výrobu, dodávku a montáž poštových schránok, hliníkových okien, dverí a fasád.
Výhody spolupráce s odborníkmi
Spolupráca s firmami, ktoré majú viac ako 10-ročné skúsenosti v oblasti výroby a servisu okien (ako napríklad spomínané AWF s. r .o.), je zárukou dobre odvedenej práce. Poskytujú pozáručný servis okien, dverí a tieniacej techniky všetkých výrobcov pre rôzne bytové družstvá a spoločenstvá vlastníkov bytov, firmy i jednotlivcov. Cenu po obhliadke vám pripravia na mieru, čím zabezpečia transparentnosť a spokojnosť zákazníka.
Pri výbere spoločnosti je dôležité zohľadniť ich skúsenosti, referencie a rozsah poskytovaných služieb. Nestrácajte čas a obráťte sa na profesionálov, ktorí vám pomôžu zachovať krásu vášho domova a zároveň zabezpečia jeho funkčnosť a energetickú efektívnosť.
tags: #rekonstrukcia #starych #okien #prievidza #okolie