Tento projekt predstavuje moderný a funkčný návrh rodinného domu typu bungalov, ktorý je navrhnutý s dôrazom na komfort a praktickosť pre bývanie na slovenskom trhu. Jeho konštrukcia a dispozícia sú optimalizované tak, aby spĺňali požiadavky súčasného klienta, pričom zároveň ponúkajú priestor pre individuálne úpravy a prispôsobenie podľa osobných predstáv. Projekt je primárne určený pre inšpiráciu a môže byť ľubovoľne upravený podľa Vašich predstáv. Taktiež sa môžete inšpirovať vizualizáciami z akéhokoľvek iného zdroja.

Základné informácie a filozofia projektu
Dvojgeneračný rodinný dom je vhodným riešením pre každého, kto chce mať svoje vlastné bývanie, ale zároveň mať svoju rodinu vždy nablízku. Vďaka jednopodlažnému prevedeniu sa vyhnete schodom a ušetríte zastavanú plochu. Projekt dvojgeneračného rodinného domu č.71 so samostatnými vchodmi je výborným riešením aj pre úzky pozemok. Bungalov je možné upraviť podľa požiadaviek. Menšiu časť je navrhnutá tak, aby ju bolo možné plnohodnotne využívať aj ako hosťovskú časť. Vďaka prepojeniu bytov je ich údržba a užívanie pohodlnejšie. Terasu, ktorá je navrhnutá oddelene, môžeme spojiť, prestrešiť a bude využívaná spoločne. Dvojgeneračné rodinné domy sa na Slovensku tešia veľkej obľube.
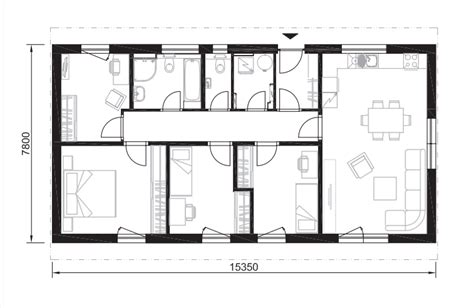
Nízkoenergetické bungalovy sú najžiadanejším typom projektov rodinných domov. Tento krásny murovaný rodinný dom väčších rozmerov uspokojí všetky požiadavky väčšej rodiny, nakoľko disponuje až štyrmi spálňami. Projekt poschodového domu je ideálnou voľbou v prípade, ak sme obmedzení veľkosťou pozemku a zároveň chceme získať čo najväčšiu úžitkovú plochu. Tento priestranný 4 izbový rodinný dom je ideálny pre väčšiu rodinu.
Notoricky známy projekt bungalovu, vhodný na rovinatý alebo mierne svahovitý terén. Tento priestranný rodinný dom je vhodný pre väčšiu - päťčlennú alebo štvorčlennú rodinu s hosťovskou izbou. Projekt poschodového domu je ideálnou voľbou v prípade, ak sme obmedzení veľkosťou pozemku a zároveň chceme získať čo najväčšiu úžitkovú plochu.
Projekt bungalovu predstavuje ideálne bývanie pre tých, ktorí uprednostňujú jednopodlažné rodinné domy. 5 izbový dom vhodný pre väčšie rodiny. Krásny projekt bungalovu, vhodný na rovinatý alebo mierne svahovitý terén. Tento priestranný rodinný dom je vhodný pre väčšiu - päťčlennú alebo štvorčlennú rodinu s hosťovskou izbou. Projekty poschodových domov uprednostňujú hlavne rodiny, ktoré majú radi oddelené denné a nočné časti domu. 5 izbový dom vhodný pre väčšie rodiny. Projekt poschodového domu je ideálnou voľbou v prípade, ak sme obmedzení veľkosťou pozemku a zároveň chceme získať čo najväčšiu úžitkovú plochu. Projekt poschodového domu je ideálnou voľbou v prípade, ak sme obmedzení veľkosťou pozemku a zároveň chceme získať čo najväčšiu úžitkovú plochu. Projekt poschodového domu je ideálnou voľbou v prípade, ak sme obmedzení veľkosťou pozemku a zároveň chceme získať čo najväčšiu úžitkovú plochu. Tento priestranný 4 izbový rodinný dom je ideálny pre väčšiu rodinu.
Nie každý pozemok dovolí výstavbu priestranného bungalovu, ale ani to nie je dôvod, prečo by sa na ňom nedala realizovať výstavba montovaného domu. Napríklad náš Projekt 2 je navrhnutý práve pre malé a úzke pozemky. Na prvom podlaží sa hneď zo zádveria dostaneme do kúpeľne a technickej miestnosti. Dominantou tohto poschodia je obývacia izba s jedálňou a kuchyňou zalomenou do „L“. Keď vybehneme po schodoch na druhé podlažie, dostaneme sa do obytnej časti, kde sa nachádzajú tri spálne.
Našou snahou je realizovať vysokokvalitné stavby na podklade vypracovanej projektovej dokumentácie, pričom vyhovieme požiadavkám zákazníkov. Na základe Vášho návrhu a po obhliadke pozemku Vám náš projektant pripraví návrh domu. Tento bude upravovať až k Vašej úplnej spokojnosti, poprípade finančným možnostiam. Následne vypracuje kompletnú projektovú dokumentáciu pre účely stavebného povolenia. Ponúkame možnosť obhliadky ktoréhokoľvek nášho rozostavaného domu, kde sa oboznámite s našou prácou. V prípade záujmu nás kontaktujte na t.č.

Technická špecifikácia a materiály
1. Projektová dokumentácia a osadenie:Vypracovanie kompletnej Projektovej dokumentácie podľa individuálnych požiadaviek a predstáv klienta, ako podkladu pri vybavovaní stavebného povolenia. Geodetické zameranie a osadenie budúcej stavby na stavebný pozemok.
2. Základy:Výkopové práce pre základovú dosku a základové pásy v nepremŕzajúcej hĺbke, 1 rada debniacich tvárnic (DT), zhutnený násyp, uloženie rozvodov vody a kanalizácie, armovacie práce. Betonáž základových pásov a základovej dosky o hrúbke 100 mm, s aplikáciou zábrany proti vzlínajúcej vlhkosti a protiradónovej bariéry.
3. Obvodové a nosné steny:Konštrukcia obvodových a nosných stien je z materiálu SIP Grey panelov s hrúbkou 170 mm a výškou 2800 mm. Tento systém zabezpečuje vynikajúce tepelno-izolačné vlastnosti a rýchlosť výstavby.
4. Fasádny zatepľovací systém:Kompletný fasádny zatepľovací systém obvodových stien pozostáva z EPS (expandovaný polystyrén) hrúbky 100 mm, sklotextilnej sieťky 145g, stierky, silikónovej penetrácie a silikónovej fasádnej omietky s granuláciou 1,5 mm. Omietka je hladená, jednofarebná, vo svetlej bielej alebo inej jednofarebnej farbe podľa výberu klienta.
5. Vnútorné priečky:Vnútorné priečky sú tiež vyhotovené z SIP panelov s hrúbkou 164 mm, vrátane aplikácie parozábrany. Obojstranné kompletné opláštenie vnútorných stien sadrokartónovým systémom (biely, 12,5 mm hrúbka, rozmery 1200/2500 mm) zabezpečuje hladký a pripravený povrch pre interiérové úpravy.
6. Strecha:Dodávka a montáž strechy s minimálnym sklonom 14 stupňov. Konštrukcia krovu je väzníková, s drevenými strešnými latami, penetráciou a hydroizolačnou fóliou 135g. Podhľad má šírku 600 mm. Strešná krytina je škridloplech vo farbe podľa výberu zo vzorkovníka zhotoviteľa. Žľaby a okapový systém sú z PVC a sú zateplené.
V prípade domu s rovnou strechou je realizovaný bez podhľadu, s fóliovou izoláciou, lemovaním atiky a pozinkovaným plechom. Žľaby a okapový systém sú rovnako z PVC a zateplené.

7. Okná a dvere:Vchodové dvere sú jedny plastové biele s otvorom 1050 x 2400 mm, vrátane zárubne a kovania. V každej izbe je jedno plastové biele okno s rozmerom do 1500 x 1500 mm, otváravé P/L. Kúpeľňa a WC sú vybavené oknom s rozmerom do 600 x 600 mm. Jeden balkónový/terasový otvor s maximálnym rozmerom 2400x2400 mm. Všetky okná majú číre sklo, 6-komorový profil Salamander a izolačné trojsklo s hodnotou Uw = 0,7. Vonkajšie parapety sú hliníkové, vnútorné plastové.
8. Elektroinštalácie:Kompletné vnútorné elektroinštalácie zahŕňajú vypínače a zásuvky vo farbe bielej. V izbách sú 2x zásuvka a vypínač. V kuchyni je 4x zásuvka, vypínač, 380V prívod pre sporák a digestor. V obývacej izbe sú 4x zásuvka a vypínač. V technickej miestnosti sú 2x zásuvka a vypínač.
Štandardné úsporné bodové svietidlá sú osadené v obývacej izbe (6ks). Ostatné izby a miestnosti majú pripravené pripojenie pre svietidlá dodané zákazníkom. V kuchyni sú 4ks svietidiel, v chodbe 2ks, v technickej miestnosti 1ks a v kúpelni/WC 1ks.
Súčasťou elektroinštalácie je aj bleskozvod, vrátane kompletného vedenia od strechy po zem po plášti domu.
9. Vykurovanie a vetranie:Vykurovanie je zabezpečené elektrickými digitálnymi konvektormi s automatickou reguláciou teploty v kuchyni a izbách. Dom je vybavený rekuperačným systémom (1ks) a ventilátorom v kúpelni. Tepelné čerpadlo slúži na ohrev úžitkovej vody s automatickou digitálnou reguláciou a zásobníkom TUV o objeme 110/200 litrov.
10. Interiérové vybavenie (nadštandard pri ploche nad 170 m2):Kuchynská linka a vstavané skrine sú zahrnuté v cene domu pri úžitkovej ploche nad 170 m2. Pri nižšej ploche sú tieto prvky za doplatok. Obidve dodávky sú podľa výberu klienta (farba, štýl, vnútorné dispozície).
11. Vodoinštalácie a kanalizácia:Vnútorné rozvody vody a kanalizácie sú kompletne realizované, vrátane predprípravy pripojenia práčky (1x) a umývačky riadu (1x).
12. Podlahy a stropy:Interiérové stropy sú izolované keramickou vatou s hrúbkou 300 mm, doplnené hliníkovou parozábranou a ukončené sadrokartónovým podhľadom (12,5 mm biely). Podlahový izolačný systém pozostáva z EPS 100 mm a cementového poteru hrúbky 50 mm. Pokládka podlahových krytín je realizovaná v kuchyni, izbách a obývacej izbe laminátovou podlahou. Vstupná predsieň, technická miestnosť, kúpeľňa a WC sú vykachličkované. Farebnosť a vzor lamina a dlažby sú podľa výberu objednávateľa, ktorý si materiál aj dodáva na stavbu.
13. Obklady a sanita:Obklad stien je realizovaný v 1x WC do výšky zárubne a v 1x kúpeľni do výšky stropu. Sanita s príslušenstvom je podľa výberu objednávateľa, ktorý si materiál aj dodáva na stavbu.
14. Interiérové dvere:Počet interiérových dverí zodpovedá pôdorysu. Sú dodávané s oblôžkovými zárubňami, kovaním a osadením. Farebnosť a vzor sú podľa výberu z ponuky zhotoviteľa.
15. Exteriér a terasa:Terasa do 12 m2 je betónová, povrchovo neupravená. Terasou sa rozumie vybetónovaná plocha na zemi presahujúca rozmery obvodu stien o hrúbke 100 mm.
16. Maľovka:Interiérová maľovka je hygienický náter v bielej farbe, aplikovaný v dvoch vrstvách.
17. Dokumentácia a revízie:Súčasťou dodávky je Energetický certifikát podľa zákona č.555/2005 Zb. o energetickej hospodárnosti budov a Vyhlášky 364/2012 MDVaRR SR. Taktiež sú dodávané Revízna správa na elektroinštalácie a bleskozvod, ako aj Revízna správa na vnútorné vodoinštalácie a vnútornú kanalizáciu s tlakovými skúškami.
18. Financovanie:Objednávateľ má možnosť využiť bezplatnú službu Zhotoviteľa pri sprostredkovaní hypotekárneho či iného úveru.
Rozpis nákladov na výstavbu tohto moderného 4-izbového bungalovu v Nigérii 🇳🇬 2026
Ekonomické a ekologické aspekty
Rýchla realizácia výstavby: Vďaka prefabrikácii SIP panelov a premyslenému procesu výstavby je možné dosiahnuť výrazne kratšie stavebné lehoty v porovnaní s tradičnými murovanými stavbami.
Nízke výrobné náklady: Optimalizácia procesov a použitie moderných materiálov prispievajú k efektívnej výrobe a znižovaniu celkových nákladov na stavbu.
Nízka spotreba energií počas bývania: Vynikajúce tepelno-izolačné vlastnosti použitých materiálov (SIP panely, kvalitné okná, zateplenie) vedú k minimalizácii tepelných strát a tým aj k výrazne nižším nákladom na vykurovanie a chladenie počas užívania domu.
Stupeň realizácie a prispôsobenie
Čo je to stupeň realizácie?Ide o stavbu obvodovej konštrukcie domu s priečkami a presterešením podľa špecifikácie stavebníka. Obvodové keramické steny Vám prinesieme už so základným zateplením. V stenách máte predprípravu pre rozvody elektra a vody (trubky, krabice, …). Všetky ukončovacie práce si dorobí stavebník vo vlastnej réžii. Štandardný typ krovu je väzníkový drevený krov - sedlová strecha. V prípade záujmu je možné si doobjednať iný typ a konštrukciu strechy. Exteriér montovaného keramického domu je dokončený na kľúč. Rodinný dom je zvonka komplet hotový vrátane vchodových dverí, okien, strešnej krytiny a zvodového systému, vonkajších omietok a vo vami zvolenom farebnom odtieni. Štandardný typ zateplenia je minerálna vlna, v prípade požiadavky je možné typ a hrúbku zateplenia upraviť. Montovaný keramický dom je dokončený zvnútra aj zvonka a je pripravený ku kolaudácii. Pred nasťahovaním si klient potrebuje dokúpiť už iba konečné podlahové vrstvy v obytných miestnostiach (kúpelne sú ukončené so sanitou, obkladom aj dlažbou), kuchynskú linku, svietidlá a interiérové dvere. Všetky ostatné remeselné práce sú ukončené na 100%.
Čo mám napísať do popisu stavby?Do popisu stavby opíšte architektúru a typ stavby. Napr. koľko podlaží bude mať stavba, či ide o bungalov alebo dvojpodlažný dom. Ide o bungalov so 4 izbami v tvare L, samostatným WC a kúpeľňou. Kuchyňa spojená s obývacím priestorom.
Prečo musím zadať lokalitu výstavby?Aby sme Vám vedeli vypracovať čo najpresnejšiu cenovú ponuku, potrebujeme vedieť miesto, kde bude stavba stáť. Upresnenie lokality výstavby nám pomôže zistiť miestne podmienky, určiť najlepší spôsob dopravy a stanoviť technický spôsob výstavby.
Tento projekt slúži na inšpiráciu a je možné ho ľubovoľne upraviť podľa individuálnych požiadaviek a predstáv klienta. Vďaka flexibilite v dizajne a konštrukcii je možné realizovať aj náročnejšie architektonické riešenia, ktoré zodpovedajú špecifickým potrebám a možnostiam každého zákazníka.