Ponuka nehnuteľností v dynamicky sa rozvíjajúcej mestskej časti Bratislava - Nové Mesto je vždy zaujímavá, najmä ak ide o byty s výbornou dispozíciou a v lokalite s kompletnou občianskou vybavenosťou. Jednou z takýchto atraktívnych ponúk je aj priestranný byt nachádzajúci sa na Teplickej ulici. Táto nehnuteľnosť, o rozlohe 80 m², plus úctyhodná plocha loggie 9,6 m² a balkóna 4,2 m², predstavuje ideálne bývanie pre rodiny, páry či jednotlivcov hľadajúcich komfort a dobrú dostupnosť. Byt sa nachádza na piatom, teda poslednom poschodí bytového domu, čo zároveň znamená absenciu hlučných susedov nad vami a potenciálne krajšie výhľady.

Postupná rekonštrukcia pre moderné bývanie
Vstupná obhliadka odhalí, že byt prešiel postupnou a premyslenou rekonštrukciou, ktorá začala už v roku 2005 a pokračovala až do nedávnej minulosti. Tento prístup zabezpečil, že nehnuteľnosť je nielen vizuálne príťažlivá, ale aj funkčná a zodpovedajúca súčasným štandardom bývania. Medzi kľúčové úpravy patrí modernizácia kúpeľne, výmena kuchynskej linky, inštalácia plastových okien, ktoré znižujú energetickú náročnosť a zlepšujú zvukovú izoláciu, a tiež zasklenie loggie, čím sa získal dodatočný priestor využiteľný počas celého roka.
Posledná rozsiahlejšia rekonštrukcia, ktorá prebehla pred dvoma rokmi, sa zamerala na podlahy v celom byte. Tie boli kompletne vyrovnané nivelačnou vrstvou, čo zaručuje dokonalú rovnosť a pripravenosť na akúkoľvek finálnu podlahovú krytinu. Súčasťou tejto modernizácie bola aj predsieň, ktorá dostala úplne nový šat v podobe vstavanej skrine na mieru. Táto praktická úprava nielenže maximálne využíva dostupný priestor, ale zároveň dodáva interiéru elegantný a uprataný vzhľad. Vymenené boli aj elektrické rozvody, čo je zásadný krok pre bezpečnosť a spoľahlivosť elektroinštalácie v modernom byte.

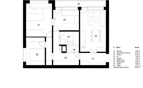
Funkčná dispozícia a priestorové usporiadanie
Jednou z najväčších predností tohto bytu je jeho výborne riešený pôdorys. Dispozícia je navrhnutá s dôrazom na maximálnu funkčnosť a súkromie. Izby sú samostatné, čo je ideálne pre rodiny s deťmi alebo pre tých, ktorí potrebujú priestor na prácu z domu. Denná a nočná časť bytu sú opticky aj prakticky oddelené, čím sa zvyšuje komfort bývania.
Obývacia izba je prepojená s kuchyňou, čo vytvára otvorený a vzdušný priestor ideálny na spoločné trávenie času. Z obývacej izby je navyše priamy vstup na balkón, kde si môžete vychutnať rannú kávu alebo večerný relax s výhľadom. Okrem obývacej izby byt disponuje ďalšími tromi samostatnými izbami, ktoré ponúkajú flexibilitu využitia - či už ako spálne, detské izby, pracovne alebo hosťovské izby. Významným benefitom je aj veľká presklená loggia, ktorá sa tiahne cez dve izby. Tento priestor, vďaka zaskleniu, slúži ako ďalšia obytná alebo relaxačná zóna, ktorá zväčšuje celkovú využiteľnú plochu bytu.
Kúpeľňa je spojená s toaletou, avšak opticky je priestor rozdelený, čo pôsobí esteticky príjemnejšie. V rámci rekonštrukcie boli v celom byte vymenené podlahy, ktoré boli vyrovnané nivelačnou vrstvou, čím sa vytvoril ideálny podklad pre nové podlahové krytiny.
Svetlá a vzdušná orientácia
Byt je orientovaný na dve svetové strany, juh a východ. Toto strategické umiestnenie zabezpečuje vynikajúce presvetlenie počas celého dňa a zároveň výborné podmienky na prirodzené vetranie. Dostatočné denné svetlo prispieva k pozitívnej atmosfére v interiéri a znižuje potrebu umelého osvetlenia počas dňa.
Jednou z moderných vymožeností, ktorou je byt vybavený, je klimatizácia s tromi jednotkami. Táto technológia zabezpečuje príjemnú klímu v byte počas horúcich letných mesiacov, ale môže slúžiť aj na efektívne vykurovanie v prechodnom období.

Predaj čiastočne zariadeného bytu
Byt sa predáva čiastočne zariadený. Presný rozsah vybavenia, ktoré ostáva v byte, bude detailne prezentovaný počas osobnej obhliadky. Táto možnosť môže byť pre nových majiteľov výhodná, nakoľko im umožní skrátiť dobu potrebnú na nasťahovanie a zároveň si ponechať kvalitné kusy nábytku a vybavenia.
Mesačné náklady a lokalita
Mesačné správcovské náklady sú stanovené na výške 280 Eur, k čomu je potrebné pripočítať spotrebu elektriny a plynu, ktorá sa pohybuje okolo 45 Eur mesačne. Celkové mesačné náklady tak predstavujú približne 325 Eur, čo je v rámci bratislavských cien primeraná suma vzhľadom na veľkosť a lokalitu bytu. V byte je momentálne internet a TV riešená spoločnosťou UPCO.
Lokalita Teplickej ulice v mestskej časti Nové Mesto je mimoriadne vyhľadávaná pre svoju kompletnú občiansku vybavenosť. V bezprostrednej blízkosti sa nachádzajú potraviny Babička (len 2 minúty chôdze), a ďalšie obchody sú dostupné do 5 minút. Toto znamená, že všetky základné potreby a služby máte na dosah ruky, čo výrazne zjednodušuje každodenný život. Nové Mesto zároveň ponúka aj dostatok zelene a možností na oddych a šport, pričom dostupnosť do centra mesta je vynikajúca.
Porovnanie s inými ponukami v Novom Meste
Analýza trhu s nehnuteľnosťami v Bratislave - Novom Meste ukazuje širokú škálu bytov s rôznou výmerou, dispozíciou a cenovou reláciou. Ponuky sa pohybujú od menších 2-izbových bytov s plochou okolo 50 m² až po rozsiahlejšie 3- a 4-izbové nehnuteľnosti. Napríklad, na Jahodovej ulici sa predáva 2-izbový byt s loggiou za 249 900 €, zatiaľ čo na Riazanskej ulici sa 2-izbový byt s výmerou 61 m² ponúka za 229 000 €. Na Olbrachtovej ulici je v ponuke veľký 2-izbový byt s výmerou 80 m² za 230 000 €.
Existujú aj ponuky väčších bytov, ako napríklad kompletne novo zrekonštruovaný 4-izbový byt na Teplickej ulici s úžitkovou plochou 73,2 m² a balkónom/loggiou, ktorý sa predáva za 239 800 €. Tento byt je na 4. poschodí a prešiel TOP REINS štandardnou rekonštrukciou. Na tej istej ulici sa spomína aj 3-izbový byt s celkovou plochou 89 m² (byt 75 m² + balkón 2 m² + pivnica 12 m²) na 3. poschodí za cenu, ktorá nie je v texte explicitne uvedená, ale je spojená s popisom s dôrazom na štýlové bývanie a modernú rekonštrukciu bytového domu.
Zaujímavou ponukou je aj 3-izbový byt s rozlohou 62,72 m² na Teplickej ulici, ktorý je prerobený na 4 izbový a nachádza sa na zvýšenom 1. poschodí. Tento byt má nové plastové okná, prerobenú kúpeľňu a drevené parkety v izbách. Bytový dom prešiel rekonštrukciou a zateplením.
V porovnaní s týmito ponukami, byt na Teplickej ulici s rozlohou 80 m² plus loggia a balkón, po čiastočnej rekonštrukcii, predstavuje zaujímavú alternatívu, najmä vďaka svojej priestrannosti a dobrej dispozícii. Cena a presný rozsah rekonštrukcie sú kľúčové faktory pri konečnom rozhodovaní.
Ponuka nehnuteľností na Kolibe, ako napríklad moderný 2-izbový byt s terasou a parkovaním za 380 000 €, alebo nadštandardný 2-izbový byt s terasami a wellness za 390 000 €, ukazujú, že v časti Nové Mesto existujú aj luxusnejšie a drahšie možnosti, ktoré však cenníkovo presahujú bežný trh.
Potenciál pre ďalšie úpravy
Hoci byt prešiel čiastočnou rekonštrukciou, stále ponúka priestor pre ďalšie dotvorenie podľa individuálnych predstáv nového majiteľa. Napríklad, kuchynská linka, hoci bola menená, môže byť v budúcnosti nahradená novou podľa aktuálnych trendov alebo potrieb. Rovnako tak podlahy, aj keď sú vyrovnané, môžu byť vymeniteľné za iný typ krytiny. Možnosť prerobenia na 2-izbový byt, ako je spomenuté pri jednej z ponúk v Novom Meste s rozlohou 41,20 m², naznačuje, že aj menšie byty môžu byť dispozíciou flexibilné. V prípade bytu na Teplickej ulici, vzhľadom na jeho veľkosť a počet izieb, je skôr predpoklad zachovania pôvodnej dispozície s možnosťou drobných dispozičných úprav v rámci existujúcich priestorov.
Výhody bývania v bytovom dome
Bytový dom, na piatom z piatich poschodí, ponúka výhody v podobe väčšieho pokoja a súkromia. Zasklená loggia zväčšuje využiteľnú plochu a poskytuje dodatočný priestor. Vymenené elektrické rozvody sú dôležitým bezpečnostným prvkom. Klimatizácia s tromi jednotkami zaisťuje komfort počas celého roka. Vymenené podlahy a modernizovaná predsieň dodávajú bytu svieži vzhľad. Samostatné izby a oddelená denná a nočná časť prispievajú k funkčnosti a pohodliu.
Pokiaľ ide o porovnanie s inými bytmi, napríklad na uliciach ako Račianska, Šancová, Bartoškova či Tylova v rámci Nového Mesta, každý z nich má svoje špecifické prednosti. Byt na Teplickej vyniká svojou rozlohou a priestrannosťou, čo ho odlišuje od menších 2-izbových bytov.
Pri zvažovaní kúpy bytu je dôležité brať do úvahy nielen cenu a stav nehnuteľnosti, ale aj lokalitu, občiansku vybavenosť a potenciál pre ďalšie zhodnotenie. Teplická ulica v Novom Meste spĺňa tieto kritériá a byt na nej predstavuje atraktívnu investíciu do bývania.