V srdci mestskej časti Košice - Krásna sa otvára jedinečná príležitosť pre tých, ktorí hľadajú pokojné a moderné bývanie s pridanou hodnotou. Ponuka piatich rodinných domov v radovej zástavbe predstavuje atraktívnu možnosť pre široké spektrum záujemcov, od mladých rodín až po starších občanov s ohľadom na bezbariérové riešenia. Tieto domy, ktoré boli skolaudované minulý rok, nesú označenie novostavby, pričom je dôležité poznamenať, že napriek zachovaniu niektorých pôvodných múrov, všetko ostatné je úplne nové a pripravené na finálne dokončenie podľa predstáv budúcich majiteľov.

Prispôsobené Bývanie pre Každého
Jednou z kľúčových výhod týchto domov je ich potenciál pre bezbariérové bývanie. Menší domček s premyslenou dispozíciou umožňuje bezproblémový vstup a minimalizuje náročnosť údržby domu aj pozemku. Táto vlastnosť je neoceniteľná pre ľudí s hendikepom alebo starších občanov, ktorí môžu oceniť jednoduchosť a komfort každodenného života bez zbytočných prekážok. Zároveň, možnosť bývania na úplnej samote v mestskej časti Košice - Krásna eliminuje starosti spojené so susedskými vzťahmi, čím sa vytvára prostredie pre naozaj nerušený život.
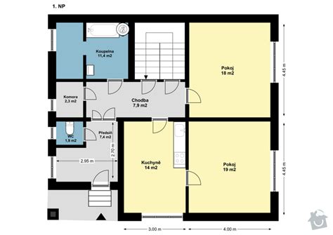
Dispozičné Riešenie a Vonkajšie Priestranstvá
Každý z piatich rodinných domov disponuje vlastnou predzáhradkou, ktorá ponúka flexibilné využitie. Môže slúžiť ako pohodlné parkovacie miesto pre vaše vozidlá, čím sa rieši každodenná logistika. V zadnej časti domu sa nachádza ďalšia, rozsiahlejšia časť pozemku. Toto priestranstvo je ideálne na vytvorenie súkromnej oázy pre rodinné aktivity, relaxáciu či záhradkárčenie. Predstavte si letné grilovačky s priateľmi, detské hry na čerstvom vzduchu alebo pokojné popoludnia strávené s dobrou knihou v lone prírody, to všetko len pár minút od pulzujúceho mesta.

Finálne Úpravy a Investičná Príležitosť
Napriek tomu, že domy sú v podstate novostavby, ich dokončenie do finálneho stavu čaká na nových majiteľov. Chýba už len niekoľko posledných krokov, ktoré vám umožnia naplno si vychutnať bývanie v tichu a pokoji. Možnosť dotvoriť si interiér podľa vlastných predstáv a vkusu je ďalším významným benefitom. Táto fáza "holodomu" alebo čiastočne dokončeného stavu zároveň predstavuje investičnú príležitosť. Vďaka tomu je možné získať tieto moderné nehnuteľnosti za bezkonkurenčné ceny, čo znamená, že si môžete užívať výhody nového bývania bez nutnosti obrovskej počiatočnej investície do úplne dokončeného domu. Ceny domov sú dostupné a každý z nich je možné financovať prostredníctvom hypotekárneho úveru, pričom s jeho vybavením vám radi bezplatne pomôžeme.
Lokalita a Dostupnosť
Košice - Krásna nad Hornádom, kde sa tieto nehnuteľnosti nachádzajú, je dynamicky sa rozvíjajúcou mestskou časťou, ktorá ponúka kombináciu pokojného života v zeleni a zároveň vynikajúcu dostupnosť do centra mesta. V súčasnosti prebiehajú rozsiahle práce na rekonštrukcii a rozšírení Slaneckej cesty, čo po dokončení výrazne zlepší dopravné spojenie s centrom Košíc. Okrem toho, sa plánuje výstavba rýchlostnej komunikácie Šaca - Košické Oľšany, ktorá sa napojí na diaľničný úsek D1 do Prešova. Toto strategické napojenie zabezpečí výbornú dostupnosť nielen do Šace a priemyselného parku Valaliky, ale aj do Prešova, čo robí z lokality Krásna mimoriadne atraktívnu pre prácu aj voľnočasové aktivity.

Technické Aspekty a Materiály
Pri výstavbe týchto domov boli použité kvalitné materiály s dôrazom na moderné technológie a energetickú efektívnosť. Tehlová konštrukcia zabezpečuje dobré tepelno-izolačné vlastnosti a zvukovú pohodu. Strecha, často pokrytá kvalitnou krytinou ako Bramac, je dodatočne zateplená minerálnou vlnou s hrúbkou okolo 410 mm. Obvodové múry sú zateplené polystyrénom s hrúbkou 150 mm, čo prispieva k nízkym prevádzkovým nákladom. Vykurovanie je riešené podlahovým teplovodným systémom, napájaným elektrickým kotlom (napríklad značky Protherm), pričom smart termostaty v každej izbe umožňujú individuálne nastavenie teploty a ovládanie cez smartfón. Ohrev vody zabezpečuje elektrický bojler, s pripravenou možnosťou napojenia na solárny ohrev pre ešte vyššiu energetickú sebestačnosť. Plastové okná s trojsklom a bezpečnostné dvere poskytujú dodatočnú ochranu a tepelnú izoláciu.
Príklady Dokončených Domov a Ich Vybavenie
Detailnejší pohľad na niektoré z ponúkaných domov odhaľuje vysokú úroveň štandardu a možností dokončenia. Napríklad jeden z domov, skolaudovaný v marci 2023, ponúka v štádiu holodomu kompletnú elektroinštaláciu, predprípravu na zabezpečovací systém a videovrátnika, ručne robené sadrové omietky, rozvody vody a kanalizácie, predprípravu na krb, cementový podlahový poter a sadrokartónové stropy. Vonkajšie zateplenie polystyrénom a základná maľba sú samozrejmosťou.
Iný príklad kompletne zariadeného 4-izbového rodinného domu v Krásnej, dokončeného v septembri 2022, ilustruje maximálny dôraz na kvalitu a dizajn. Tento dvojpodlažný dom v radovej zástavbe sa predáva s kompletne vstavaným zariadením, vrátane kuchynskej linky na mieru so špičkovými spotrebičmi (vstavaný kávovar, ohrievací šuflík, umývačka riadu, 5-zónová indukčná varná doska, elektrická rúra, vstavaná chladnička, digestor) v hodnote 7 tisíc eur. Nábytok je vyrobený na mieru z kvalitných MDF dosiek s ochranou proti otlačkom prstov. Spálňa disponuje samostatným šatníkom a v dome sa nachádzajú tri veľké vstavané skrine. Obývacia izba s výstupom na terasu je vybavená nábytkovou a TV zostavou na mieru, dizajnovým krbom a pohodlnou gaučovou súpravou. Kúpeľne sú moderne zariadené, jedna s bezrámovým sprchovým kútom a druhá s vaňou. Inteligentný zabezpečovací kamerový systém, televízory značky Samsung a kvalitné manželské postele s úložným priestorom dotvárajú celkový dojem luxusu. Pozemok je riešený záhradným architektom s automatickým zavlažovaním, terasou s prístreškom a záhradným nábytkom. V technickej miestnosti sa nachádza práčka a sušička značky LG. Cena tohto domu je 350 000 Eur bez voľne stojaceho zariadenia, alebo 360 000 Eur kompletne zariadený.

Cena a Financovanie
Ceny domov v tejto ponuke sa pohybujú v rozmedzí od približne 325 000 € (za 3-izbový dom s tepelným čerpadlom a pozemkom 323 m2) až po 530 000 € (za moderný bungalov). Domy v radovej zástavbe sú dostupné v cenových reláciách okolo 399 900 €, 420 000 €, 460 000 € či 379 900 €. Je dôležité poznamenať, že uvedené ceny sú orientačné a môžu sa líšiť v závislosti od konkrétnej nehnuteľnosti, jej veľkosti, vybavenia a stavu dokončenia. Každý z domov je možné financovať prostredníctvom hypotekárneho úveru, pričom realitné kancelárie často ponúkajú bezplatnú pomoc s vybavením financovania, čo celkový proces kúpy zjednodušuje a sprístupňuje.
Perspektíva Budúceho Rozvoja
Strategická poloha v Košiciach - Krásna, spolu s plánovaným rozvojom infraštruktúry, robí z týchto novostavieb nielen atraktívne miesto na bývanie, ale aj rozumnú investíciu do budúcnosti. Blízkosť mesta, pokojné prostredie a možnosť dokončenia domu podľa vlastných predstáv vytvárajú ideálnu kombináciu pre moderný životný štýl. Tieto domy predstavujú príležitosť získať kvalitné bývanie v dynamicky sa rozvíjajúcej lokalite s potenciálom rastu hodnoty nehnuteľnosti.
tags: #predaj #dom #krasna #novostavba