Pri výbere projektu rodinného domu začína náročná cesta za vysnívaným domovom. Väčšina z nás v ňom plánuje stráviť značnú časť svojho života, preto výber vhodného projektu nepodceňujte. Projekty domov si u nás viete vybrať nielen na základe ich vzhľadu, ale aj podľa pôdorysu, počtu izieb či tvaru do L. Na začiatku sa zamerajte na veľkosť domu, požadované súkromie, ako ho chcete zariadiť a na veľkosť a tvar stavebnej parcely. Skúste si odpovedať na základné otázky, ktoré vám pomôžu sa ľahšie rozhodnúť: Koľko poschodí chcete, aby mal váš dom? Koľko spální potrebujete? Potrebujete aj hosťovskú izbu či pracovňu? V ktorej miestnosti sa najviac zdržiavate? (mala by byť najväčšia) Chcete okná na celú stenu alebo klasické okná s parapetom? Plánujete aj krytú terasu? Vadia vám okná na bočných stranách ku susedom? Sú izby dostatočne veľké, aby ste ich zariadili podľa svojich predstáv? Bude mať dostatok ukladacieho priestoru? Je váš pozemok rovný alebo vo svahu? Na ktorú svetovú stranu by mali byť vaše izby orientované? Viete si v ňom predstaviť bývať aj o 10 rokov?
Už máte jasnejšie? Možno sa stále neviete rozhodnúť, či si vybrať bungalov alebo poschodový dom. Vypísali sme preto ich výhody.

Výhody bungalovu
- Bezbariérové prístupy: V bungalove ľahšie vybudujete bezbariérové prístupy, čo je ideálne pre rodiny s deťmi, starších ľudí alebo osoby s obmedzenou pohyblivosťou. Všetky miestnosti sú na jednej úrovni, čo eliminuje potrebu schodísk.
- Rýchlejšia výstavba: Výstavba rodinného bungalovu je oproti poschodovému domu obvykle o pár mesiacov rýchlejšia. Menej komplikovaná konštrukcia a absencia schodísk znižujú čas potrebný na dokončenie stavby.
- Flexibilita návrhu: Miestnosti sa dajú navrhnúť bez ohľadu na náväznosť s ďalším podlažím. To umožňuje väčšiu voľnosť pri usporiadaní interiéru a prispôsobení ho individuálnym potrebám.
- Široká ponuka projektov: Ponuka projektov bungalovov je väčšia ako pri ostatných typoch katalógových projektov domov. Nájdete tak širšiu škálu dizajnov a dispozícií, ktoré vyhovujú rôznym vkusom a požiadavkám.
Výhody poschodového domu
- Oddelenie denných a nočných zón: Jednoduchšie oddelíte dennú a nočnú časť domu. Spálňa na poschodí poskytuje väčšie súkromie a oddych od denného ruchu.
- Výhľad na okolie: Z vrchného podlažia získate lepší výhľad na okolie, čo môže byť esteticky príjemné a zároveň praktické z hľadiska bezpečnosti.
- Využitie svahovitého terénu: Dve poschodia poskytujú možnosť vytvorenia polozapusteného podlažia do svahovitého pozemku, čím efektívne využijete terénne nerovnosti.
- Úspora plochy na pozemku: Dvojpodlažný dom zaberie na pozemku menšiu plochu v porovnaní s bungalovom rovnakej obytnej plochy, čo je výhodné pre menšie parcely.
Pri rozhodovaní, ktoré moderné projekty rodinných domov sú pre vás najvhodnejšie, sa skôr zamerajte na ich funkčnosť ako na pekné vizualizácie. Svoje rozhodnutia preberte aj s členmi domácnosti, ktorí tam budú tiež bývať. Vďaka tomu zistíte, aké potreby a požiadavky majú vaše ratolesti či partner.
Všetky projekty vypracovávame tak, aby ste dostali nielen stavebné povolenie, ale dokázali dom aj bez problémov postaviť. Preto obsahujú:
- Projekt stavebnej časti: zahŕňa sprievodnú správu, súhrnnú technickú správu, výkresy v mierke 1:50 - základy, všetky pôdorysy, rez, krov, všetky pohľady, detaily, výpisy podláh, okien, dverí, muriva, strešnej krytiny a výkaz výmer a materiálov.
- Projekt statiky: obsahuje technickú správu, statický výpočet, výkresy skladby stropov, výkresy výstuže a tvaru stropných dosiek, vencov, prekladov a schodíšť a výkaz materiálu.
- Projekt vykurovania: technická správa, výpočet spotreby energie na vykurovanie, výkresy rozvodov ústredného kúrenia, schéma zapojenia kotla, umiestnenie, dimenzie vykurovacích telies a výkaz materiálu. Projekt vykurovania je vypracovaný pre plynový alebo elektrický zdroj vykurovania (klient si môže zvoliť alternatívu v rámci ceny projektu).
- Projekt zdravotechniky: technická správa, výkresy vnútorného vodovodu, domovej kanalizácie, domového plynovodu a výkaz materiálu.
- Projekt elektroinštalácií: technická správa, rozvody zásuvkovej, svetelnej a motorickej elektroinštalácie, slaboprúdové rozvody, schéma rozvádzača, výkres bleskozvodu a výkaz materiálu.
- Projekt rekuperácie: technická správa, výkres.
Nádherný Bungalov
Krásny projekt bungalovu pre moderné rodiny
Krásny projekt bungalovu, vhodný na rovinatý alebo mierne svahovitý terén. Tento skromný 3 izbový dom je ideálny pre troj- až štvorčlennú rodinu. Priestrannú obývaciu časť tvorí aj americká kuchyňa, ktorá môže byť vybavená aj kuchynským ostrovčekom. Táto forma kuchyne je veľmi moderná a ponúka veľa kreatívnej slobody pri varení. Projekt domu je obohatený aj o veľké sklenené plochy v obývacej izbe, čo zaručuje krásne presvetlené priestory. Na priestrannej terase si užije oddych celá rodina.
Rodinné domy s plochou strechou, príp. rovnou strechou sú jedinečným a zaujímavým riešením, ako získať nevšedný a moderný vzhľad domu. Samostatný šatník je snom azda každej ženy, kde sa pohodlne zmestí všetok oblečenie. Ďalšia toaleta poteší nielen návštevy. Technická miestnosť je praktickou súčasťou domu, nemusíte sa starať o to, kam umiestniť práčku, sušičku, kotol, príp. tepelné čerpadlo.
V prípade tohto domu si môžete zvoliť projekt domu ako aj stavbu domu na kľúč v dvoch prevedeniach: moderný dom, prípadne pasívny dom, ktorý môže byť až 3x úspornejší, ako klasický rodinný dom. Tento dom je spojenie dvoch samostatných rodinných domov jednou spoločnou stenou, ktorá nemá okná ani dvere. Projekt tohto nízkoenergetického domu je dostupný aj v zrkadlovom prevedení, takisto sú možné menšie aj väčšie úpravy v projekte.

Dvojizbový dom na malý pozemok: Kompaktné bývanie s maximálnym využitím priestoru
Dvojizbový dom na malý pozemok Bungalow 219 s krbom je vhodný na bývanie aj ako rekreačná chata alebo záhradný dom. Tento projekt domu bez garáže vyhovie nárokom 2 - 3 člennej rodiny. Dispozícia domu uspokojí požiadavky na priestor a maximálne využitie zastavanej plochy zároveň.
Vstup do domu vás privedie do chodby. Jej veľkosť dovoľuje umiestnenie vstavaného šatníka alebo predsieňovej zostavy s vešiakmi. Chodbou sa prechádza priamo do dennej časti domu, ktorú tvorí kuchyňa prepojená s obývačkou. Rovnako, ako aj iné projekty domov od firmy PRODOM, myslí projekt Bungalow 219 na presvetlenie priestoru. Kuchynská časť je navrhnutá pre linku v tvare L, ktorá aj na malom priestore uspokojí očakávania každej domácej pani. Zmestia sa sem všetky moderné spotrebiče vrátane chladničky, pričom zostáva dostatok miesta na prípravu jedál. Pre jedálenský stôl je vyčlenené miesto medzi linkou a obývacou časťou. Do obývačky sa zmestí sedacia súprava v tvare L pre 3 osoby, ku ktorej je možné pridať puf alebo taburet. Pri zachovaní vzdušnosti miestnosti sa tu môže nachádzať tiež skrinka pod TV alebo poličky.
Z obývacej izby sa dverami prechádza do spálne. V tejto izbe je vyhradené miesto na vstavaný šatník. Okrem manželskej postele je do nej možné umiestniť aj ďalší nábytok, napríklad komodu. Potrebujete tiché miesto na prácu? Presvetlenie miestnosti až s dvomi oknami vytvára ideálne podmienky na menší pracovný kútik.
Projekt domu na malý pozemok Bungalow 219 situuje kúpeľňu do tesnej blízkosti samostatného WC s menším umývadlom. Do kúpeľne je možné inštalovať rohovú vaňu a zmestí sa sem aj práčka. Ďalší úložný priestor na skriňu na hygienické a čistiace potreby, kúpeľňový textil a iné predmety je vytvorený v chodbe. Projekt bungalovu domu bez garáže uspokojí nároky 2 - 3 člennej rodiny. Na parkovanie je vyhradený priestor vedľa domu, parkovacie miesto je možné vybudovať aj s prestrešením.
Projekty rodinných domov typu Bungalov patria medzi najpredávanejšie. Tento rodinný dom patrí vzhľadom do kategórie Moderné domy. Je už ale na Vás, či použijete moderné materiály, rôzne druhy obkladov fasády alebo moderné prvky v interiéri. Ak máte úzky pozemok, na ktorom plánujete výstavbu rodinného domu, tak je tento projekt rodinného domu pre Vás vhodným riešením. Tento projekt na úzky pozemok je navrhnutý tak, aby maximalizoval obmedzený priestor pri zachovaní funkčnosti domu. Projekty malých rodinných domov patria do kategórie lacnejších domov, ktoré nie sú náročné na veľkosť pozemku, môžu byť prízemné, alebo poschodové. Jedná sa väčšinou o rodinné domy, ktoré vyhovujú mladým rodinám pri riešení svojho bývania. Starším ľuďom vyhovujú hlavne prízemné bezbariérové rodinné domy.

Modulové domy: Rýchle a efektívne bývanie na kľúč
Modulový dom, nielen do záhrady, v základnom dvojizbovom variante. Minimálna zastavaná plocha, jednoduchá dispozícia. Dodanie vo vyhotovení na kľúč v cene už od 35.800 Euro bez DPH. Vďaka predpríprave a dokončeniu povrchových úprav stien v závode, Vám Váš nový dom odovzdáme vo vyhotovení na kľúč, nie za pár mesiacov, ale už za 3 týždne. Projekt na stavebné povolenie máte v cene domu. Ak by Vám jedna spálňa nestačila, ponúkame aj troj a štvorizbový variant modulového domu. Cena zahŕňa dopravu vrámci SR. Cena neobsahuje základovú dosku a zemné práce.
EKONOMICKÉ VÝHODY:
- Rýchla realizácia výstavby.
- Nízke výrobné náklady.
- Nízka spotreba energií počas bývania.
Stupeň realizácie: Ide o stavbu obvodovej konštrukcie domu s priečkami a presterešením podľa špecifikácie stavebníka. Obvodové keramické steny Vám prinesieme už so základným zateplením. V stenách máte predprípravu pre rozvody elektra a vody (trubky, krabice, …). Všetky ukončovacie práce si dorobí stavebník vo vlastnej réžii. Štandardný typ krovu je väzníkový drevený krov - sedlová strecha. V prípade záujmu je možné si doobjednať iný typ a konštrukciu strechy.
Exteriér montovaného keramického domu: je dokončený na kľúč. Rodinný dom je zvonka komplet hotový vrátane vchodových dverí, okien, strešnej krytiny a zvodového systému, vonkajších omietok a vo vami zvolenom farebnom odtieni. Štandardný typ zateplenia je minerálna vlna, v prípade požiadavky je možné typ a hrúbku zateplenia upraviť.
Interiér montovaného keramického domu: je dokončený zvnútra aj zvonka a je pripravený ku kolaudácii. Pred nasťahovaním si klient potrebuje dokúpiť už iba konečné podlahové vrstvy v obytných miestnostiach (kúpelne sú ukončené so sanitou, obkladom aj dlažbou), kuchynskú linku, svietidlá a interiérové dvere. Všetky ostatné remeselné práce sú ukončené na 100%.
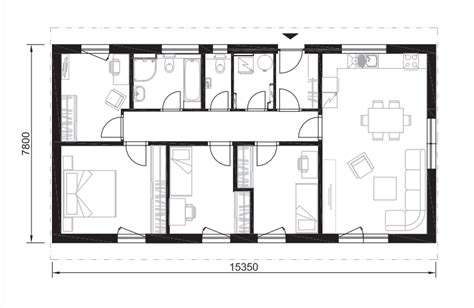
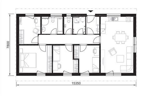
Pri popise stavby opíšte architektúru a typ stavby. Napr. koľko podlaží bude mať stavba, či ide o bungalov alebo dvojpodlažný dom. Ide o bungalov so 4 izbami v tvare L, samostatným WC a kúpeľňou. Kuchyňa spojená s obývacím priestorom.
Lokalita výstavby je dôležitá pre vypracovanie čo najpresnejšej cenovej ponuky. Upresnenie lokality výstavby nám pomôže zistiť miestne podmienky, určiť najlepší spôsob dopravy a stanoviť technický spôsob výstavby.