Okres Púchov, s jeho strategickou polohou a rastúcou popularitou, sa stáva čoraz atraktívnejším miestom pre bývanie. Ponuka nehnuteľností v tomto regióne zaznamenáva dynamický rast, pričom mimoriadnu pozornosť si získavajú najmä novostavby rodinných domov a bungalovov. Tieto moderné bývania predstavujú ideálnu alternatívu pre jednotlivcov, páry aj rodiny, ktoré hľadajú komfort, kvalitu a súkromie mimo mestského ruchu, no zároveň s dobrou dostupnosťou k občianskej vybavenosti a pracovným príležitostiam.

Prehľad trhu s nehnuteľnosťami v Púchove
Analýza aktuálnych ponúk na trhu s nehnuteľnosťami v Púchove odhaľuje zaujímavé trendy. Priemerná cena za meter štvorcový zastavanej plochy sa pohybuje okolo 2.819,- €/m², zatiaľ čo cena pozemkov dosahuje v priemere 359,- €/m². Celková priemerná cena za meter štvorcový nehnuteľnosti na predaj je 1.290,- €/m², s cenou za podlahovú a úžitkovú plochu na úrovni 2.059,- €/m². Tieto čísla naznačujú, že Púchov a jeho okolie ponúkajú cenovo dostupné bývanie v porovnaní s niektorými inými regiónmi Slovenska, najmä ak zvážime kvalitu a moderné štandardy novostavieb.
Na druhej strane spektra sa nachádzajú luxusné ponuky, kde najdrahšia nehnuteľnosť v okrese Púchov dosahuje cenu až 519.000,- €. Najlacnejšia ponuka na predaj má cenu 79.900,- €, čo potvrdzuje širokú škálu možností pre rôzne rozpočty. Podobné cenové rozpätie platí aj pre nehnuteľnosti na prenájom, kde najlacnejšia ponuka začína na 7,- €/m² a najluxusnejšia dosahuje 460,- € mesačne.
Výhody rekonštrukcie interiéru nášho bývania
Bungalovy ako symbol moderného a pohodlného bývania
Koncept bungalovu, teda jednopodlažného rodinného domu, si v okrese Púchov získava čoraz väčšiu obľubu. Tieto domy sú navrhnuté s dôrazom na maximálne využitie priestoru, funkčnosť a efektívne riešenia, ktoré zabezpečujú komfortné bývanie pre celú rodinu. Výhodou bungalovov je ich bezbariérovosť, čo ich robí ideálnou voľbou pre starších ľudí, rodiny s malými deťmi alebo osoby s obmedzenou pohyblivosťou.
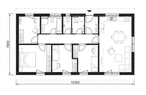
V ponuke sa objavujú moderné 4-izbové bungalovy s úžitkovou plochou okolo 106 m², ktoré sú postavené na slnečných pozemkoch s rozlohou od 360 m². Tieto nehnuteľnosti sa často predávajú v stave "holodom", čo umožňuje budúcim majiteľom dokončiť interiér podľa vlastných predstáv a vkusu. Použité materiály sú prevažne kvalitné, ako napríklad tehla Heluz, ktorá je doplnená o zateplenie minerálnou vlnou. Plastové okná s izolačným trojsklom značky Slovaktual zabezpečujú výborné tepelné a zvukové izolačné vlastnosti.
Vykurovanie je riešené ekologicky a úsporne, najčastejšie podlahovým kúrením napojeným na tepelné čerpadlo značky Immergas, ktoré je už často zahrnuté v cene domu. Ako doplnkový zdroj tepla môže slúžiť aj krb v obývacej izbe, pripravený na inštaláciu krbovej vložky. Dispozičné riešenie bungalovov je premyslené, zahŕňajúce priestrannú obývaciu izbu spojenú s kuchyňou a jedálňou, odkiaľ je priamy vstup na terasu a pozemok. Okrem toho sa tu nachádza hlavná spálňa, dve detské izby, kúpeľňa s toaletou a technická miestnosť s ďalším WC. Niektoré moderné projekty zahŕňajú aj špajzu či pracovňu.
Ceny za takéto moderné bungalovy v stave "holodom" sa pohybujú v rozmedzí od približne 154.000,- € za hrubú stavbu až po 184.900,- € za kompletnejší stav. Táto cenová hladina robí z bungalovov atraktívnu alternatívu k bytom, najmä ak zvážime získanie vlastného pozemku a súkromia.

Rodinné domy v radovej zástavbe: Kombinácia súkromia a komunity
Ďalšou populárnou formou bývania v okrese Púchov sú rodinné domy v radovej zástavbe. Tieto projekty často vznikajú v nových štvrtiach, ktoré ponúkajú modernú infraštruktúru a občiansku vybavenosť. Príkladom je novovznikajúca štvrť 19 rodinných domov v obci Dohňany, ktorá sa nachádza len 3 km od mesta Púchov.
Tieto domy, často označované aj ako "radové bungalovy", kombinujú výhody samostatne stojacich domov s výhodami komunitného bývania. Ponúkajú súkromie vďaka vlastným pozemkom, no zároveň vytvárajú príjemné susedské vzťahy. Ceny za takéto domy v radovej zástavbe sa pohybujú okolo 246.170,- € za dom s úžitkovou plochou okolo 127,5 m².
Projekty v Dohnanoch a ich okolí sa vyznačujú moderným dizajnom a kvalitným vyhotovením. Používajú sa osvedčené stavebné materiály a technológie, ktoré zabezpečujú energetickú úsporu a dlhú životnosť stavby. Domy sú navrhnuté tak, aby spĺňali potreby moderných rodín, s dostatkom priestoru pre spoločné aktivity aj pre individuálne potreby každého člena domácnosti.
Obce ako Dohňany, ktoré sú súčasťou týchto projektov, disponujú výbornou občianskou vybavenosťou - nájdeme tu škôlku, školu, poštu, potraviny, pohostinstvo a kultúrne centrum. Táto dostupnosť robí z radovej zástavby ideálnu voľbu pre rodiny, ktoré hľadajú pokojné prostredie s dobrou dostupnosťou do mesta.
Špecifické lokality a zaujímavé ponuky
Okrem spomenutých obcí sa nové rodinné domy a bungalovy stavajú aj v priamo v Púchove a jeho blízkom okolí. V mestskej časti Horné Kočkovce, ktorá patrí medzi najobľúbenejšie a najvyhľadávanejšie lokality Púchova, sa ponúkajú kvalitné tehlové novostavby rodinných domov. Tieto domy sú často navrhnuté s dôrazom na efektívne využitie priestoru a funkčné riešenia. Cena za takýto dom sa môže pohybovať okolo 275.000,- €.
Ďalšou zaujímavou lokalitou je obec Streženice, kde sa realizujú projekty moderných rodinných domov, vrátane dvojpodlažných domov s úžitkovou plochou až 117 m² na pozemku s výmerou 213 m². Tieto domy sa predávajú v stave holodom a sú postavené z kvalitných materiálov s dôrazom na energetickú efektívnosť. V obci Streženice sa tiež nachádzajú projekty dvojdomov v pokojnom prostredí pri potoku, ideálne pre tých, ktorí hľadajú pokoj a zeleň.
V obci Nimnica, známej kúpeľnej obci na Považí, sa taktiež objavujú moderné novostavby rodinných domov, ktoré sú situované v príjemnom prostredí len 3 km od mesta Púchov. Tieto domy často ponúkajú priestranné interiéry, moderné vybavenie a výbornú dostupnosť do mesta.
Výstavba na kľúč a možnosť výmeny
Niektorí developeri a realitné kancelárie ponúkajú nielen predaj pozemkov, ale aj komplexnú výstavbu rodinných domov na kľúč. To znamená, že klient si môže vybrať projekt domu, prípadne si ho nechať navrhnúť na mieru, a developer sa postará o celú realizáciu stavby až po odovzdanie hotového domu. V niektorých prípmoch je dokonca možná výmena vášho existujúceho bytu za nový rodinný dom, čo môže byť pre mnohých atraktívna možnosť, ako sa presťahovať do nového bývania bez nutnosti predaja pôvodnej nehnuteľnosti.
V prípade, že klient nemá vlastný pozemok, realitné kancelárie často ponúkajú pomoc pri jeho hľadaní v Púchove a okolí. Existujú aj projekty, kde je cena domu uvádzaná bez ceny pozemku a pripojok inžinierskych sietí, čo si klient musí zabezpečiť dodatočne.
Dôležité aspekty pri výbere novostavby
Pri výbere novostavby rodinného domu alebo bungalovu v okrese Púchov je dôležité zvážiť niekoľko kľúčových faktorov:
- Lokalita: Ako zdôrazňujú odborníci na investovanie do nehnuteľností, lokalita je kľúčová. Zvážte dostupnosť k pracovným miestam, školám, škôlkam, obchodom, zdravotníckym zariadeniam a dopravnej infraštruktúre. Dôležitá je aj úroveň hluku a celková atmosféra okolia.
- Kvalita výstavby: Informujte sa o použitých stavebných materiáloch, technológiách a dodávateľovi. Kvalitné materiály a precízne vyhotovenie zabezpečia dlhú životnosť domu a minimálne náklady na údržbu.
- Dispozičné riešenie: Zvážte svoje aktuálne aj budúce potreby. Potrebujete viacero spální, pracovňu, dostatok úložného priestoru? Bungalovy a rodinné domy ponúkajú rôzne dispozičné riešenia, ktoré je potrebné starostlivo porovnať.
- Energetická úspornosť: Moderné novostavby by mali spĺňať vysoké štandardy energetickej úspornosti, čo sa prejaví v nižších nákladoch na vykurovanie a prevádzku. Tepelné čerpadlá, kvalitné zateplenie a okná sú dôležitými prvkami.
- Cena a financovanie: Stanovte si realistický rozpočet a zvážte možnosti financovania, vrátane hypotekárneho úveru. Niektoré ponuky zahŕňajú možnosť odpočtu DPH, čo môže byť pre podnikateľov zaujímavé.
- Stav nehnuteľnosti: Rozhodnite sa, či preferujete dom v stave "holodom", ktorý si dokončíte podľa vlastných predstáv, alebo hotový dom, ktorý je pripravený na okamžité nasťahovanie.

Záver
Okres Púchov ponúka v súčasnosti širokú škálu možností pre tých, ktorí hľadajú moderné a kvalitné bývanie vo forme novostavieb rodinných domov a bungalovov. Vďaka strategickej polohe, rastúcej ponuke a relatívne dostupným cenám sa tento región stáva atraktívnou destináciou pre bývanie. Pri zodpovednom výbere lokality, kvality výstavby a dispozičného riešenia môžete nájsť svoj vysnívaný domov, ktorý bude spĺňať všetky vaše požiadavky na komfortné a moderné bývanie.
tags: #novostavby #bungalov #okres #puchov