Budovanie nových bytových domov, čiže novostavby, predstavuje dynamicky sa rozvíjajúci segment realitného trhu, ktorý reaguje na neustále rastúce požiadavky na bývanie. Tieto projekty sa líšia rozsahom, lokalitou a cieľovou skupinou, no spája ich snaha o poskytnutie moderného, komfortného a často aj energeticky efektívneho bývania. Od malých polyfunkčných domov s limitovaným počtom bytových jednotiek až po rozsiahle komplexy s kompletnou občianskou vybavenosťou, novostavby formujú mestskú aj vidiecku krajinu a ponúkajú rozmanité možnosti pre budúcich obyvateľov. Tento článok sa ponorí do špecifík výstavby bytových domov, technických aspektov, výhod a rôznych typov projektov, ktoré sú momentálne na trhu dostupné.

Definícia a Rozsah Novostavieb Bytových Domov
Novostavba bytového domu je v podstate nový obytný objekt, ktorý je postavený na mieste, kde predtým nestál žiadny alebo bola existujúca stavba zbúraná. Tento termín zahŕňa širokú škálu projektov, od malých bytoviek s pár bytovými jednotkami až po rozsiahle bytové komplexy. Často sa stretávame s označeniami ako "moderná novostavba", "kvalitné bývanie za rozumnú cenu" alebo "dostupné bývanie a moderná mestská architektúra", ktoré naznačujú snahu developerov o spojenie funkčnosti, estetiky a cenovej dostupnosti.
V posledných rokoch badať zvýšený dopyt po bývaní v novostavbách, čo je spôsobené viacerými faktormi. Mladé rodiny často robia chybu, že kupujú predražené metre štvorcové v starších mestských bytoch, namiesto toho, aby zvážili výhody novostavieb. Tieto nové domy často ponúkajú lepšie technické parametre, vyššiu energetickú účinnosť a moderné dispozičné riešenia, ktoré zodpovedajú súčasným štandardom a životnému štýlu.
Rekonstrukce domu, nebo novostavba? Co se opravdu vyplatí (a co vás může zaskočit)
Typológia Projektov Novostavieb
Trh s novostavbami je mimoriadne pestrý a ponúka riešenia pre rôzne potreby a preferencie. Môžeme ich rozdeliť na základe viacerých kritérií:
Podľa Veľkosti a Počtu Bytov:
- Malé Bytové Domy: Často sa jedná o polyfunkčné budovy, ktoré kombinujú bývanie s komerčnými priestormi na prízemí. Tieto projekty sú obvykle situované v mestských častiach s dobrou dostupnosťou a ponúkajú menší počet bytových jednotiek, čím zabezpečujú väčšie súkromie. Príkladom sú projekty s 2, 3 alebo 4 bytovými jednotkami, ktoré sú často "skolaudované" a pripravené na okamžité bývanie.
- Stredne Veľké Bytové Domy: Tieto projekty zvyčajne zahŕňajú 10 až 50 bytových jednotiek a môžu byť umiestnené v rôznych lokalitách, od rušných mestských centier po pokojnejšie predmestia. Ponúkajú široký výber 1-izbových, 2-izbových a 3-izbových bytov, často s pridanou hodnotou ako sú balkóny, terasy alebo parkovacie miesta.
- Veľké Bytové Komplexy: Ide o rozsiahle projekty, ktoré môžu zahŕňať stovky bytových jednotiek a sú často doplnené o občiansku vybavenosť, ako sú obchody, kaviarne, detské ihriská či športoviská. Tieto komplexy sa snažia vytvoriť samostatné komunity s vlastnou infraštruktúrou.
Podľa Lokalizácie:
- Mestské Novostavby: Nachádzajú sa priamo v mestách, často v nových rozvíjajúcich sa štvrtiach alebo na miestach starých priemyselných zón. Ponúkajú vynikajúcu dostupnosť k službám, zamestnaniu a dopravným uzlom. Príklady zahŕňajú projekty v Bratislave (Račianska Perla), Martine (Tomčany) alebo Trebišove.
- Prímestské Novostavby: Umiestnené na okrajoch miest alebo v menších obciach v ich blízkosti. Kombinujú výhody pokojnejšieho prostredia s dobrou dostupnosťou do mesta. Projekty ako "Bytové domy Maty" v blízkosti Topoľčian a Nitry alebo "Bytový dom Mních" v Kriváni spadajú do tejto kategórie.
- Rekreačné Novostavby: Nachádzajú sa v atraktívnych lokalitách s potenciálom na rekreačné bývanie alebo turistický ruch, napríklad v Chorvátsku (Makarska) alebo exotických destináciách ako Pattaya či Zanzibar. Tieto projekty často zahŕňajú prémiové vybavenie ako bazény, jacuzzi a výhľady na more.
Podľa Typu Bytových Jednotiek:
- Štúdiá a 1-izbové Byty: Ideálne pre jednotlivcov alebo mladé páry, ktoré hľadajú kompaktné a cenovo dostupné bývanie.
- 2-izbové a 3-izbové Byty: Najpopulárnejšia kategória, ktorá vyhovie potrebám menších rodín a párov. Často sú vybavené balkónom alebo terasou.
- 4-izbové a 5-izbové Byty/Domy: Určené pre väčšie rodiny, ktoré potrebujú viac priestoru. Príkladom je 5-izbová novostavba s rozlohou 152 m², ktorá sľubuje bývanie v bezpečí a lacnejšie.
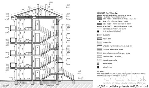
Technické Aspekty a Materiály Použité pri Výstavbe
Kvalita výstavby je kľúčovým faktorom pri výbere novostavby. Moderné bytové domy sú konštruované s dôrazom na trvanlivosť, energetickú efektívnosť a komfort bývania. V poskytnutých informáciách sa stretávame s detailným popisom použitých materiálov a technológií:

Základy:
- Šírka 1000 mm, hĺbka 2600 mm, zaliate betónom triedy C 25/30. Toto zabezpečuje pevný a stabilný základ pre celú stavbu.
Murivo:
- Obvodové Nosné Murivo: Zhotovené z porobetónových tvárnic a zateplené certifikovaným zatepľovacím systémom. Tento systém minimalizuje tepelné straty a zlepšuje energetickú bilanciu budovy.
- Vnútorné Nosné Murivo: Taktiež z porobetónových tvárnic, ukončené stužujúcim vencom na každom podlaží pre zvýšenie stability.
- Deliace Steny: Vnútorné deliace steny sú z porobetónových tvárnic. Steny medzi bytmi sú realizované zo zvukoizolačných tehál, čo je dôležité pre zabezpečenie akustického komfortu obyvateľov.
Stropy a Schodiská:
- Stropné Konštrukcie: Železobetónové monolitické stropné dosky s hrúbkou 160 mm.
- Schodiská: Železobetónové monolitické doskové, hrúbka dosky 150 mm.
Strecha a Zastrešenie:
- Zastrešenie Objektu: Murivo objektu je ukončené stužujúcim železobetónovým vencom na štvrtom podlaží.
- Konštrukcia Krovu: Drevená valbová konštrukcia so sklonom do 25°. Stropná železobetónová doska nad povalami je zateplená Nobasilom v dvoch vrstvách, s parozábranou pod tepelnou izoláciou.
- Krytina: Plechová.
- Strešné Výlezy: Typ VELUX GTV s polyuretánovým rámom a hliníkovým krídlom, zasklené izolačným trojsklom.
Izolácie:
- Zateplenie: Vonkajšie obvodové steny sú zateplené fasádnym polystyrénom. Tepelná izolácia stropu nad 4. NP je z minerálnej vlny (ďalšia vrstva s hrúbkou 150 mm). Proti vlhkosti sa používajú izolačné pásy (2x HYDROBIT) a penetračný náter.
Okná a Dvere:
- Okná a Balkónové Dvere: Plastové s izolačným trojsklom.
- Vstupné Dvere do Bytového Domu: Z poplastovaného hliníka, tiež s izolačným trojsklom.
Povrchové Úpravy:
- Omietky: Vnútorné sú hladké z vrecovaných zmesí. Vonkajšia omietka je tenkovrstvá škrabaná silikónová na zatepľovacom systéme.
- Klampiarenské Konštrukcie: Dažďové žľaby, zvodové rúry a kotlíky sú polkruhové z pozinkovaného poplastovaného plechu.
- Kovové Konštrukcie: Zábradlia na balkónoch a schodiskách sú z oceľových stĺpikov s oceľovou tyčovou výplňou.
- Maľby a Nátery: Vápenný pačok s dvomi vrstvami PRIMALEX. Kovové konštrukcie sú natreté základným a vrchným syntetickým náterom.
Technické Vybavenie a Komfort Bývania
Moderné novostavby kladú dôraz na komfort a nízke prevádzkové náklady.
Vykurovanie a Teplá Voda:
- Vykurovanie: Teplovodné, podlahové. Každý byt má vlastný elektrický kotol Protherm s výkonom 6 kW, spriahnutý s ohrievačom teplej úžitkovej vody s objemom 110 litrov. Tento systém umožňuje individuálnu reguláciu teploty a optimalizáciu nákladov.
- Vykurovacie Telesá: V kúpeľniach sú rebrové vykurovacie telesá.
- Príprava TÚV: Zabezpečuje elektrický ohrievač TÚV, spriahnutý s elektrokotlom.
Elektrická Prípojka:
- Objekt je napojený na verejnú nízkonapäťovú elektrickú sieť. Prívod energie je zabezpečený z už existujúcej prípojky.
Doplnkové Vybavenie a Výhody:
Mnohé novostavby ponúkajú nadštandardné vybavenie, ktoré zvyšuje komfort bývania:
- Terasy a Balkóny: Často sú súčasťou bytov, poskytujú priestor na oddych a relaxáciu. Niektoré byty disponujú rozsiahlymi terasami, napríklad 3i byt na ul. Strážovská s terasou 79m2.
- Parkovanie: K dispozícii sú parkovacie miesta, garážové státia alebo dokonca garáže. Niektoré projekty ponúkajú aj viacero parkovacích miest k jednému bytu.
- Kobky: Úložné priestory, ktoré zvyšujú praktickosť bývania.
- Súkromie a Bezpečnosť: Čiastočne uzatvorené areály, kamerové systémy a kvalitné vstupné dvere prispievajú k pocitu bezpečia.
- Cyklistické Trasy: V blízkosti niektorých projektov (napr. v Poprade) budú vybudované cyklotrasy, ktoré umožňujú ekologické a zdravé dochádzanie.
- Výhľady: Projekty v atraktívnych lokalitách (napr. Makarska, Námestovo s výhľadom na Oravskú priehradu) ponúkajú panoramatické výhľady.
Finančné Aspekty a Investičná Príležitosť
Kúpa novostavby predstavuje významnú investíciu, preto je dôležité zvážiť všetky finančné aspekty.
Ceny Bytov:
Ceny sa líšia v závislosti od lokality, veľkosti bytu, štandardu vybavenia a aktuálnej situácie na trhu. V ponuke nájdeme byty s cenami od 148 000 € (2-izbové byty v projekte "Bytové domy Maty") až po luxusné apartmány v zahraničí. Ceny za meter štvorcový sa pohybujú od 90 €/m² vyššie.
Financovanie:
- Platobné Podmienky: Často sú nastavené vo forme splátok. Napríklad projekt "Financovanie Dolného Slanca" uvádza platbu 20% pri podpise zmluvy o budúcej zmluve a 80% po kolaudácii a podpise kúpnej zmluvy.
- Hypotekárne Úvery: Väčšina bánk poskytuje hypotekárne úvery na kúpu novostavieb.
- Investičná Príležitosť: Dopyt po nájomnom bývaní garantuje stabilný výnos, čo robí z novostavieb atraktívnu investičnú príležitosť.
Výzvy a Úvahy pri Kúpe Novostavby
Napriek mnohým výhodám je pri kúpe novostavby potrebné zvážiť aj potenciálne výzvy:
- Doba Výstavby: Niektoré projekty sú vo fáze výstavby, čo znamená dlhšie čakanie na dokončenie. Dôležité je sledovať predpokladané termíny kolaudácie (napr. leto/jeseň 2025 v Makarskej).
- Skryté Vady: Aj keď sú novostavby štandardizované, vždy existuje malé riziko skrytých technických problémov, ktoré sa môžu prejaviť neskôr.
- Výber Developera: Je dôležité vybrať si renomovaného developera s dobrou povesťou a históriou úspešných projektov.
- Lokalita: Dôkladne zvážte dostupnosť občianskej vybavenosti, dopravnú infraštruktúru a potenciálny rozvoj okolia.
Budúcnosť Novostavieb Bytových Domov
Trh s novostavbami bytových domov bude pravdepodobne naďalej rásť, poháňaný dopytom po modernom a kvalitnom bývaní. Očakáva sa aj zvýšený dôraz na udržateľnosť a ekologické aspekty výstavby, vrátane energeticky úsporných technológií a ekologických materiálov. S rozvojom technológií a inovácií sa budú objavovať aj nové trendy v dizajne a funkčnosti bytových domov, ktoré budú ešte lepšie zodpovedať meniacim sa potrebám obyvateľov.
Projekty ako "Pripravujeme: Moderná novostavba bytového domu, Byty Maty" alebo "NOVÉ moderné byty v Šarišských Michaľanoch" ukazujú, že výstavba nových bytových domov je neustály proces, ktorý reaguje na potreby trhu a snaží sa priniesť inovácie a kvalitné bývanie pre čo najširšiu skupinu záujemcov. Dôležité je aj posudzovanie projektov z pohľadu "DOSTANE VAŠA RODINA V MESTE ZA SVOJE PENIAZE MAXIMUM?", čo nabáda k racionálnemu porovnávaniu ponúk a zvažovaniu dlhodobej hodnoty investície do bývania.
tags: #novostavba #bytoveho #domu