Obec Svinia, situovaná v okrese Prešov, sa v posledných rokoch stáva atraktívnou lokalitou pre výstavbu moderných rodinných domov, predovšetkým typu bungalov. Tieto novostavby, často s dôrazom na čisté línie, veľké presklené plochy a harmonické začlenenie do okolitej krajiny, ponúkajú obyvateľom kombináciu komfortu, praktickosti a výhodnej polohy v blízkosti krajského mesta Prešov.

Výhody bývania v lokalite Svinia
Svinia sa vyznačuje výbornou občianskou vybavenosťou a strategickou polohou, čo sú kľúčové faktory pri výbere nového domova. Ulica Šarišská, ako príklad lokality, spája praktickú polohu s jasnou orientáciou v obci. Moderný rodinný dom s čistými líniami a veľkými preskleniami tu prirodzene nadväzuje na exteriér - denná časť sa otvára na terasu a záhradu. Každodenné fungovanie tu podporuje blízkosť základných služieb a jednoduché presuny po okolí. Nákup vybavenia je možný priamo pri dome, v obchode Coop Jednota vo vzdialenosti len 19 metrov. Pre neformálne stretnutia so susedmi poslúži krčma Klub Kamarátov, situovaná vo vzdialenosti 14 metrov. Tieto body vytvárajú prirodzené zázemie bez potreby dlhšieho presunu autom. Bežnú agendu vybavíte pohodlne aj na pošte Svinia, ktorá je vzdialená 221 metrov. Všetko tak zostáva na dosah z terasy a záhrady, ktoré plynulo nadväzujú na interiér s priestrannou obývačkou. Spojenie s okolím uľahčuje autobusová zastávka Svinia, pož. zbroj., vo vzdialenosti 243 metrov. Táto zastávka zabezpečuje napojenie na širšie okolie, čo je oceniteľné pri dochádzaní za prácou či za službami.
Realitný expert: Novostavby zdraželi o 100 %, meter štvorcový stojí cez 4000 €
Architektonické a dizajnové prvky novostavieb
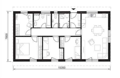
Novostavby bungalovov v obci Svinia často prezentujú moderný architektonický štýl. Bez zbytočných komplikácií sa do okolia vpájajú prirodzene, čím rešpektujú jeho charakter. Tieto domy nepretvárajú okolie, ale stávajú sa jeho prirodzenou súčasťou. Denná časť, ktorá spája obývačku, jedálenský kút a kuchyňu do jedného harmonického celku, je kľúčovým prvkom pre moderné rodinné bývanie. Pod nohami sa nachádza podlaha s jemnou kresbou dreva, nad hlavou decentné LED osvetlenie - detaily, ktoré tvoria každodenný komfort bez toho, aby o sebe dávali vedieť. Čisté línie a veľké presklenia sú ďalšími charakteristickými prvkami, ktoré prepúšťajú dostatok prirodzeného svetla do interiéru a zároveň vizuálne prepájajú vnútorné priestory s exteriérom, najmä s terasou a záhradou. Tento typ domu je často označovaný ako moderný rodinný dom druhej kategórie, ktorý na prvý pohľad zaujme čistými líniami a francúzskymi oknami, no jeho skutočná sila sa ukáže až vo vnútri.
Typológia a možnosti výstavby
V obci Svinia sú dostupné pozemky vhodné na výstavbu rodinného domu, či už vo forme bungalovu alebo dvojpodlažného domu. Ponúkajú sa pozemky s rôznou výmerou, napríklad 611 m² s podielom na prístupovej ceste, alebo rozsiahlejšie pozemky s výmerou 1967 m² či 1891 m². Pri mnohých pozemkoch sú už k dispozícii inžinierske siete ako elektrina, vodovod a kanalizácia, alebo sú tieto siete dostupné v ich blízkosti na hlavnej ceste. V niektorých prípadoch je vyhotovený projekt na vodu a kanál, prípadne je už vyriešená aj elektrická prípojka. Možnosť výmeny pozemku za byt či doplatok je tiež súčasťou niektorých ponúk, čo zvyšuje flexibilitu pre potenciálnych kupujúcich.

Infraštruktúra a dostupnosť
Obec Svinia disponuje dobrou infraštruktúrou a výborným napojením na okolie. Ako bolo spomenuté, občianska vybavenosť ako obchody a pošta sú v pešej dostupnosti. Zastávka verejnej dopravy zabezpečuje spojenie s okolitými obcami a mestom Prešov. Blízkosť diaľnice D1 je ďalšou významnou výhodou, ktorá skracuje čas cestovania do vzdialenejších destinácií. Vzdialenosť len približne 5 minút autom od mesta Prešov znamená, že obyvatelia majú na dosah kompletnú mestskú vybavenosť vrátane pracovných príležitostí, škôl, zdravotníckych zariadení a kultúrnych možností.
Ponuka nehnuteľností a realitný trh
Na realitnom trhu v okrese Prešov, do ktorého Svinia patrí, pôsobí viacero realitných kancelárií. Niektoré z nich sú aj overenými členmi ZRKS (Združenie realitných kancelárií Slovenska). V lokalite Svinia je možné nájsť rôzne typy nehnuteľností, vrátane 2-podlažných rodinných domov s garážou a pozemkami, ako aj stavebné pozemky určené na výstavbu rodinných domov. Ponuky často zdôrazňujú atraktívnu cenu, časovo obmedzené akcie či exkluzívne zastúpenie konkrétnej nehnuteľnosti realitnou kanceláriou.
Pri konkrétnych ponukách sa často uvádzajú detailné informácie ako zastavaná plocha (napr. 142.13 m²), celková rozloha pozemku (napr. 600 m² alebo 1891 m²), úžitková plocha domu (napr. 111.5 m²), počet poschodí (typicky 1 pre bungalov) a stav nehnuteľnosti (napr. holopriestor, čo znamená, že dom je pripravený na dokončovacie práce podľa predstáv nového majiteľa).
Zabezpečenie služieb a komplexný servis
Realitné kancelárie pôsobiace v regióne zvyčajne zabezpečujú kompletné služby spojené s kúpou, predajom a prenájmom nehnuteľností. To zahŕňa poradenstvo, obhliadky, prípravu zmlúv, zabezpečenie financovania prostredníctvom hypotekárnych úverov a asistenciu pri celom procese prevodu vlastníctva. Tento komplexný servis uľahčuje a zjednodušuje celý proces nadobúdania novej nehnuteľnosti.

Budúcnosť a potenciál lokality
Vzhľadom na rastúci záujem o bývanie v pokojnom prostredí s dobrou dostupnosťou k mestským službám, obec Svinia a jej okolie, vrátane ulice Šarišská, predstavujú atraktívnu lokalitu pre budúcich obyvateľov. Novostavby bungalovov tu reflektujú moderné trendy v bývaní, ktoré kladú dôraz na nadčasovú estetiku, funkčnosť a súlad s prírodou. Možnosť výberu z rôznych typov pozemkov a domov, spolu s dobrou infraštruktúrou a občianskou vybavenosťou, robí zo Svinie ideálne miesto pre rodinné bývanie s vysokou kvalitou života.
tags: #novostavba #bungalov #v #obci #svinia