Problematika pivníc v bytových domoch, ich vlastníctva a užívania, je často zdrojom nejasností a sporov. Táto problematika si vyžaduje podrobnejšie preskúmanie z hľadiska katastrálneho práva a právnych predpisov upravujúcich vlastníctvo bytov a nebytových priestorov. Pochopenie právneho rámca a praktických krokov je kľúčové pre efektívne riešenie neoprávneného užívania týchto priestorov.
Pivnica ako príslušenstvo bytu
Zákon č. 182/1993 Z. z. o vlastníctve bytov a nebytových priestorov (ďalej len "BytZ") priamo nedefinuje pojem "pivnica". Preto je potrebné analyzovať pojem "príslušenstvo bytu". § 2 ods. 7 BytZ definuje podlahovú plochu bytu ako plochu všetkých miestností bytu a miestností, ktoré tvoria príslušenstvo bytu. Definíciu príslušenstva nájdeme v § 121 ods. 2 Občianskeho zákonníka, ktorý hovorí o "vedľajších miestnostiach a priestoroch určených na to, aby sa s bytom užívali". Z tejto definície vyplýva, že pivnica, ako vedľajší priestor určený na užívanie s bytom, je považovaná za príslušenstvo bytu.

Rozhodnutie Najvyššieho súdu SR sp. zn. 6MCdo 47/2012 potvrdzuje, že príslušenstvom bytu sú miestnosti v byte (napr. predsieň, komora, WC, kúpeľňa) a priestory mimo bytu, ktoré sú určené na trvalé užívanie s bytom. Všetko by malo vyplývať zo zmluvy o prevode vlastníctva k bytu a nebytového priestoru v dome, pokiaľ je samozrejme napísaná správne. Pivnica patrí k bytu a mala by byť zapísaná ako príslušenstvo k bytu. Táto skutočnosť je zásadná pre pochopenie právneho vzťahu k pivnici a jej začlenenia do celkovej podlahovej plochy bytu, ktorá následne ovplyvňuje výšku podielu na spoločných častiach a zariadeniach domu.
Evidencia pivníc v katastri nehnuteľností
Právne vzťahy k pivnici sa samostatne v katastri nehnuteľností neevidujú, čo potvrdzuje aj rozhodnutie Najvyššieho súdu SR, sp. zn. 10Sžr/174/2013. Avšak, podľa stanoviska uvedeného v Katastrálnom bulletine na rok 2022, príslušenstvo veci môže byť prevedené na nového nadobúdateľa, a to buď súčasne s prevodom hlavnej veci, alebo nezávisle na tomto prevode. Ak je predmetom prevodu len príslušenstvo k veci, vlastnícke právo k nemu prejde už samotnou platnou zmluvou. Zmena spoluvlastníckeho podielu na spoločných častiach a spoločných zariadeniach domu, ktorá vznikne prevodom pivnice sa zapíše do katastra nehnuteľností záznamom na návrh podľa § 35 ods. 2 zákona NR SR č. 162/1995 Z. z.
V prípade, ak bola katastru nehnuteľností doručená zmluva, ktorej predmetom bol prevod vlastníckeho práva k pivnici a účastníci konania zaplatili poplatok za návrh na vklad vlastníckeho práva (ďalej aj len ,,vkladové konanie“), Najvyšší súd SR v rozhodnutí sp. zn. 1 Sžr/1332013 potvrdil, že ak dochádza k prevodu pivnice ako príslušenstva bytu, vlastnícke právo k nej prechádza už samotnou platnou kúpnou zmluvou. Uvedený zápis musí vyplývať z listu vlastníctva (teda ako samostatný nebytový priestor). Vlastník s takto zapísanou pivnicou môže voľne disponovať, teda napr. predať alebo prenajať. Uvedené je možné vykonať vo vzťahu k akejkoľvek tretej osobe.
Chcete vedieť ako sa dá s citom vyladiť interiér v 3 izbovom byte?
Je dôležité rozlišovať medzi zápisom pivnice ako samostatného nebytového priestoru a jej evidenciou ako príslušenstva bytu. V prvom prípade, ak je pivnica zapísaná ako samostatný nebytový priestor, vlastník má s ňou plné dispozičné právo. V druhom prípade, keď je pivnica evidovaná ako príslušenstvo bytu, jej prevod nezávisle od bytu má špecifické dôsledky na spoluvlastnícky podiel. Podľa § 5 ods. 1 písm. b/ zákona č. 182/1993 Z. z., výška podielu na spoločných častiach a zariadeniach domu závisí od podlahovej plochy bytu, ktorá zahŕňa aj plochu príslušenstva. Prevodom pivnice ako príslušenstva tak dochádza k zmene celkovej podlahovej plochy bytu a tým aj k zmene podielu na spoločných častiach. Táto zmena sa následne zapisuje do katastra nehnuteľností záznamom.
Neoprávnené užívanie elektriny a jeho dôsledky
Často dochádza k situáciám, že vlastník pivnice si neoprávnene pripojí elektrinu bez akéhokoľvek merača a využíva ju bez vedomia ostatných vlastníkov bytov a nebytových priestorov. Vyčíslenie škody je v tomto prípade dosť náročné a uplatnenie náhrady škody podľa občianskoprávnych predpisov predstavuje skôr prekážku. Vlastník pivnice by mal uplatňovať jednoduché ľudské pravidlo, že za to ,,čo odoberám by som mal zaplatiť a nespôsobovať škodu iným vlastníkom bytov a nebytových priestorov“. Tento problém sa stáva čoraz častejším.

Pivnica predstavuje riziko o to viac, pretože ide o priestor do ktorého sa nemusí vstupovať denne. Napríklad, vyhláška č. 96/2004 Z.z. Ministerstva vnútra, ktorou sa ustanovujú zásady protipožiarnej bezpečnosti pri manipulácii a skladovaní horľavých kvapalín, ťažkých vykurovacích olejov a rastlinných a živočíšnych tukov a olejov v § 15 ods. 2 uvádza, že ,,v byte a v príslušenstve bytu možno ukladať najviac 5 l horľavých kvapalín.“ Horľaviny možno uskladňovať výlučne v prenosných, nehorľavých a nerozbitných nádobách - kanistroch, so zabezpečením proti úniku prchavých látok. Neoprávnené užívanie elektriny môže viesť k zvýšenému riziku požiaru, najmä ak sú v pivnici skladované horľavé materiály. Okrem toho, takéto konanie môže viesť k sporom medzi vlastníkmi a k nutnosti riešenia situácie prostredníctvom právnych krokov.
Zistenie skutočného stavu a domový poriadok
Veľký význam môže zohrať správne nastavené pravidlo v domovom poriadku, napr. tak, že ,,ak užívatelia bytov uskladňujú v pivnici potraviny alebo nebezpečný, najmä horľavý materiál, sú povinní urobiť také opatrenia, aby nedochádzalo k vzniku požiaru a nebezpečenstva ohrozenia života, zdravia a majetku ostatných obyvateľov v dome“.
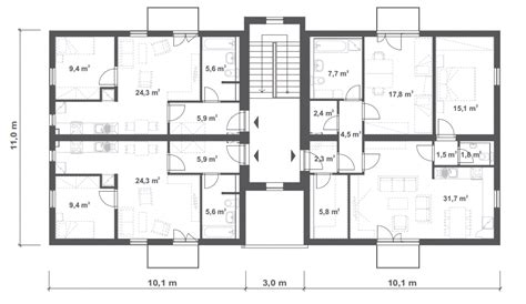
Zistenie skutočného stavu: Presne zistiť, ktorá pivnica patrí k bytu. To je možné overením dokladov na katastri nehnuteľností, prípadne preštudovaním pôvodnej dokumentácie k stavbe. V zmysle § 5 ods. 1 zákona č. 182/1993 Z. z., k prvej zmluve o prevode vlastníctva bytu alebo nebytového priestoru v dome sa pripájajú situačné plány jednotlivých poschodí domu s vyznačením jednotlivých bytov a nebytových priestorov, vrátane garážových stojísk a skladových priestorov, ich čísel a identifikácie pozemku. Tieto plány sú kľúčové pre identifikáciu pôvodného pridelenia pivníc.

Písomná výzva: Ak sa zistí, že sused užíva pivnicu neoprávnene, je potrebné ho písomne vyzvať na vypratanie a odovzdanie pivnice. Táto výzva by mala byť zaslaná doporučene s doručenkou, aby sa zabezpečil dôkaz o jej doručení.
Súdne konanie: Ak výzva nepomôže, je možné podať na súd návrh na vypratanie pivnice. V tomto prípade je dôležité mať k dispozícii všetky relevantné dôkazy, ako sú výpisy z listu vlastníctva, pôvodná projektová dokumentácia, prípadne svedecké výpovede.
Príklad z praxe: Nezhody pri prevode pivnice
Kúpila som si byt, súčasťou ktorého je aj pivnica. Majiteľ mi ukázal byt, aj pivnicu. V kúpno-predajnej zmluve je uvedené, že byt sa predáva v takom stave ako je uvedené v Prvej zmluve /ktorou získal byt do vlastníctva/, ale túto zmluvu mi nechcel dať, pretože vraj načo mi je. Ale v tej zmluve boli v prílohe presne určený náčrt bytu, jeho rozloha, aj prináležiaca pivnica… ani tieto prílohy mi nechcel poskytnúť. Pri rekonštrukcii elektrických rozvodov v bytovom dome som sa ale k týmto prílohám k svojmu bytu dostala a s prekvapením som zistila /a už som vedela, že prečo mi ich vtedy nechcel dať/, že pôvodný majiteľ mi neukázal pivnicu moju, ktorá patrí podľa dokumentov k bytu, ale inú menšiu… Keď som kontaktovala susedov, aby mi vrátili moju pivnicu, ktorú som si s bytom vlastne kúpila, tak mi povedali, že ich to nezaujíma, že oni majú doklad o tom, že si pivnice vymenili ešte kým som pivnicu kúpila. Doklad mi ale nechceli poskytnúť, že mňa do toho nič nie je a mám si nechať tú pivnicu, ktorú mi dali, že sú rovnaké, majú rovnaký podiel na spoločných častiach, tak sa len vymenili. O tejto výmene však neexistuje nijaký a nikde záznam, ani v katastri, ani na bytovom… Navyše pivnice nie sú rovnaké, čo je jasne aj viditeľné v dokladoch z katastra a mňa majiteľ neupozornil, že k nejakej výmene došlo, alebo, že existuje nejaká dohoda, či zmluva. Ja svoju väčšiu pivnicu chcem, patrí k môjmu bytu… Ako teda mám postupovať, majiteľ mi predal byt s pôvodnou pivnicou na papieri, ale v skutočnosti ukázal inú.
Dobrý deň, najskôr by ste si mali presne zistiť, ktorá pivnica patrí k Vášmu bytu. Môžete ísť na kataster a pozrieť sa do dokladov až k okamihu, keď bola stavba postavená. Takto zistíte, či máte alebo nemáte pivnicu, a ktorá pivnica Vám patrí. Pokiaľ zistíte, že on užíva Vašu pivnicu, môžete podať návrh na súd na vypratanie pivnice. Zrejme takto sa postupovalo aj v prípade ostatných bytov. Nevieme z akého dôvodu iný vlastník bytu si teraz po 35 rokoch nárokuje na užívanie Vašej pivnice, na základe akých dokladov a podkladov (ide o lepšie umiestnenie?).
V tomto prípade je kľúčové preukázať, ktorá pivnica bola pôvodne pridelená k bytu na základe projektovej dokumentácie a zmlúv. Ak neexistuje platná zmluva o výmene pivníc alebo iný právny dokument, ktorý by túto výmenu legalizoval, potom sa jedná o neoprávnené užívanie cudzej pivnice. Súdne konanie bude pravdepodobne nevyhnutné na presadenie vlastníckeho práva.
Pivnica ako osobný majetok a jej revitalizácia
Pivnica je príslušenstvom bytu, ktoré sa započítava do podlahovej plochy bytu. Znamená to, že pivnica je osobným vlastníctvom vlastníka bytu. Často sa zamieňa príslušenstvo bytu s nebytovým priestorom. To, že sa pivnica nachádza mimo bytu t.j. mimo jeho uzavretia neznamená, že ide o nebytový priestor.
Revitalizácia pivničných priestorov je záležitosťou vlastníka bytu, ktorý si ju hradí na vlastné náklady. Nie je možné použiť fond prevádzky, údržby a opráv (FPÚO) na revitalizáciu pivníc, nakoľko ide o osobný majetok. Výnimkou môže byť komplexná obnova bytového domu s podporou zo Štátneho fondu pre rozvoj bývania (ŠFRB), kde je možné požiadať o revitalizáciu pivníc ako o inú modernizáciu.
V prípade výmeny pivnice nie je potrebné stavebné povolenie, ohlásenie ani súhlas vlastníkov, ak je to v súlade s protipožiarnymi predpismi a projektovou dokumentáciou. Tieto úkony sú však možné len v prípade, ak sú všetky zúčastnené strany v súlade a ak nedochádza k porušeniu práv iných vlastníkov alebo k ohrozeniu bezpečnosti.
Spoločné priestory a pivnice
Pokiaľ jednoznačne v kúpnej zmluve nepreukáže, že tá pivnica je jeho, tak ide o spoločný priestor, ktorý si ten majiteľ svojvoľne zabral. Treba sa pozrieť na projektovú dokumentáciu domu, najlepšie na plán pôdorysu domu, ten by mal mať správca alebo zástupca vlastníkov domu. Je možné, že dotyční páni si zabrali nebytové priestory - kočikárne, sušiarne, práčovne alebo "mopedárne", tak ako to bolo u nás. Tiež jeden sused tvrdil, že to patrí k jeho bytu, no ale keď sme mu dokázali, že sú to nebytové priestory a chceli sme od neho poplatok za prenájom miestnosti, bez slova to vypratal. Nikto si nemôže zabrať spoločné časti domu, ktoré patria všetkým! Takže, nikto nemôže v dome povedať, že niekomu, vlastníkovi neumožníme prístup k jeho osobnému vlastníctvu v dome, bytu cez náš spoločný podiel na spoločných častiach domu, pretože spoločníkom nebytových priestoroch v dome sú všetci vlastníci bytov, podľa majetkového podielu v dome, teda podľa užitkovej plochy m2. Teda aj ten, ktorému chceme, bránime v prístupe a využívaní svojho majetku. A to je obmedzovanie jeho práv. Pokiaľ niekto povie, spravme to takto!
V tomto kontexte je dôležité zdôrazniť, že spoločné časti domu sú majetkom všetkých vlastníkov bytov a nebytových priestorov, a to podľa ich spoluvlastníckeho podielu. Nikto si nemôže svojvoľne prisvojiť časť spoločného priestoru bez súhlasu ostatných vlastníkov. V prípade zistenia takéhoto konania je potrebné konať prostredníctvom správcu domu alebo zástupcu vlastníkov a v krajnom prípade aj právnou cestou. Zabezpečenie prístupu k osobnému vlastníctvu, vrátane pivnice, je základným právom každého vlastníka.

Je potrebné si uvedomiť, že neoprávnené užívanie pivnice, či už ide o fyzické zabratie priestoru, alebo neoprávnené pripojenie k elektrickej sieti, predstavuje porušenie práv ostatných vlastníkov a môže mať právne dôsledky. Dôkladné poznanie právnych predpisov, projektovej dokumentácie a prípadne aj domového poriadku je nevyhnutné pre efektívne riešenie týchto situácií. V prípade pochybností je vždy vhodné vyhľadať odbornú právnu pomoc.