Bungalov, kedysi importovaný z exotických krajín, sa dnes stal jedným z najpopulárnejších typov rodinných domov na Slovensku. Jeho obľúbenosť pramení z mnohých výhod, ktoré ponúka - od komfortného bývania na jednej úrovni až po moderný dizajn a energetickú efektivitu. Či už hľadáte svoj prvý domov, priestor pre rastúcu rodinu, alebo bezbariérové bývanie pre seniorov, malý bungalov môže byť ideálnym riešením. Tento článok vás prevedie všetkým, čo potrebujete vedieť pri výbere a kúpe malého bungalovu, zameriavajúc sa na praktické aspekty, ceny, výhody a nevýhody.

Bungalov: Pôvod a jeho adaptácia na slovenské podmienky
Bungalov má svoje korene v Indii, odkiaľ ho anglickí kolonisti preniesli na Britské ostrovy a neskôr sa rozšíril do celej Európy. Pôvodné ľahké, vzdušné drevené stavby s nízkou strechou neboli ideálne pre slovenské klimatické podmienky. Postupom času sa však bungalovy prispôsobili našim klimatickým podmienkam a prísnym stavebným normám, čím sa stali prevládajúcim typom novostavieb rodinných domov v krajine.
Energetický paradox bungalovov a vplyv tvaru domu
Podľa prísnych noriem energetickej hospodárnosti budov sa dnes už stavajú len novostavby rodinných domov definované ako pasívne, v najvyššej triede energetickej náročnosti A0. Paradoxne, náklady na vykurovanie a prípravu teplej vody v bungalove môžu byť vyššie ako v dvojpodlažnom dome s dvojnásobnou výmerou. Kľúčovým faktorom ovplyvňujúcim náklady na vykurovanie a chladenie je tvar domu, presnejšie pomer vonkajších plôch k vnútornému objemu stavby. Čím členitejší tvar domu, tým náročnejšie je jeho vykúrenie. Ideálny je čo najkompaktnejší tvar, ktorý minimalizuje tepelné straty cez obvodové múry a strechu. Bungalovy, ktoré majú väčšiu plochu obálky stavby v pomere k vnútornému objemu, vyžadujú preto osobitnú pozornosť pri návrhu energetickej efektivity.
Dom na kľúč: Čo to znamená v praxi?
Pojem „dom na kľúč“ nie je právne definovaný, čo znamená, že na stavebnom trhu existuje široká škála služieb pod týmto označením. Niektoré firmy vám postavia len hrubú stavbu, iné holodom, a ďalšie zrealizujú stavbu kompletne podľa vášho projektu. Bežné služby v rámci „domu na kľúč“ zahŕňajú:
- Odbornú prípravu projektu v spolupráci so zadávateľom.
- Vybavenie stavebného povolenia.
- Prípravu pozemku na výstavbu vrátane inžinierskych sietí.
- Realizáciu samotnej výstavby.
- Vyčistenie staveniska.
- Ukončenie výstavby vrátane kolaudácie.
Je preto nevyhnutné si presne definovať, čo si pod pojmom „dom na kľúč“ predstavujete a aký rozsah služieb od stavebnej firmy očakávate, aby sa predišlo nedorozumeniam a aby sa konečná cena diela odvíjala od dohodnutého rozsahu.
Cena a hodnota bývania v súčasnosti
Ceny nehnuteľností na Slovensku v posledných rokoch rastú dvojciferným tempom, čo pripomína situáciu pred globálnou ekonomickou krízou v roku 2007. Napriek rekordne vysokým cenám nehnuteľností a rastúcim nákladom na stavebné materiály a práce, stavebný boom na Slovensku pokračuje. Dnes je často lacnejšie postaviť menší prízemný dom s výmerou porovnateľnou s trojizbovým bytom, ako kúpiť takýto byt v rovnakej lokalite.
Štatistický úrad SR a Národná banka Slovenska priebežne sledujú a zverejňujú priemerné ceny nehnuteľností. V roku 2021 bola priemerná cena za m² rodinného domu na Slovensku 1594 €.
Faktory ovplyvňujúce cenu bungalovu
Celková cena bungalovu na kľúč je ovplyvnená viacerými kľúčovými faktormi:
- Výmera: Väčšia zastavaná a úžitková plocha prirodzene zvyšuje cenu.
- Tvar: Členitejší pôdorys zvyšuje náročnosť výstavby a tým aj cenu. Kompaktné tvary sú ekonomickejšie.
- Poloha a orientácia: Orientácia domu voči svetovým stranám ovplyvňuje energetickú náročnosť a cenu pozemku.
- Lokalita: Ceny stavebných pozemkov a prác sa líšia podľa regiónu. Bungalov postavený v blízkosti Bratislavy bude drahší ako rovnaký dom v menej exponovanej oblasti. Napríklad, cena bungalovu na kľúč pri Bratislave sa môže pohybovať od 110 000 do 350 000 €, v závislosti od konkrétnych parametrov stavby a cenníkov stavebných firiem.
- Spôsob vykurovania, ohrevu vody, chladenia a vetrania: Moderné systémy zvyšujú počiatočné náklady, ale znižujú prevádzkové.
- Cena stavebných materiálov: Aktuálny vývoj cien na trhu priamo vplýva na celkovú cenu stavby.
- Cena zariadení a technológií: Kvalitné a moderné technológie zvyšujú cenu domu.
- Cena interiérového vybavenia: Od štandardného až po luxusné vybavenie ovplyvňuje konečnú sumu.
- Cena stavebných prác: Náklady na prácu stavebných firiem tvoria významnú časť rozpočtu.

Faktor času: Svojpomocne verzus na kľúč
Výstavba domu svojpomocne vždy trvá dlhšie ako stavba realizovaná na kľúč. Bungalov na kľúč, od základov až po finálne úpravy, môžu šikovní stavbári postaviť za niekoľko mesiacov, pričom sa jedná o štandardný murovaný dom, nie o rýchlo montovaný drevený bungalov.
Výhody a nevýhody stavby bungalovu na kľúč
Výhody:
- Profesionálne a kvalitné prevedenie: Stavbu realizujú odborníci.
- Relatívna rýchlosť výstavby: Proces je efektívnejší.
- Minimálne starosti pre majiteľa: Stavebná firma sa postará o väčšinu organizačných a technických záležitostí.
Nevýhody:
- Vyššia cena: V porovnaní so svojpomocnou výstavbou je cena vyššia.
- Obmedzená kontrola nad procesom: Majiteľ má menší vplyv na jednotlivé kroky výstavby.
Bungalov ako kompromis medzi domom a bytom
Bungalovy si získavajú obľubu vďaka kombinácii výhod bývania v dome so záhradou a komfortu bývania na jednej úrovni. Všetky miestnosti sú prístupné bez nutnosti prechádzať po schodoch, čo ich robí ideálnymi pre mladé rodiny aj pre starších ľudí.
Katalógové projekty: Ideálne pre úzke pozemky a mladé rodiny
Katalógové projekty rodinných domov, vrátane bungalovov, sú často navrhnuté tak, aby maximalizovali priestor na úzkych pozemkoch a zároveň boli cenovo dostupné. Tieto projekty sú často vyhľadávané mladými rodinami, ktoré hľadajú svoj prvý domov, ako aj staršími ľuďmi, ktorí preferujú bezbariérové bývanie.
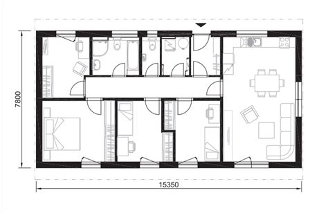
Malý bungalov do 80 m²: Kompaktné bungalovy s úžitkovou plochou do 80 m² sú efektívnym riešením pre páry, menšie rodiny alebo jednotlivcov. Napriek svojej veľkosti ponúkajú funkčné a vzdušné priestory, často s prepojenou obývacou izbou s kuchyňou a jedálenským kútom. Príklady takýchto domov zahŕňajú projekty s úžitkovou plochou okolo 60 m² až 70 m², ktoré disponujú dvoma až tromi izbami, kuchyňou, kúpeľňou a samostatným WC.

Projekty pre úzke pozemky: Pre úzke a dlhé pozemky sú ideálne projekty bungalovov s úzkou zastavanou plochou, ktoré efektívne využívajú dostupný priestor. Tieto domy často ponúkajú dobré dispozičné riešenie aj pre 4-5 člennú rodinu, s priestrannou obývacou izbou, tromi až štyrmi spálňami, kuchyňou so špajzou a terasou.
Kompaktné bungalovy s rôznym počtom izieb:
- Do 80 m²: Ideálne pre 3-4 člennú rodinu, s úžitkovou plochou okolo 60-70 m². Často zahŕňajú obývaciu izbu spojenú s kuchyňou, dve spálne, kúpeľňu a WC.
- Bungalovy s 5 izbami: Poskytujú dostatok priestoru pre viacčlennú rodinu, s priestrannou obývacou izbou, štyrmi spálňami a možnosťou pracovne či hosťovskej izby.
Katalógové projekty vs. Individuálne projekty
Katalógové projekty:
- Výhody: Nižšia cena, rýchle dodanie, overené riešenia, vhodné pre rovinaté pozemky.
- Nevýhody: Menšia flexibilita pri úpravách, nemusia ideálne zodpovedať špecifickým požiadavkám alebo svahovitým pozemkom.
Individuálne projekty:
- Výhody: Plne prispôsobené požiadavkám klienta a špecifikám pozemku, ideálne pre svahovité pozemky, maximálny komfort.
- Nevýhody: Vyššia cena, dlhší čas realizácie.
Bungalov ako bezbariérové riešenie
Všetky bungalovy sú zo svojej podstaty bezbariérové, čo z nich robí vynikajúcu voľbu pre starších ľudí alebo osoby so zníženou pohyblivosťou. Jednopodlažné bývanie eliminuje potrebu prekonávať schodiská, čím zvyšuje komfort a bezpečnosť.
Výber strechy a tvaru bungalovu
Bungalovy môžu mať rôzne typy striech - od tradičných sedlových a valbových až po moderné ploché strechy. Voľba strechy ovplyvňuje nielen celkový vzhľad domu, ale aj náročnosť výstavby a cenu. Pri členitejšom pôdoryse je dôležité zvážiť tvar strechy, aby esteticky dopĺňal celkový dizajn.
Bungalovy sa tiež líšia tvarom pôdorysu - môžu byť obdĺžnikové, štvorcové, v tvare L, U alebo T, čo umožňuje prispôsobiť dom špecifickým rozmerom a tvaru pozemku.

Finančné možnosti: Hypotéky a alternatívy
Pri plánovaní výstavby bungalovu je dôležité zvážiť finančné možnosti. Hypotéky sú bežným spôsobom financovania, avšak banky v posledných rokoch sprísnili pravidlá ich poskytovania. Ak sú vaše finančné prostriedky obmedzené, zvážte menší a tým aj lacnejší bungalov, prípadne alternatívne formy financovania. V porovnaní s cenami bytov, aj menší montovaný dom ponúka súkromie a priestor za priaznivú cenu.
Bungalovy na úzke pozemky a pre mladé rodiny
Projekty bungalovov sú často navrhnuté s ohľadom na obmedzené priestory, najmä na úzke pozemky. Tieto domy maximalizujú využitie zastavanej plochy a zároveň poskytujú dostatočný komfort a funkčnosť. Sú ideálne pre mladé rodiny, ktoré hľadajú dostupné bývanie mimo mestských centier, ako aj pre starších ľudí, ktorí uprednostňujú bezbariérové a praktické bývanie.
Výhody malého bungalovu
- Dostupné bývanie: Menší dom vyžaduje menej stavebného materiálu a práce, čím sa znižuje celková cena.
- Flexibilita umiestnenia: Menšia zastavaná plocha umožňuje umiestnenie na takmer akomkoľvek stavebnom pozemku, vrátane menších.
- Rýchla výstavba: Montované drevodomy môžu byť postavené na kľúč už za tri mesiace.
- Väčší vnútorný priestor, než sa na prvý pohľad zdá: Moderné konštrukčné riešenia, napríklad tenšie priečky pri drevodomoch, umožňujú efektívne využitie priestoru.
Nevýhody malého bungalovu
- Možná nedostatočnosť v budúcnosti: S rastom rodiny alebo potrebou viac priestoru môže byť malý bungalov časom nedostačujúci.
- Riziko zlej dispozície: Nevhodne zvolený projekt môže viesť k neoptimálnemu využitiu priestoru.
Videoprehliadka krásneho bungalovu zo Slovenska
Bungalovy a ich miesto v modernej architektúre
Bungalovy sa stále častejšie objavujú v moderných architektonických návrhoch, pričom sa využívajú rôzne tvary striech a fasádne materiály. Od tradičných sedlových striech až po minimalistické ploché strechy, bungalovy dokážu zapadnúť do rôznych architektonických štýlov a lokalít, od vidieka až po mestské prostredie.
Záverom k výberu bungalovu
Pri výbere malého bungalovu je dôležité zohľadniť nielen veľkosť a dispozíciu, ale aj orientáciu pozemku, jeho tvar, vaše finančné možnosti a dlhodobé plány. Bungalov predstavuje atraktívnu možnosť bývania, ktorá spája komfort, moderný dizajn a energetickú efektívnosť, a to všetko v príjemnom prostredí rodinného domu.