Hľadáte priestranný a dobre situovaný byt v Bánovciach nad Bebravou? Ponúkame Vám jedinečnú príležitosť zakúpiť si veľký 1-izbový byt s balkónom, komorou a pivnicou, ktorý sa nachádza na ulici Vystrkov. Táto lokalita vám poskytne nielen komfort bývania v tesnej blízkosti centra mesta, ale aj vynikajúcu dostupnosť k všetkým dôležitým službám a inštitúciám.

Výhody polohy a dostupnosti
Ulica Vystrkov je strategicky umiestnená v mestskej časti, ktorá ponúka ideálnu kombináciu pokojného bývania a zároveň plného komfortu mestského života. V bezprostrednej blízkosti sa nachádza Námestie Ľudovíta Štúra, ktoré je centrom diania v meste. Nájdete tu širokú škálu obchodov, úradov, škôl a iných služieb, ktoré sú nevyhnutné pre každodenný život. Táto výborná dostupnosť znamená, že všetky vaše potreby budete mať na dosah ruky, bez nutnosti dlhého cestovania.
Detailný opis bytu
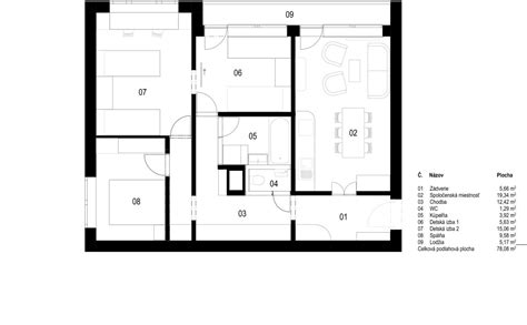
Samotný byt s celkovou rozlohou 43 m² je navrhnutý s dôrazom na praktickosť a funkčnosť. Vstup do bytu tvorí priestranná chodba, ktorá vás zavedie do jednotlivých častí bytu. Dominantou je veľká samostatná izba, ktorá poskytuje dostatok priestoru na oddych a relaxáciu. Kuchyňa je rovnako priestranná a navyše disponuje balkónom, ktorý je ideálnym miestom na rannú kávu alebo večerné posedenie s výhľadom na okolie. K bytu prislúcha aj praktická komora, ktorú je možné využiť ako šatník alebo na ďalšie úložné priestory. Samozrejmosťou je samostatná kúpeľňa a toaleta.

Jednou z významných výhod je aj spoločná uzamykateľná chodba, ktorá prispieva k zvýšeniu bezpečnosti a súkromia obyvateľov. K bytu navyše patrí aj uzamykateľná pivnica v suteréne, ktorá poskytuje ďalší priestor na uskladnenie sezónnych vecí alebo iných predmetov.
Stav a vybavenie nehnuteľnosti
Byt sa nachádza v pôvodnom, avšak starostlivo udržiavanom stave. Podlahy sú prevažne tvorené linoleom, zatiaľ čo v obývacej izbe sa nachádzajú zachovalé drevené parkety, ktoré dodávajú interiéru teplo a eleganciu. Vstup do bytového domu je zabezpečený elektronickým vrátnikom ovládaným priamo z bytu, čo zvyšuje komfort a bezpečnosť.
Bytový dom prešiel v posledných rokoch rozsiahlou rekonštrukciou. Bol zateplený, strecha bola zrekonštruovaná, rovnako ako vchody, balkóny a výťahové šachty. Rekonštrukcia sa dotkla aj rozvodov v stupačkách, čo znamená, že sa jedná o modernú a dobre udržiavanú budovu. Tieto investície do modernizácie zabezpečujú nielen komfortné bývanie, ale aj dlhodobé zhodnocovanie nehnuteľnosti.
Trh s nehnuteľnosťami v Bánovciach nad Bebravou
Priemerná cena nehnuteľností na predaj v Bánovciach nad Bebravou sa pohybuje na úrovni 1 391 €/m² pre zastavanú plochu a 76 €/m² pre pozemky. Celková cena za meter štvorcový sa pohybuje okolo 825 €/m², zatiaľ čo pri podlahovej a úžitkovej ploche je to 1 027 €/m². Tieto údaje naznačujú, že Bánovce nad Bebravou ponúkajú cenovo dostupné bývanie v porovnaní s inými regiónmi Slovenska.
Na trhu s nehnuteľnosťami v Bánovciach nad Bebravou nájdete širokú škálu ponúk, od cenovo dostupných pozemkov za 35 €/m² až po luxusné nehnuteľnosti s cenou 680 000 €. V ponuke sú rôzne typy nehnuteľností, vrátane rodinných domov, prevádzkových budov, stavebných pozemkov, rekreačných chalúp a samozrejme bytov.
Medzi ďalšie zaujímavé ponuky v Bánovciach nad Bebravou patrí napríklad prevádzková budova s bytovou jednotkou na ulici Vystrkov, ktorá prešla v roku 2018 kompletnou rekonštrukciou elektroinštalácie. V ponuke sú tiež stavebné pozemky so schváleným investičným zámerom v obci Podlužany, rodinné domy s veľkým pozemkom v Dvorci a Horných Držkovciach, či romantické chalúpky v Šípkove.
V kategórii bytov je trh rovnako pestrý. Nájdete tu 3-izbové byty v rôznych lokalitách a v rôznom stave rekonštrukcie, napríklad na uliciach Cyrila a Metoda, 5. apríla, Palkovičova či v centre mesta. Ponúkané sú aj 2-izbové byty, napríklad na ulici Cyrila a Metoda alebo v centre mesta. Pre tých, ktorí hľadajú menšie bývanie, sú k dispozícii aj garsónky, napríklad v zrekonštruovanom projekte Rezidencia Slnečná.
Je dôležité poznamenať, že ceny nehnuteľností sa môžu líšiť v závislosti od lokality, stavu nehnuteľnosti, jej veľkosti a vybavenia. Priemerné ceny slúžia ako orientačný ukazovateľ a pri konkrétnom výbere je potrebné skúmať jednotlivé ponuky detailnejšie.
Investičný potenciál
Kúpa bytu na ulici Vystrkov v Bánovciach nad Bebravou predstavuje nielen príležitosť na komfortné bývanie, ale aj potenciálnu investíciu. Vzhľadom na lokalitu v tesnej blízkosti centra mesta a v zrekonštruovanom bytovom dome s dobrou občianskou vybavenosťou, je tento byt atraktívny aj z hľadiska dlhodobého zhodnocovania. V prípade záujmu o prenájom by mohol byt generovať stabilný príjem, vzhľadom na neustály dopyt po bývaní v tejto oblasti.

Priemerná cena za meter štvorcový v Bánovciach nad Bebravou je 825 €, čo v porovnaní s inými okresnými mestami predstavuje relatívne dostupnú možnosť. Cena 53 000 € za 43 m² byt na ulici Vystrkov je teda v súlade s trhovými cenami a ponúka dobrý pomer ceny a výkonu, najmä s ohľadom na lokalitu a stav bytového domu.
Zhrnutie ponuky
Ponúkaný 1-izbový byt na ulici Vystrkov v Bánovciach nad Bebravou je ideálnou voľbou pre jednotlivcov alebo páry, ktoré hľadajú bývanie v centre diania s výbornou dostupnosťou k službám. Byt s rozlohou 43 m², balkónom, komorou a pivnicou sa nachádza v zateplenom bytovom dome s rekonštruovanou strechou a vchodmi. Pôvodný, ale udržiavaný stav bytu poskytuje priestor na individuálnu úpravu podľa vlastných predstáv. Cena 53 000 € predstavuje atraktívnu investíciu do bývania v perspektívnej lokalite.