Výber správneho pôdorysu rodinného domu je kľúčovým krokom k vytvoreniu funkčného a príjemného domova. V súčasnosti patria medzi najpopulárnejšie typy rodinných domov práve bungalovy, ktoré prinášajú množstvo výhod, najmä vďaka bývaniu na jednom podlaží bez nutnosti prekonávať schodiská. Tento článok sa zameriava na ekonomické bungalovy s dôrazom na ich pôdorysné riešenia, ktoré maximalizujú úžitkový priestor a zároveň minimalizujú náklady na výstavbu a prevádzku.
Princípy ekonomického návrhu bungalovu
Ekonomická výstavba a prevádzka domu nie sú len o nízkej cene, ale predovšetkým o premyslenom návrhu a efektívnom využití priestoru a materiálov. Zásady ekonomicky úspornej výstavby a bývania zahŕňajú niekoľko kľúčových aspektov, ktoré je dôležité zohľadniť už v počiatočnej fáze plánovania.
Jedným z hlavných cieľov pri návrhu ekonomického bungalovu je primeraná zastavaná plocha. Pre jednopodlažný rodinný dom s tromi spálňami a obývacou izbou s kuchyňou sa ideálna zastavaná plocha pohybuje okolo 110 m². Pri murovaných stavbách z kusového materiálu môže byť táto plocha o niečo väčšia kvôli hrúbke obvodových stien. Pre viacpodlažné domy je zastavaná plocha prirodzene navýšená o plochu schodiska.
Ďalším dôležitým faktorom je pomer zastavanej a úžitkovej plochy. Konvenčná technológia výstavby z kusového staviva, kde sú obvodové steny hrubšie, má menej výhodný pomer, kde až štvrtina zastavanej plochy môže byť tvorená samotnými stenami. Montované domy, vďaka tenším, ale rovnako kvalitným konštrukciám, dosahujú lepší pomer, čím sa znižujú nielen investičné, ale aj prevádzkové náklady.

Pri ekonomickom návrhu je kľúčové aj minimalizovanie chodieb a neefektívne využitého priestoru. Cielom je preniesť čo najviac úžitkovej plochy do obytných miestností. Eliminácia zbytočných chodieb maximalizuje funkčnosť dispozície.
Garáž ako súčasť domu môže negatívne ovplyvniť investičné aj prevádzkové náklady, najmä kvôli odlišným tepelno-technickým parametrom. Odporúča sa zvoliť samostatne stojacu garáž, prípadne garáž s jednou alebo dvoma spoločnými stenami.
Typ strechy má taktiež významný vplyv na cenu. Jednoznačne najekonomickejším typom strešnej konštrukcie je sedlová strecha s minimálnou členitosťou. Počet úžľabí, nároží, úrovní hrebeňa či vikierov podstatne zvyšuje cenu strešnej konštrukcie aj krytiny. Členité strechy navyše produkujú viac stavebného odpadu.
Optimalizácia návrhu rozvodov vnútorných sietí je ďalším prvkom úspory. Odporúča sa zoskupiť miestnosti s napojením na vodu a odpad do čo najmenšieho rozptylu, čím sa minimalizujú náklady na inštaláciu.
Pri rozpone miestností sa ako najvýhodnejšie z pohľadu ekonomiky stavieb javia rozpony od troch do 4,20 metrov. Väčšie alebo menšie rozpony môžu mať negatívny vplyv na ekonomiku výstavby.
Konkrétny príklad: Ekonomický bungalov 2303
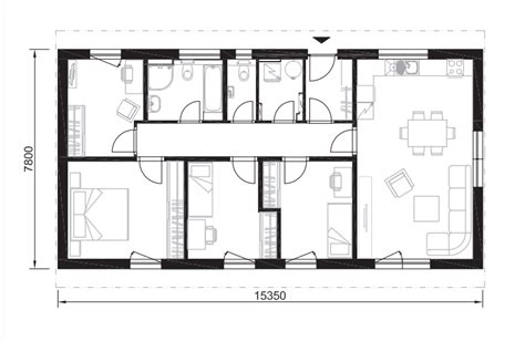
Jedným z príkladov ekonomického bungalovu je projekt s označením Bungalov 2303. Tento dom s celkovou úžitkovou plochou 91,9 m² je navrhnutý ako ekonomický a minimalistický s charakteristickou stanovou strechou. Je ideálny pre štvorčlennú rodinu a jeho dispozícia kládla dôraz na elimináciu chodieb s cieľom preniesť úžitkovú plochu do obytnej časti.

Kľúčovou výhodou tohto projektu je efektívne využitie priestoru. Dispozícia eliminuje zbytočné chodby, čím sa maximalizuje obytná plocha. Využitie výlezu do podkrovia poskytuje príručný úložný priestor, ktorý je v menších domoch mimoriadne cenný. Veľké okenné plochy v obývacej časti prepájajú interiér s exteriérom, čím vytvárajú pocit vzdušnosti a otvorenosti.
Hygienické zázemie je prakticky riešené samostatným WC a veľkou spoločnou kúpeľňou. Detské izby ponúkajú flexibilitu - je možné ich dispozične spojiť alebo oddeliť priečkou či nábytkom podľa aktuálnych potrieb rodiny.
Fasáda domu je obložená brizolitovou omietkou, ktorá pôsobí prírodne a citlivo zapadá do okolitej zástavby. Tento typ omietky je nielen estetický, ale aj odolný a nenáročný na údržbu, čo prispieva k celkovej ekonomickej výhodnosti domu.
Parametre projektu Bungalov 2303:
- Počet osôb: 4
- Orientácia vstupu: S, V
- Kúpeľne: 1
- Obytná plocha: 75,1 m²
- Zastavaná plocha: 114,5 m²
- Šírka pozemku: 15,7 m
- Dĺžka pozemku: 21,7 m
- Celková úžitková plocha: 91,9 m²
Tento projekt sa vyznačuje kompaktným tvarom, ktorý predurčuje dom k ekonomicky nenáročnej výstavbe a prevádzke. Dom je navrhnutý ako nízkoenergetický, s možnosťou realizácie vo vyšších energetických stupňoch úspory. Vnútorná infraštruktúra je situovaná na jednom centrálnom mieste, čo ďalej šetrí náklady na výstavbu a prevádzku.
OPLATIA SA bungalovy ako investícia do nehnuteľnosti?
Dispozičné riešenia pre rôzne potreby
Okrem projektu Bungalov 2303 existuje mnoho ďalších pôdorysov, ktoré sa zameriavajú na ekonomické a funkčné bývanie. Napríklad projekt Bungalow 215 je bezbariérový a vhodný pre 4 osoby, s maximálnym využitím zastavanej plochy. Jeho dispozícia začína chodbou, kde je možné umiestniť vstavaný šatník, a pokračuje do nočnej časti s tromi izbami. Spoločenská časť domu je priestranná, s prepojením obývačky a kuchyne, pričom je kladený dôraz na ich optické oddelenie.
Ďalšie projekty ako Bungalov 60 (109 m² úžitkovej plochy) alebo Bungalov 35 (111 m² úžitkovej plochy), ktorý je vhodný aj na užšie pozemky, ponúkajú podobné princípy - oddelenie dennej a nočnej zóny, minimálnu plochu chodieb a efektívne využitie priestoru.
Bungalov 3 v tvare L (127,5 m² úžitkovej plochy) zase ponúka vyvážené dispozičné riešenie s jasným oddelením dennej a nočnej časti, pričom denná zóna je priestranná a nočná časť zahŕňa spálňu a dve samostatné izby.
Pre menšie rodiny alebo ako rekreačné bývanie môže byť vhodný Bungalov 7 (64 m² úžitkovej plochy), kompaktný 3-izbový dom s jednoduchým a účelným riešením.
Bungalov 57 (84 m² úžitkovej plochy) je ďalším príkladom pozdĺžnej dispozície vhodnej na užšie pozemky, s centrálnou dennou zónou a nočnou časťou s tromi spálňami.
Všetky tieto projekty zdieľajú spoločnú filozofiu: maximalizovať funkčnosť a obytný priestor pri minimalizácii nákladov. Dôležité je pri výbere pôdorysu zohľadniť nielen počet izieb, ale aj orientáciu domu na svetové strany, veľkosť a tvar pozemku a možnosti jeho osadenia.
Ekonomické aspekty a materiály
Okrem samotného návrhu dispozície zohráva významnú úlohu pri ekonomickej náročnosti domu aj voľba stavebných materiálov a technológií. Keramické montované domy sú často prezentované ako ekonomicky najvýhodnejšia voľba pri zachovaní vysokej kvality. Vďaka patentovanej technológii a použitiu keramického kompozitu sú tieto domy ekonomické a energeticky úsporné aj pri prevádzke.
Použitie monolitických prefabrikovaných stenových dielcov v montovanej technológii výstavby prináša úsporu času a nákladov. Konštrukcia vyhotovená z priehradových väzníkov zároveň znižuje investičné náklady.
Dôležitá je aj voľba základovej dosky. Odporúčanou a ekonomicky výhodnou je vyľahčená, krížom rebrová a vopred odizolovaná základová doska, ktorá je v súlade s modernými trendmi a eliminuje nevýhody zastaraného zakladania na základových pásoch.

Pri výbere projektu je dôležité vnímať odhadovanú cenu výstavby ako sekundárnu informáciu. Skutočnú istotu cenovo racionálnej výstavby poskytuje faktor konštrukčnej jednoduchosti domu. Kompaktné a nekomplikované tvary domu sú vždy cenovo výhodnejšie ako komplikované stavby.
Základným predpokladom pre ekonomické bývanie je preto výber domu s konštrukčne jednoduchou architektúrou a kompaktným tvarom. Tieto princípy sa odrážajú nielen v nižších nákladoch na výstavbu, ale aj v nižších prevádzkových nákladoch počas celej životnosti domu. Dôraz na detailný návrh, správnu voľbu materiálov a technológií, ako aj na efektívne využitie priestoru, sú kľúčové pre vytvorenie skutočne ekonomického a zároveň komfortného rodinného domu typu bungalov.
tags: #ekonomicky #bungalov #podorys