Rekonštrukcia starého domu predstavuje komplexný proces, ktorý si vyžaduje dôkladné plánovanie, odborne zhodnotenie stavu nehnuteľnosti a správny výber stavebných materiálov pre zabezpečenie dlhodobej kvality a komfortu. Cieľom nie je len oprava existujúcich nedostatkov, ale transformácia starého obydlia na moderný a funkčný priestor, ktorý zodpovedá súčasným životným štandardom a energetickým nárokom. Tento proces je často spojený s obohacujúcou jednoduchosťou, kde sa menej prvkov a farieb používa na dosiahnutie maximálneho rozumu a lepšieho využitia priestoru.

Kľúčové aspekty a postup rekonštrukcie
Rekonštrukcia starého domu je výzvou, ktorá si vyžaduje premyslený prístup. Základným kameňom efektívnej rekonštrukcie je dobrý plán, ktorý by mal vychádzať zo stavebno-technického prieskumu stavby. Odborníci v rámci tohto prieskumu zhodnotia dom podľa viacerých kritérií s cieľom určiť, ktoré časti sa oplatí zachovať a ktoré je potrebné zbúrať či nahradiť.
1. Posúdenie stavu nosných konštrukcií a základov:Pred začatím akýchkoľvek prác je nevyhnutné posúdiť stav nosných múrov, základov, strechy a inštalácií. V prípade starších budov, postavených napríklad v situáciách s obmedzenými zdrojmi, ako tomu bolo pri dome z roku 1952, sa pôvodné základy mohli ukázať ako nedostatočne pevné. V takýchto prípadoch je nevyhnutné ich dodatočné spevnenie, často formou odkopania a zaliatia pomocných základov, ako aj zosilnenie pomocou tehál a tvárnic, ktoré zabezpečia stabilitu a odolnosť budovy.
2. Hydroizolácia a sanácia vlhkosti:Vlhkosť je častým problémom starších budov, preto je kľúčové správne zabezpečiť hydroizoláciu základov, podláh a stien. Tým sa predchádza ďalším škodám a zabezpečí sa zdravé vnútorné prostredie.
3. Obnova fasády a zateplenie:Modernizácia fasády je ďalším kľúčovým krokom, ktorý zlepší nielen estetiku, ale aj energetickú efektívnosť stavby. Použitie kvalitných izolačných materiálov môže výrazne znížiť náklady na vykurovanie. V prípade dvojdomu v Bratislave sa autori rozhodli pre monochromatické farebné riešenie s bledou omietkou a tmavými výplňami otvorov, čo prispieva k lepšej čitateľnosti tektoniky fasády a zachovaniu pôvodného architektonického výrazu.
4. Výmena podláh a strechy:Rekonštrukcia starého domu často zahŕňa aj výmenu podláh, ktoré môžu byť nerovné alebo poškodené. Strecha je jednou z najdôležitejších častí domu a jej výmena môže byť nevyhnutná pri starších objektoch. Poškodenie strechy často spôsobuje ďalšie problémy vo vnútri domu - vlhkosť, zatekanie, plesne. Moderné plechové strešné krytiny sú ľahké, odolné a esteticky príťažlivé, pričom ich kvalitná rekonštrukcia prináša vyššiu energetickú efektivitu a predĺženie životnosti celého objektu.
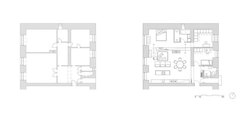
5. Modernizácia inštalácií a dispozičné úpravy:Staré domy si často vyžadujú kompletnú výmenu elektrických a vodovodných rozvodov. Dispozičné úpravy, ako napríklad odstránenie alebo posun priečok, umožňujú vytvoriť moderné a funkčné priestory. V prípade rekonštruovaného dvojdomu v Bratislave došlo k odstráneniu spojovacej chodby a schodiska, čím vzniklo ďalšie parkovacie miesto a priestor pre novú obývačku a jedáleň. Taktiež došlo k vybúraniu priečky v ďalšom byte, čo umožnilo spojiť obývačku s jedálňou.
6. Finálne úpravy a interiérové riešenia:Poslednou fázou rekonštrukcie sú finálne úpravy, ako je maľovanie stien, inštalácia osvetlenia a výmena okien a dverí. V interiéri rekonštruovaného dvojdomu zvolili architekti tradičnú kombináciu bielych stien a stropov s drevenými podlahami. Zaujímavým prvkom sú neomietnuté tehlové steny, ktoré odhaľujú modifikácie pôvodných konštrukcií a priznávajú aj nové oceľové prievlaky.

Financovanie a úskalia rekonštrukcie
Rekonštrukcia starého domu môže byť finančne náročná, no správnym plánovaním a výberom kvalitných materiálov je možné optimalizovať rozpočet. Náklady sa odvíjajú od stavu nehnuteľnosti, rozsahu prác a použitých materiálov. Odhaduje sa, že kompletná rekonštrukcia starého domu môže stáť od 40 000 € do 150 000 €.
Odhadované náklady na rekonštrukciu:
- Fasádne omietky: 10 € - 30 € za m²
- Zateplenie domu: 40 € - 100 € za m²
- Nová strecha (vrátane izolácie): 8 000 € - 25 000 €
Investori by mali počítať s nepredvídanými nákladmi, ktoré sa často vyskytnú pri starších domoch. Rezerva minimálne 20% nad plánovaný rozpočet je preto rozumná. Dobrou správou je možnosť čerpania dotácií a zvýhodnených úverov, najmä pri ekologických riešeniach.
Svojpomocná rekonštrukcia vs. profesionálna firma:Svojpomocná rekonštrukcia sa môže na prvý pohľad zdať lacnejšia, no často si aj tak vyžaduje spoluprácu s odborníkmi na určité práce, ktoré domáci majstri nemôžu alebo nevedia vykonať sami. Koordinácia rôznych majstrov a dohľad nad nimi môže byť časovo aj psychicky náročný. Využitie služieb stavebnej firmy zabezpečí profesionálne prevedenie prác a dodržanie termínov.
Nový život pre starý dom: Prípadová štúdia
Príkladom úspešnej rekonštrukcie je prestavba polovice rodinného dvojdomu v Bratislave, kde pôvodne jedna bytová jednotka so zlými dispozíciami jednotlivých podlaží bola zmenená na tri samostatné byty určené na prenájom. Toto riešenie demonštruje, ako je možné starú nehnuteľnosť premeniť na moderný priestor s lepším využitím a vyššou hodnotou.

Ďalším príkladom je rekonštrukcia domu v Bristole, kde rodina investovala 300-tisíc libier do transformácie starého domu zo 60. rokov na moderné a praktické bývanie. Aj keď v Spojenom kráľovstve sú nové stavby daňovo zvýhodnené oproti rekonštrukciám, rodina sa rozhodla pre obnovu, čím zachovala pôvodný charakter domu a zároveň ho prispôsobila svojim potrebám. Projekt architektonického ateliéru CaSA úspešne prepojil súčasný dizajn s trvalo udržateľnou výstavbou, pričom boli použité materiály zlepšujúce tepelné vlastnosti domu a bola vytvorená nová dispozícia s presvetleným obytným priestorom.
Komfortné vetranie pre zdravé bývanie
Vysvetlenie vetrania s rekuperáciou tepla
Dôležitosť častej a správnej výmeny vzduchu v miestnostiach je dnes nesporná. Systémy komfortného vetrania s rekuperáciou tepla, ako napríklad systémy Zehnder, zabezpečujú nepretržité zásobovanie priestorov čerstvým čistým vzduchom pri zatvorených oknách, čím sa znižuje obsah CO2 a podporuje sa pohoda, dobrý spánok, schopnosť sústrediť sa a výkonnosť. Tieto systémy sú vybavené jemnými filtrami zachytávajúcimi prach a peľové častice, čím prispievajú k zlepšeniu kvality vnútorného prostredia. Vetracie jednotky Zehnder ComfoAir Q s entalpickým výmenníkom tepla dokážu odovzdať čerstvému vzduchu nielen teplo, ale až 65 % vlhkosti, čím zabraňujú vysúšaniu vzduchu a zamŕzaniu výmenníka v zimnom období. Hygienicky zdravotne neškodné rozvody vzduchu, ako napríklad vetracia rúrka ComfoTube s patentovaným hladkým vnútorným povrchom Clinside, výrazne obmedzujú usadzovanie prachu a umožňujú jednoduché čistenie.
Rekonštrukcia domu nie je len oprava, ale príležitosť zmeniť svoj domov tak, aby zodpovedal vášmu štýlu, potrebám a energetickým nárokom súčasnosti. S rozumom a správnym prístupom sa môže prerábka starého domu stať jedným z najlepších rozhodnutí vo vašom živote - finančne aj emočne.
tags: #dvojpodlazny #rodinny #dom #rekonstrukcia