Predstavujeme vám nový developerský projekt v Nitre, ktorý spája kvalitné bývanie, moderný dizajn a výbornú dostupnosť. Nové Mlynárce ponúknu až 226 bytov v rôznych dispozíciách - od praktických jednoizbových bytov až po priestranné štvorizbové riešenia pre rodiny. S radosťou oznamujeme, že spúšťame oficiálny predaj bytov v našom novom developerskom projekte Nové Mlynárce v Nitre. Tento projekt predstavuje významný krok vpred v ponuke moderného a kvalitného bývania v Nitre, pričom kladie dôraz na všetky aspekty, ktoré tvoria domov snov.

Včasné Plánovanie a Postup Výstavby
Začiatok výstavby projektu Nové Mlynárce je naplánovaný na 1. kvartál 2026. V tomto období sa rozbehnú stavebné práce na prvej etape, ktorá prinesie moderné bývanie v atraktívnej lokalite s výbornou dostupnosťou. Už teraz prebiehajú prípravné procesy, aby výstavba mohla prebiehať plynulo a podľa harmonogramu. Tieto prípravné fázy zahŕňajú detailné projektovanie, zabezpečenie stavebných povolení, výber dodávateľov a technické prieskumy pozemku. Dôkladná príprava je kľúčová pre minimalizáciu rizík a zabezpečenie hladkého priebehu celej výstavby.
Dokončenie hrubej stavby projektu Nové Mlynárce je plánované na jeseň 2027. V tomto období budú ukončené všetky hlavné stavebné práce, vrátane nosných konštrukcií, stropov, strechy a obvodových múrov. Hrubá stavba predstavuje významný míľnik celého projektu, ktorý nás posunie bližšie k finálnej podobe moderného a komfortného bývania. Tento stupeň výstavby znamená, že základná štruktúra budov je kompletne dokončená a pripravená na ďalšie interiérové a exteriérové práce.
Dokončenie výstavby projektu Nové Mlynárce je plánované začiatkom roka 2028. Po ukončení všetkých stavebných prác bude nasledovať finalizácia interiérov, vonkajších úprav a príprava celého areálu na odovzdanie budúcim obyvateľom. Cieľom je vytvoriť moderné a funkčné bývanie s dôrazom na kvalitu, komfort a príjemné mestské prostredie. Táto záverečná fáza zahŕňa inštaláciu technológií, dokončovacie práce v bytoch, úpravu spoločných priestorov, terénne úpravy okolia a získanie kolaudačného rozhodnutia.
Ako urobiť základy domu a základovú dosku (aj svojpomocne)–pozrite si VIDEO
Široká Ponuka Bytov pre Každého
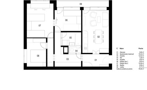
Projekt Nové Mlynárce ponúka až 226 bytov, ktoré sú navrhnuté tak, aby vyhovovali rôznym životným štýlom a potrebám. Dispozície siahajú od praktických jednoizbových bytov, ideálnych pre jednotlivcov alebo mladé páry, až po priestranné štvorizbové riešenia, ktoré poskytnú dostatok komfortu pre rastúce rodiny. Každý bytový dom bude navrhnutý s dôrazom na funkčnosť, dostatok prirodzeného svetla a efektívne využitie priestoru.
Jednoizbové byty sú navrhnuté s dôrazom na maximálnu efektivitu a útulnosť. Tieto priestory sú ideálne pre študentov, mladých profesionálov alebo ako investičná príležitosť. Napriek menšej výmere sú starostlivo premyslené tak, aby poskytovali všetko potrebné pre pohodlné bývanie, vrátane samostatnej kuchyne alebo kuchynského kútika, obývacej časti a kúpeľne.
Dvojizbové a troizbové byty tvoria najväčšiu časť ponuky a sú zamerané na páry, menšie rodiny alebo jednotlivcov, ktorí uprednostňujú väčší priestor a dodatočné miestnosti, ako je napríklad pracovňa alebo detská izba. Tieto dispozície často zahŕňajú aj balkón alebo loggiu, ktorá rozširuje obytný priestor a ponúka možnosť relaxácie na čerstvom vzduchu. Funkčné rozloženie miestností zabezpečuje maximálne súkromie a pohodlie pre všetkých obyvateľov.
Štvorizbové byty sú určené pre väčšie rodiny alebo pre tých, ktorí potrebujú extra priestor na prácu z domu, koníčky alebo pre hostí. Tieto priestranné byty ponúkajú dostatok miesta na vytvorenie oddelených zón pre každý účel, čím zabezpečujú komfort a súkromie pre všetkých členov domácnosti. Súčasťou týchto bytov môžu byť aj rozsiahlejšie balkóny alebo terasy, ktoré poskytujú ideálne miesto na rodinné stretnutia alebo večerné posedenia.

Lokalita a Dostupnosť: Kľúčové Prednosti
Projekt Nové Mlynárce sa nachádza v atraktívnej lokalite Nitry, ktorá ponúka výbornú dostupnosť do centra mesta aj na dôležité dopravné uzly. Táto strategická poloha znamená, že obyvatelia budú mať na dosah všetky potrebné služby a občiansku vybavenosť, ako sú obchody, školy, škôlky, zdravotnícke zariadenia a rekreačné zóny. Zároveň je zabezpečené dobré napojenie na diaľničnú sieť, čo uľahčuje cestovanie do iných miest.
V blízkosti projektu sa nachádzajú zastávky mestskej hromadnej dopravy, ktoré umožňujú rýchle a pohodlné spojenie s rôznymi časťami Nitry. Pre obyvateľov, ktorí dochádzajú do práce autom, je dôležitá aj blízkosť hlavných ciest a diaľničných privádzačov. Týmto spôsobom projekt Nové Mlynárce spĺňa požiadavky moderného mestského života, kde je dôležité efektívne trávenie času a minimalizácia dopravných obmedzení.
Lokalita je tiež obklopená zeleňou a ponúka možnosti na oddych a rekreáciu. V blízkom okolí sa nachádzajú parky, cyklotrasy a náučné chodníky, ktoré sú ideálne pre aktívny životný štýl. Možnosť prechádzok v prírode, športovania alebo jednoducho relaxácie v pokojnom prostredí dopĺňa celkový komfort bývania v projekte Nové Mlynárce.
Moderný Dizajn a Kvalita Bývania
Nové Mlynárce sa vyznačujú moderným architektonickým dizajnom, ktorý kombinuje estetiku s funkčnosťou. Budovy budú navrhnuté s dôrazom na energetickú účinnosť a použitie kvalitných stavebných materiálov, čo zaručí dlhú životnosť a nízke prevádzkové náklady. Interiéry bytov budú navrhnuté s ohľadom na súčasné trendy a potreby obyvateľov, pričom bude kladený dôraz na príjemnú atmosféru a komfort.
Štandardné vybavenie bytov bude zahŕňať kvalitné podlahy, moderné interiérové dvere, plastové okná s izolačným trojsklom a predprípravu na internetové a televízne pripojenie. Kúpeľne a toalety budú vybavené modernou sanitou a obkladmi. V závislosti od konkrétnej dispozície a etapy výstavby môžu byty disponovať aj balkónom, loggiou alebo priestrannou terasou, ktorá poskytne dodatočný priestor na relaxáciu a trávenie voľného času.
V rámci projektu sa počíta aj s budovaním občianskej vybavenosti a verejných priestranstiev. Parkovacie miesta budú riešené podzemnými garážami a vonkajšími parkovacími plochami. Súčasťou projektu budú aj detské ihriská, oddychové zóny a zeleň, ktoré prispejú k vytvoreniu príjemného a komunitného prostredia pre všetkých obyvateľov.

Investícia do Budúcnosti
Projekt Nové Mlynárce predstavuje nielen kvalitné bývanie, ale aj rozumnú investíciu do budúcnosti. Nitra ako dynamicky sa rozvíjajúce mesto s rastúcim počtom pracovných príležitostí a kvalitným vzdelávacím systémom ponúka atraktívne prostredie pre život a prácu. Dopyt po moderných bytoch v tejto lokalite je stabilný, čo zaručuje potenciálne zhodnotenie investície.
Kúpa bytu v projekte Nové Mlynárce je preto výbornou voľbou pre tých, ktorí hľadajú nielen nový domov, ale aj stabilnú a perspektívnu investíciu. Možnosť výberu z rôznych dispozícií a etáp výstavby umožňuje záujemcom nájsť presne to, čo hľadajú, a prispôsobiť svoju investíciu svojim individuálnym potrebám a možnostiam.
Vzhľadom na plánovaný začiatok výstavby v roku 2026 a postupné dokončovanie projektu do roku 2028, majú potenciálni záujemcovia dostatok času na prípravu a zabezpečenie financovania. Spustením oficiálneho predaja bytov sa otvára možnosť získať atraktívny byt v tomto perspektívnom projekte za výhodných podmienok.
Projekt Nové Mlynárce je navrhnutý tak, aby spĺňal najvyššie štandardy kvality, komfortu a udržateľnosti. S dôrazom na moderný dizajn, výbornú dostupnosť a strategickú polohu v Nitre predstavuje ideálnu voľbu pre jednotlivcov, páry aj rodiny, ktoré hľadajú svoje vysnívané bývanie.