Polyfunkčný objekt Koloseo, situovaný v dynamicky sa rozvíjajúcej bratislavskej mestskej časti Nové Mesto, predstavuje moderný architektonický prínos do mestského prostredia. Jeho realizácia zahŕňa nielen výstavbu obytných priestorov, ale aj komplexné riešenia pre bývanie a služby, vrátane detailného zateplenia obvodového plášťa a ponuky rôznych typov bytov a parkovacích miest. Táto analýza sa zameriava na jednotlivé aspekty projektu, od technických riešení zateplenia až po praktické aspekty bývania a investičného potenciálu.
Technické riešenia zateplenia obvodového plášťa
Zateplenie obvodového plášťa polyfunkčného domu Koloseo bolo realizované s dôrazom na energetickú efektívnosť a dlhodobú udržateľnosť. Použitý bol kontaktný zatepľovací systém, ktorý je navrhnutý na báze expandovaného polystyrénu (EPS) a minerálnej vlny. Hrúbky izolácie z expandovaného polystyrénu sa pohybujú od 2 cm, 10 cm až po 15 cm, zatiaľ čo izolácia na báze minerálnej vlny dosahuje hrúbky 2 cm, 5 cm, 10 cm a 15 cm. Tieto rôzne hrúbky sú aplikované v závislosti od konkrétnych potrieb a umiestnenia na fasáde, čím sa optimalizuje tepelný odpor.
Ako povrchová úprava bola zvolená silikátová ryhovaná omietka s hrúbkou 2,0 mm. Tento typ omietky poskytuje nielen esteticky príjemný vzhľad, ale zároveň zabezpečuje ochranu zatepľovacieho systému pred poveternostnými vplyvmi. Celé zateplenie bolo realizované v súlade s certifikovaným systémom WeberTherm Terranova s komponentom WeberTherm Exclusive. Tento certifikovaný systém zaručuje kvalitu použitých materiálov a správnosť technologického postupu, čo je kľúčové pre dosiahnutie deklarovaných tepelnoizolačných vlastností a dlhej životnosti fasády.

Prehľad bytových jednotiek a ich charakteristiky
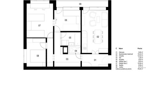
Polyfunkčný objekt Koloseo ponúka širokú škálu bytových jednotiek, od jednoizbových bytov až po päťizbové a mezonetové apartmány, čo umožňuje uspokojiť rôznorodé potreby budúcich obyvateľov. Byty sa líšia rozlohou, ktorá začína na 34 m² a siaha až do 160 m². Tento rozsah umožňuje výber menších, funkčných bytov ideálnych pre jednotlivcov alebo páry, ako aj priestranných rodinných domov.
Špecifické ponuky zahŕňajú napríklad predaj jedného 1-izbového bytu s rozlohou 37,25 m², ktorý disponuje balkónom s výmerou 4,59 m² a prislúchajúcim parkovacím státím o veľkosti 18 m². Tento byt sa nachádza na 8. poschodí 13-poschodového komplexu. Podzemné parkovacie státie je možné dokúpiť za cenu 20 000 EUR. V inom prípade je prezentovaný 2-izbový byt s úžitkovou plochou 60 m² a zasklenou loggiou s výmerou 8 m², situovaný na 9. poschodí. Tento byt je kompletne zariadený a ponúka praktickú dispozíciu s chodbou so vstavanou skriňou, prepojenou obývacou izbou s kuchynským kútom a vstupom na loggiu.

Ďalšia ponuka sa týka 3-izbového bytu s rozlohou 80 m², ktorý je kompletne zariadený a nachádza sa na 10. z 12 poschodí, s orientáciou do tichého vnútrobloku a výhľadom na jazero Kuchajda. K bytu prislúcha aj veľká loggia a parkovacie miesto v garáži. Existujú aj ponuky 1-izbových bytov s rozlohou okolo 42 m² s lodžiou 4,6 m², kde parkovacie státie je možné prikúpiť za 20 000 EUR, pričom k cene bytu bude pripočítaná provízia realitnej kancelárie zahŕňajúca kompletný poradenský a právny servis.
Bytový komplex je tvorený štyrmi samostatnými budovami s výškou od 10 do 14 poschodí. Výstavba prebiehala v troch fázach. Prvá fáza bola vypredaná, druhá fáza s 156 bytmi bola ukončená v lete 2006 a tretia fáza so 114 bytmi v jeseni 2007. V rámci projektu boli realizované aj polyfunkčné objekty s jedno- až trojizbovými bytmi s rozlohou od 28 do 88 m². Ceny za m² sa pohybovali od 27 500 korún bez DPH (32 725 Sk s DPH).
Existujú aj informácie o iných projektoch, ktoré by mohli slúžiť ako referenčné body pre pochopenie trhu, napríklad projekt výstavby siedmich radových rodinných domov a 18 bytov v Dunajskej Lužnej, dvojpodlažné rodinné domy a trojizbové byty v Dunajskej Lužnej, bytový dom s 87 jedno- až štvorizbovými bytmi, projekt deviatich mestských víl so 62 bytmi a deviatimi terasovými bytmi s ukončením výstavby v roku 2006 až 2007, tri polyfunkčné objekty s 204 bytmi (jedno- až päťizbové a mezonetové) s cenou od 1,75 milióna Sk, polyfunkčné objekty s jedno- až štvorizbovými bytmi v cene 2,75 až 6,7 milióna korún, byty vzniknuté rekonštrukciou a nadstavbou existujúcej budovy s predpokladaným začiatkom stavby na jar 2007, bytový komplex Dynamik s jedno- až trojizbovými bytmi, radové rodinné domy a byty v dvoj- a trojbytových vilách s cenou od 2,54 milióna Sk s DPH, pozemky s rodinnými domami s rozlohou od 116 do 230 m² s cenou od 2,75 milióna Sk s DPH, 140 bytov rôznej veľkosti s cenou za m² od 45-tisíc korún s DPH, a komplex so 67 bytmi od jednoizbových po štvorizbové s cenou od 1,44 milióna Sk.
Lokalita a občianska vybavenosť
Lokalita, v ktorej sa Koloseo nachádza, je jednou z jeho najväčších predností. Tomášikova ulica v mestskej časti Nové Mesto je známa svojou výbornou občianskou vybavenosťou a vynikajúcou dostupnosťou. V bezprostrednej blízkosti sa nachádza jazero Kuchajda, ktoré poskytuje možnosti pre športové aktivity, relaxáciu a posedenie v okolitých reštauráciách. Táto lokalita je ideálna pre tých, ktorí uprednostňujú aktívny životný štýl a zároveň ocenia blízkosť prírody v mestskom prostredí.

Bratislava - Jazero Kuchajda. Prechadzka a relax na jazere Kuchajda.
V rámci komplexu Koloseo a v jeho bezprostrednej blízkosti sa nachádza široká škála služieb a obchodov. Spomenúť možno OC Vivo, ktoré ponúka množstvo predajní, reštaurácií, kaviarní a služieb. V blízkosti je aj FreshMarket, populárna farmárska tržnica, ktorá poskytuje čerstvé potraviny a lokálne produkty. V pešej dostupnosti sú tiež potraviny ako Tesco Express a Yeme, ako aj ďalšie obchody a služby ako kaderníctvo, barber či nechtové štúdio. Táto koncentrácia služieb zabezpečuje komfortné bývanie a minimalizuje potrebu cestovať za základnými potrebami.
Dostupnosť do centra mesta je ďalším významným faktorom. Vďaka dobrej infraštruktúre a existujúcej MHD je možné ľahko a rýchlo sa dostať do iných častí Bratislavy. Blízkosť klientskeho centra a vlakovej stanice Nové Mesto ďalej zvyšuje atraktivitu lokality z hľadiska dopravy a mobility. Táto kombinácia mestského komfortu a rekreačných možností robí z Kolosea a jeho okolia atraktívnu adresu pre rôzne cieľové skupiny obyvateľov.
Parkovanie a jeho význam v projekte
Parkovanie je v súčasných mestských projektoch kľúčovou otázkou a Koloseo túto problematiku rieši prostredníctvom ponuky vnútorných parkovacích miest. K dispozícii sú podzemné parkovacie státia, ktoré sú štandardnej veľkosti a nachádzajú sa pod bytovými domami. Vjazd do garáže je komfortný a je zabezpečený diaľkovým ovládaním garážovej brány.

Ponuka parkovacích miest je určená nielen pre rezidentov samotného projektu Koloseo, ale aj pre záujemcov z okolia, čo svedčí o dopyte po bezpečnom a pohodlnom parkovaní v tejto lokalite. Ceny za parkovacie státie sa pohybujú od 20 000 EUR, pričom v niektorých ponukách je cena parkovacieho miesta (veľkého garážového státia) zahrnutá v celkovej cene nájmu. Možnosť prenájmu parkovacieho státia je taktiež dostupná, čo poskytuje flexibilitu pre obyvateľov a návštevníkov.
Spolupráca bánk s developermi v oblasti financovania nehnuteľností sa najčastejšie obmedzuje na Bratislavu a jej okolie, čo naznačuje investičnú aktivitu v regióne. Okrem Bratislavy sa nové nehnuteľnosti financované bankovými domami stavajú predovšetkým v krajských mestách. Nie všetky banky však transparentne uvádzajú, ktoré nehnuteľnosti sú v ich ponuke a pri ktorých je možné využiť zľavy.
Investičný potenciál a prenájom
Projekt Koloseo je prezentovaný aj ako atraktívna investičná príležitosť, najmä vďaka svojej lokalite a kompletnej občianskej vybavenosti. Viaceré ponuky zdôrazňujú, že byty sú kompletne zariadené a pripravené na okamžité bývanie alebo prenájom. Tento aspekt znižuje počiatočné náklady a časovú náročnosť pre investorov, ktorí nemusia riešiť nákup nábytku či zariaďovanie.

Nízke náklady spojené s prevádzkou bytu a jeho atraktivita pre potenciálnych nájomníkov prispievajú k rýchlemu návratu investície. Mesačný nájom za 2-izbový byt s loggiou je uvádzaný vo výške 900 € vrátane energií, pričom pri podpise zmluvy sa hradí jeden mesačný nájom ako depozit a provízia realitnej kancelárie. Pre 3-izbový byt s parkovacím miestom je cena nájmu 799 €/mesiac plus energie. Tieto údaje naznačujú stabilný dopyt po prenájmoch v danej lokalite.
Fakt, že si kupujúci "kupujú už fungujúci produkt", kde je všetko pripravené a generuje zisk, je silným argumentom pre investorov, ktorí hľadajú okamžitý výnos. Lokalita v srdci Nového Mesta, ktorá je jednou z najdynamickejších a najžiadanejších v Bratislave, len podčiarkuje investičný potenciál projektu. Okrem toho, ponuka hypotekárneho servisu bezplatne, vrátane sprostredkovania úverov a dojednania výhodných podmienok, uľahčuje proces financovania pre kupujúcich.
Kolaudácia a legislatívne aspekty výstavby
Pojem "kolaudácia" v kontexte bytového domu Koloseo odkazuje na proces úradného schválenia stavby, ktorý potvrdzuje jej súlad s platnou legislatívou a stavebnými normami. V prípade Kolosea je spomenuté, že jeden z bytových domov bol skolaudovaný v roku 2007. Tento rok je tiež uvádzaný ako predpokladaný termín ukončenia výstavby pre iné projekty, čo naznačuje, že Koloseo bolo súčasťou širšej stavebnej aktivity v danej dobe.
Výstavba bytových domov a polyfunkčných objektov podlieha prísnym stavebným predpisom a vyžaduje si získanie stavebného povolenia a následne kolaudačného rozhodnutia. Kolaudačné rozhodnutie je záväzné a umožňuje užívanie stavby na určený účel. V kontexte predaja alebo prenájmu nehnuteľností je skolaudovaný objekt základným predpokladom pre legálne nadobudnutie vlastníckeho práva alebo práva užívania.
Informácie o cenách za m² v rôznych projektoch, ktoré sa pohybujú od 27 500 korún bez DPH (32 725 Sk s DPH) až po 45-tisíc korún s DPH, ako aj ceny bytov od takmer 1,4 milióna korún až po viac ako 10 miliónov korún, odrážajú trhové podmienky a štandardy výstavby v období pred a okolo rokov 2006-2007. Tieto údaje poskytujú kontext pre pochopenie ekonomických aspektov projektu Koloseo.
Realitné kancelárie, ktoré prezentujú byty v Kolosee, často zdôrazňujú, že texty a fotografie sú ich autorským dielom a majetkom. Taktiež uvádzajú, že všetky prezentované údaje majú informatívny charakter a nezakladajú nárok na uzatvorenie zmluvy, pričom spoločnosť nezodpovedá za ich úplnosť a presnosť. Tieto formulácie sú štandardné v realitnom biznise a slúžia na ochranu pred zodpovednosťou za prípadné nepresnosti.
tags: #bytovy #dom #koloseo #kolaudacia