Majiteľka býva s jedenásťročnou dcérou v staršom dome v byte 2 + 1 s balkónom s plochou 63 m2 a pôvodným umakartovým jadrom. Byt 2 + 1 mamičke s jedenásťročnou dcérou svojou dispozíciou nevyhovuje, rekonštrukciu výrazne komplikuje aj objem financií, ktoré môže na premenu venovať. "Potrebovala by som pomôcť s rekonštrukciou bytového jadra, kuchyne a predelením izby na detskú a spálňu. Musím tiež riešiť nové kúpeľňové jadro z dôvodu zlého rozvodu elektriny. Nešťastní bývajú aj architekti, ktorí sa snažia o nápravu tohto riešenia a navrhnutie zmysluplnej dispozície. Prácu svojich predchodcov naozaj nechvália," uvádza majiteľka. Čitateľka by privítala ekonomicky nenáročné riešenie. Lenže rekonštrukcia bytového jadra predstavuje sama o sebe finančnú investíciu blížiace sa 100 tisícom českých korún (v prepočte vyše 3900 eur). Provizórne riešenie vhodné nie je, zvuková izolácia by bola mizivá.
Výzvy panelákových bytov a starých umakartových jadier
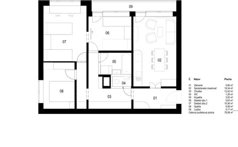
V súčasnom stave je kuchynka v priechodnej chodbičke. Na fotografii je vidieť použitie takzvanej protilinky, ktorá poskytuje cenné úložné priestory a plochy. Vzhľadom k obmedzenému priestoru stojí v kuchyni chladnička pred dverami do kúpeľne. Dispozičné riešenie počíta s posunutím WC za inštalačnú šachtu, prípadne je v ňom možné umiestniť aj miniatúrne umývadielko. Práčka (60 × 60) je v stene vo výklenku, prístup je z chodbičky, ktorá prepája chodbu a kuchyňu. Jedálenský stôl premiestnili do obývacej izby, kde je vedľa TV steny aj pohovka a posteľ (140x200 cm). Detská izba vznikla zmenšením izby s balkónom o šatňu, vytvorenú z nábytku, napriek tomu má izba dostatočnú plochu 10,5 m2.

Rekonštrukcia bytového jadra vyzerá podobne. V kúpeľni je úsporná vaňa (157 × 70 cm), tým sa trochu zväčšuje pôdorysná plocha kúpeľne. Chladnička je v pozícii pôvodnej potravinovej skrine. Na linku opäť nadväzuje raňajkový pult vo výške pracovnej dosky. Aj v treťom variante použil architekt rovnaký princíp rekonštrukcie bytového jadra. Jedálenský stôl zostal v kuchyni, v obývacej izbe tak ostalo viac priestoru pre sedaciu súpravu a kreslo.
Všetci sa chceme cítiť doma dobre a spokojne. Preto sa snažíme naše domovy čo najviac zvelebovať, či už bývame v rodinnom dome alebo v panelákovom byte. Práve rekonštrukcia starších bytov v paneláku zažíva svoju renesanciu. Zbavujeme sa nevzhľadného umakartového jadra a starú kúpeľňu meníme na modernú oázu relaxácie. Za koľko a ako výhodne sa dá taká rekonštrukcia panelákovej kúpeľne zaobstarať? Aby sme vám rozhodovanie o rekonštrukcii bytového jadra a kúpeľne v paneláku čo najviac uľahčili, navrhli sme pre vás, spolu s tímom našich dizajnérov a stavebných odborníkov, rôzne riešenia panelákových kúpeľní. A to vrátane rozpočtu za materiál aj stavebné práce. Pozrite sa.
Investícia do rekonštrukcie kúpeľne sa oplatí
Vrhnúť sa do rekonštrukcie kúpeľne v paneláku určite nie je len tak. Prebudovanie bytového jadra so sebou nesie istú časovú aj finančnú náročnosť. Výsledok ale stojí za to a my vám s tým pomôžeme. Vďaka našim dlhoročným skúsenostiam z kúpeľňového sveta a tisíckam realizovaných kúpeľní dobre vieme, čo všetko rekonštrukcia kúpeľne obnáša a ako na ňu. Investovať do prestavby kúpeľne sa oplatí predovšetkým preto, že si vytvoríte moderný a komfortný priestor pre váš relax. Navyše počas rekonštrukcie odstránite aj všetky problémy, ktoré vás pri užívaní starej kúpeľne môžu už dlhšiu dobu trápiť. Aj keď sa môže zdať, že sa jedná o obyčajné maličkosti, sami viete, ako vám nedostatočná izolácia, zašlé škáry alebo nedovierajúce sa dvierka pri kúpeľňovej skrinke dokážu užívanie kúpeľne znepríjemniť. Vďaka rekonštrukcii funkčnosť kúpeľne zase môže šliapať na 100%. Navyše tým zvyšujete hodnotu vášho bytu.
Náš tip: Premýšľate o rekonštrukcii a stále váhate? Chcete prerobiť kúpeľňu lacno, no pritom prakticky a s príjemnou estetikou? Renovácia kúpeľne si vyžaduje nemalé finančné náklady, no pri premyslenom postupe a výbere vhodných materiálov si môžete tento každodenne používaný priestor skrášliť aj za podstatne nižšiu investíciu. Vek kúpeľne je najviac vidno na obklade a dlažbe. Keďže sa kúpeľne prerábajú s perspektívou životnosti aspoň na 10 rokov, niektoré vzory, farby a motívy jednoducho po čase vyjdú z módy a kúpeľňa pôsobí zastaraným dojmom. Estetike neprospievajú ani poškodené a zanedbané škáry. Výmena obkladu a dlažieb je finančne azda najnáročnejšia. Cenovo menej náročným riešením je aplikácia nového náteru na staré obklady. Okrem výberu kvalitného náteru netreba podceniť dôkladnú predprípravu. Obklady musia byť vyčistené a odmastené. Ak je v niektorých škárach silikón, musí sa vybrať a nahradiť novou škárovacou hmotou. Najviac pozornosti si zaslúžia miesta, ktoré sú často v kontakte s vodou (okolie sprchového kútu, vane a umývadla).
Správne osvetlenie má pri renovácii kúpeľne veľký význam. Základom je fungujúca kombinácia stropného a nástenného osvetlenia, ktoré je umiestnené v blízkosti zrkadla a umývadla. Obľúbenými sú napríklad LED panely a pásy s jednoduchou inštaláciou a pokročilými možnosťami nastavenia. Vybrať svetlo so studenou, neutrálnou alebo teplou farbou? Niektoré kúpeľne farebnosťou nezapru obdobie, v ktorom vznikli. A keďže v interiérovom dizajne prežijú iba nadčasové farby, vyberte sa pri renovácii cestou univerzálnych farieb, ktoré sa neopozerajú a navyše sa výborne kombinujú s doplnkami. Kraľovať im bude biela farba, ktorá dokáže presvetliť aj menšiu kúpeľňu bez okna a opticky zväčšiť priestor. Použite bielu napríklad pri renovácii kúpeľňového nábytku, na doplnky, sprchový záves či na osušky.
V snahe ušetriť pri renovácii kúpeľne je dobré mať stanovené priority. Preč by malo ísť všetko nefunkčné a tiež by mali zmiznúť aj náznaky zanedbaného stavu a častého používania. Kritickým okom sa pozrite sa na stav umývadla, sprchového kútu a vane. Po niekoľkých rokoch používania ich už budú „zdobiť“ škrabance. Dostupné sú však rôzne opravné a retušovacie sady na akrylát, smalt, liatinu či mramor. Pred opravou nedostatkov sa zoznámte s daným materiálom a opravnou zmesou. Súčasná ponuka podláh a podlahových krytín vhodných do kúpeľne je prekvapivo rozmanitá. Už to nie je iba o keramickej dlažbe. Pri výbere si však vyhliadnite alternatívy, ktoré zvládnu prostredie kúpeľne - predovšetkým vyššiu vlhkosť a pravidelný kontakt s vodou. Práve to spĺňajú niektoré druhy PVC podláh a linoleum. K dispozícii sú v rozmanitých vzoroch a farebnosti, vďaka čomu ich jednoducho zladíte so zvyškom kúpeľne. Hoci je položenie týchto materiálov všeobecne jednoduchšie, kritickým môže byť nedostatočná rovnosť existujúcej podlahy, kedy dochádza k pretláčaniu obrysov starej dlažby. Čiastočným riešením je vyplnenie a zarovnanie škár a hlbokých nerovností v dlažbe. Renovovanej kúpeľni pristane organizovanosť, preto sa oplatí zadovážiť si priestranné kúpeľňové koše, košíky či praktické viacúrovňové vozíky na kolieskach. Ide zároveň aj o praktické riešenie, ako si uľahčiť pravidelné upratovanie. Svoj cit pre estetiku môžete vyjadriť cez nevyhnutné doplnky - dávkovače na mydlo, držiaky na kefky či farebne zladené kúpeľňové koberčeky. Svetlú kúpeľňu s oknom krásne oživia živé rastliny.

Rekonštrukcia kúpeľne je v rámci kompletnej rekonštrukcie bytu jedným z najväčších nákladov. Najdrahšia je vodoinštalácia a sanitárne vybavenie a najmä, ak sa premiestňuje kanalizácia alebo iné potrubie. Cena rekonštrukcie kúpeľne závisí predovšetkým od celkového rozsahu prác zahrnutých rekonštrukciou. V cene rekonštrukcie kúpeľne je spravidla zahrnutá rekonštrukcia, resp. výmena vodovodných inštalácií so všetkými prípojkami a odtokmi, elektrických inštalácií, sanitárnych zariadení a keramické obklady. Ak je to potrebné, do rekonštrukcie kúpeľne možno zahrnúť aj inštaláciu potrubia pre podlahové vykurovanie, čo zvýši náklady na rekonštrukciu. Na cenu rekonštrukcie kúpeľne, rovnako ako pri všetkých ostatných prácach, má veľký vplyv kvalita materiálov, ktoré sa používajú na rekonštrukciu, či už ide o keramické dlaždice, rúry na podlahové vykurovanie alebo vírivú vaňu. Na cenu rekonštrukcie kúpeľne má vplyv aj rozloha kúpeľne. Samozrejme, v dome môže byť kúpeľňa väčšia a usporiadaná podľa vašich požiadaviek. V byte je rozloha kúpeľne určená a je potrebné ju upraviť.
Funkčnosť a estetika: Kľúčové aspekty pri rekonštrukcii
V prvom rade treba dbať na funkčnosť, nie vždy čo sa nám páči je vhodné pre každú kúpeľňu, no skúsený odborník bude vedieť poradiť a navrhnúť najvhodnejšie riešenie. Nesmieme zabúdať na správne dispozičné rozloženie, či už v dome alebo v byte. Obzvlášť v bytových kúpeľniach je dobré správne využiť každý centimeter. Nato už existujú rôzne vizualizácie a 3D návrhy, aby sme si vedeli predstaviť konečný výsledok ešte pred začiatkom rekonštrukcie. Ďalšou dôležitou súčasťou je estetická stránka, ktorá sa dá docieliť samotnou rekonštrukciou alebo vhodnými doplnkami. Každá kúpeľňa je svojim spôsobom jedinečná a náročnosť rekonštrukcie záleží najmä na požiadavkách zákazníka. Prerábanie kúpeľne v paneláku je z časti obmedzené, kvôli bytovým stúpačkám, z tohto hľadiska sa nie vždy dá vyhovieť predstavám zákazníkov, avšak vždy treba nájsť ideálne riešenie. V prvom rade záleží na veľkosti kúpeľne a životného štýlu zákazníkov. Ak nie sme obmedzovaní priestorom, ideálne je mať aj vaňu aj sprchový kút. V poslednej dobe sa čoraz častejšie stretávame so sprchovými kútmi. Medzi najväčšie výhody sprchového kúta by som určite zaradil úsporu priestoru, ktorého je v panelákových bytoch nedostatok. Sprchový kút má aj ďalšie výhody ako napríklad bezbariérový vstup vhodný pre seniorov. Momentálne je na trhu veľký výber hlbokých sprchových vaničiek, ktoré ocenia najmä mamičky s malými deťmi prípadne majitelia psov. Ak patríte k milovníkom relaxu a oddychu po náročnom dni, tak v tomto prípade by som volil vaňu. Pomocou zásteny sa vane dajú využiť aj na sprchovanie.
Cenu rekonštrukcie kúpeľne ovplyvňujú viaceré faktory. Značnú časť rekonštrukcie tvorí práve cena práce, keďže šikovných a spoľahlivých majstrov je čoraz menej. Ďalej by som zaradil cenu obkladu a dlažby a v neposlednom rade dôležitú časť položiek tvorí cena sanity. Pri rekonštrukcii je potrebné počítať aj s neočakávanými nákladmi, ktoré sa môžu ukázať až počas rekonštrukcie. Cena práce sa odvíja aj od počiatočného stavu kúpeľne. Cena rekonštrukcie kúpeľne sa pohybuje od 2 000 EUR až do 6 000 EUR. Kompletná rekonštrukcia kúpeľne, ktorá zahrňuje výmenu obkladov, inštalácií a sanitárneho vybavenia, stojí okolo 600 EUR/m2. Ak máte záujem o rekonštrukciu kúpeľne, pošlite dopyt, a tak dostanete viacero ponúk od našich overených realizátorov rekonštrukcií kúpeľní.
Jednou z najviac prehliadaných, pokiaľ ide o renováciu, je praktickosť. Potrebám je potrebné prispôsobiť aj využitie priestoru. Dôležitý je dobrý plán. V praktickom sprievodcovi nájdete odpovede na mnohé otázky. Pri rozhodovaní zaváži aj celkový obraz. Zvážte svoj rozpočet. Koľko peňazí chcete minúť? Aký priestor potrebujete? Ako chcete miestnosť využívať? Čo ste preniesli na váš súčasný priestor? Čo ste nepreniesli do vašej novej kúpeľne? Začnite presným zmeraním miestnosti. Bez toho je ťažké naplánovať rozloženie nábytku a sanity. Miery miestnosti sú kľúčové.
8 cenovo dostupných nápadov pre malé kúpeľne, ktoré moji klienti milujú ❤️
Búranie bytového jadra: Áno, či nie?
Búrať jadro alebo nebúrať? Tesne pred renováciou je dobre premyslieť si, či chcete búrať jadro. To, či bude rekonštrukcia kúpeľne bez búrania, alebo s ním, sa odvíja od typu. Poznáme niekoľko typov bytových jadier:
- Murované: Stretnete sa s nimi v starších tehlových bytoch. Murári ich stavali ešte v prvej polovici 20. storočia. Jadro vyzerá jednoducho, no vie skomplikovať každú rekonštrukciu.
- Panelové: Jadro tvorí železobetón aj so stropom a podlahou.
- Umakartové: Stretnete sa s nimi v panelových bytoch, ktoré sa stavali v 60. - 80. rokoch minulého storočia. Ich telo je spravidla celé umakartové s laminátovým stropom. Zopár ich však disponovalo aj kovovým rámom. Umakartové jadrá majú aj viaceré podtypy.
Mnohí ľudia sa snažia vyhnúť búraniu jadra kvôli komplikovanosti a finančnej náročnosti. Ak si ale dáte jadro vybúrať, môžete zistiť, či nemáte problémy so zatekaním, plesňou, alebo zlou elektroinštaláciou. Prestavba bytového jadra je prašný, časovo aj finančne náročný proces. Človek bez skúseností ho nemusí zvládnuť. Kontaktujte odborníkov a dajte si urobiť niekoľko návrhov. Jadro nemusí byť len nepekným kúskom nachádzajúcim sa v kúpeľni.
Výber vane či sprchového kútu: Kompromis medzi relaxom a úsporou priestoru
Pri rozhodovaní o vani či sprchovom kúte záleží na vašich individuálnych potrebách a životnom štýle. Sprchový kút je univerzálny a šetrí miesto, čo je častokrát rozhodujúci faktor v menších panelákových bytoch. Využijú ho najmä ľudia, ktorí chcú len rýchlu sprchu. Na trhu je veľký výber hlbokých sprchových vaničiek, ktoré ocenia najmä mamičky s malými deťmi alebo majitelia psov, nakoľko môžu slúžiť aj ako malá vaňa. Bezbariérový vstup do sprchového kútu je vhodný aj pre seniorov.
Vaňa zaberá viac miesta, no poskytuje lepší oddych a relax po náročnom dni. Pomocou zásteny sa vane dajú využiť aj na sprchovanie. Rozhodujúci pri výbere vane je aj jej tvar. Okrem klasickej obdĺžnikovej vane sú dostupné aj rohové či vane v asymetrickom tvare. Rozmery vaní sa pohybujú od 105x70 cm, pričom najčastejšie sa stretávame s dĺžkou 150 cm a rozmermi 170x70 cm.
Sprchové kúty sa najčastejšie umiestňujú do rohu miestnosti, ale môžu byť aj v strede rovnej steny, kde nie je pre sprchu voľný kút. Moderným riešením je walk-in sprchový kút, ktorý je zabudovaný do niky, čiže je z troch strán tvorený murovanou stenou. Dvere sprchového kútu môžu byť otváracie, zasúvacie alebo skladacie. Pri výbere sprchového kútu treba zvážiť aj rozhodnutie o farbe a priehľadnosti skla.

Materiály a farby: Nadčasovosť a praktickosť
Pri rekonštrukcii kúpeľne je dôležité zvoliť materiály a farby, ktoré budú nielen esteticky príjemné, ale aj praktické a nadčasové. Biela farba je klasikou, ktorá dokáže presvetliť aj menšiu kúpeľňu bez okna a opticky zväčšiť priestor. Vhodná je pri renovácii kúpeľňového nábytku, doplnkov, sprchového závesu či osušiek. Univerzálne farby, ktoré sa neopozerajú a výborne kombinujú s doplnkami, by mali byť základom.
Okrem klasických obkladov a dlažieb sú dnes dostupné aj alternatívy, ktoré zvládnu prostredie kúpeľne - predovšetkým vyššiu vlhkosť a pravidelný kontakt s vodou. Medzi ne patria niektoré druhy PVC podláh a linolea, ktoré sú dostupné v rozmanitých vzoroch a farebnosti.
Pri výbere obkladov je dôležité myslieť na ich odolnosť voči vlhkosti a jednoduché čistenie. Keramické obklady sú pravdepodobne najbežnejšou voľbou do kúpeľne. Existujú však aj iné možnosti, ako napríklad obkladové panely z nehrdzavejúcej ocele, ktoré sa dajú použiť na celú stenu. Dôležité je zabezpečiť, aby si udržali vodotesnú vlastnosť.
Pre tých, ktorí preferujú prírodné materiály, je drevo skvelou voľbou, no je potrebné dbať na jeho povrchovú úpravu, ktorá ho ochráni pred vlhkosťou. Alternatívou sú kachličky s dreveným dekorom.
Pri rozhodovaní o farbách a ich usporiadaní by ste mali zvážiť aj farebnú schému 70-20-10, ktorá vám pomôže nastaviť tón vašej kúpeľne. Nezabúdajte na osvetlenie, ktoré je kľúčové pre vytvorenie príjemnej atmosféry. Kombinácia stropného a nástenného osvetlenia, doplnená o LED panely či pásy, vytvorí funkčný a estetický celok.
Elektroinštalácia a bezpečnosť v kúpeľni
Zlý rozvod elektriny v starých umakartových jadrách predstavuje častý problém a vyžaduje si dôkladné riešenie. Pri rekonštrukcii bytového jadra je nevyhnutné myslieť na novú elektroinštaláciu, ktorá spĺňa všetky bezpečnostné požiadavky. Práce s elektrinou by mali byť vždy zverené kvalifikovaným odborníkom, aby sa predišlo potenciálnym rizikám, ako je úraz elektrickým prúdom.
Dôležité je tiež dbať na správnu hydroizoláciu, ktorá je nevyhnutná v prostredí s vysokou vlhkosťou, akým je kúpeľňa. Nedostatočná hydroizolácia môže viesť k poškodeniu konštrukcií a vzniku plesní.
Po dokončení elektroinštalácie je potrebné, aby bola vykonaná kontrola a revízia kvalifikovaným revíznym technikom. Toto je dôležité aj v prípade, ak sa rozhodnete pre rekonštrukciu svojpomocne. Revízia potvrdí bezpečnosť inštalácie a je často vyžadovaná aj poisťovňou v prípade poistnej udalosti.
Rozpočet a realizácia: Od plánu k hotovej kúpeľni
Rekonštrukcia kúpeľne, najmä tej v panelákovom byte s umakartovým jadrom, si vyžaduje dôkladné plánovanie a realistický rozpočet. Cena rekonštrukcie sa môže značne líšiť v závislosti od rozsahu prác, kvality použitých materiálov a toho, či si na pomoc prizvete profesionálov.
Náklady môžu zahŕňať:
- Búranie a likvidácia odpadu
- Vodoinštalačný materiál a práce
- Elektroinštalácia a práce
- Sanitárne vybavenie (vaňa, sprchový kút, umývadlo, WC, batérie)
- Obklady a dlažby
- Stavebné práce (murovanie, omietky, nivelizácia podlahy)
- Potrebné povolenia a revízie
Priemerná cena kompletnej rekonštrukcie kúpeľne sa pohybuje od 2 000 do 7 000 eur, pričom cena za meter štvorcový môže byť okolo 600 eur. Je dôležité počítať aj s nečakanými nákladmi, ktoré sa môžu objaviť počas rekonštrukcie.
Možnosti financovania zahŕňajú vlastné úspory, pôžičky alebo hypotéky. Pri zvažovaní rozpočtu je dôležité nešetriť na kľúčových prvkoch, ako sú vodoinštalácia a elektroinštalácia, pretože ich nesprávna realizácia môže viesť k nákladným opravám v budúcnosti.
Rozhodnutie, či si rekonštrukciu zveríte profesionálom, alebo ju vykonáte svojpomocne, závisí od vašich skúseností, časových možností a rozpočtu. Profesionálna firma poskytuje komfort a záruku kvality, zatiaľ čo svojpomocná rekonštrukcia môže byť finančne výhodnejšia, no vyžaduje si viac úsilia a zručností.

V rámci príprav je dôležité si spísať podrobný plán, ktorý bude obsahovať časový harmonogram, rozpočet a predovšetkým zabezpečenie dočasného bývania, ak by ste sa museli počas rekonštrukcie z bytu vysťahovať. Tiež je dobré zvážiť, aké povolenia budete potrebovať, najmä ak budete zasahovať do nosných stien.
V konečnom dôsledku je rekonštrukcia kúpeľne investíciou do komfortu, funkčnosti a hodnoty vášho bývania. S dôkladným plánovaním a správnym výberom odborníkov môžete staré umakartové jadro premeniť na modernú a relaxačnú oázu.
tags: #byt #rekonstrukcia #z #izby #kupelna