
Predstavujeme vám výnimočnú nehnuteľnosť, ktorá spája modernú architektúru, nadštandardné materiály a prémiové dizajnové zariadenie. Tento moderný rodinný dom, ktorý vyrastá v tichej a novovybudovanej časti obce Topoľníky, len pár minút od Dunajskej Stredy, predstavuje ideálnu voľbu pre rodiny hľadajúce moderný dom, pokojné prostredie a zároveň dobrú dostupnosť do mesta. Dom bol skolaudovaný v roku 2024 a kompletne dokončený a zariadený koncom roka 2025. Nehnuteľnosť spája kvalitnú výstavbu, premyslenú architektúru a komfortné riešenia pre každodenné bývanie.
Architektonické a Dizajnové Riešenia
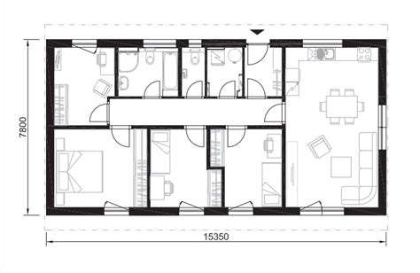
Dominantou tohto bungalovu je priestranná obývacia izba, ktorá je plynulo prepojená s jedálenskou časťou a dizajnovou kuchyňou. Veľké okná prinášajú do celého priestoru množstvo prirodzeného svetla a zároveň umožňujú komfortný prechod na vonkajšiu terasu a priamo do záhrady. Tento otvorený koncept vytvára vzdušný a moderný interiér, ideálny na relaxáciu aj spoločenské stretnutia.
Interiér domu je premyslený do posledného detailu. Obývaciu časť dopĺňa luxusná elektricky polohovateľná a rozťahovacia sedačka, ktorá zaručuje maximálne pohodlie. Nábytok je vyrobený na mieru s integrovaným dizajnovým podsvietením, ktoré dodáva priestoru elegantný a moderný nádych. Každý kus nábytku je navrhnutý s dôrazom na funkčnosť a estetiku, čím sa vytvára harmonický celok.
Kuchyňa je kompletne vyhotovená na mieru, s dôrazom na úložný priestor, kvalitné materiály a elegantný dizajn. Jej súčasťou sú moderné spotrebiče a dostatok pracovnej plochy, čo ocení každý, kto rád varí a trávi čas v kuchyni. Premyslené usporiadanie kuchynských skriniek a zásuviek zabezpečuje, že všetko potrebné je vždy po ruke a zároveň nenarušuje celkový estetický dojem.

Komfort a Súkromie v Nočnej Časti
Nočná časť domu pozostáva z troch samostatných spální, ktoré sú navrhnuté s ohľadom na maximálne pohodlie a súkromie. Všetky spálne sú dostatočne presvetlené, vybavené kvalitnými závesmi a sieťkami proti hmyzu, ktoré zabezpečujú nerušený spánok. Vstavané úložné priestory na mieru v každej spálni poskytujú dostatok miesta na uloženie oblečenia a osobných vecí, čím prispievajú k udržaniu poriadku v interiéri.
Hlavná spálňa pôsobí elegantne a nadčasovo. Jej súčasťou sú zavesené dizajnové lampy, veľká posteľ a priestranná vstavaná skriňa. Tento priestor je navrhnutý ako pokojná oáza, kde si môžete oddýchnuť a načerpať energiu. Dve ďalšie izby sú rovnako priestranné a svetlé, vhodné pre deti, hostí alebo ako domáca pracovňa. Možnosť prispôsobenia týchto priestorov podľa individuálnych potrieb robí z domu flexibilné riešenie pre rôzne životné situácie.
Luxusná Kúpeľňa a Praktická Technická Miestnosť
Kúpeľňa je vyhotovená v nadčasovom mramorovom štýle, ktorý evokuje pocit luxusu a elegancie. Je vybavená moderným sprchovým kútom typu walk-in, ktorý ponúka pohodlie a bezbariérový prístup, a tiež veľkou voľne stojacou vaňou, ideálnou na relaxačné kúpele. Súčasťou kúpeľne je aj samostatná toaleta a dvojumývadlo, ktoré zabezpečujú komfort pre viacerých členov domácnosti súčasne. Použitie kvalitného mramoru nielenže dodáva kúpeľni prémiový vzhľad, ale zároveň zaručuje jej dlhú životnosť a jednoduchú údržbu.
Aké sú výhody a nevýhody tepelných čerpadiel?
Praktickú stránku domu zabezpečuje samostatná technická miestnosť. Nachádza sa tu moderné tepelné čerpadlo, ktoré je ekologickým a úsporným zdrojom vykurovania a ohrevu vody. Okrem toho je v technickej miestnosti umiestnená práčka so sušičkou, čo je mimoriadne praktické riešenie pre efektívne využitie priestoru. V miestnosti sa nachádza aj ďalšie WC s umývadlom, čo zvyšuje komfort a funkčnosť domu, najmä pri väčšom počte osôb.
Exteriér a Pozemok
Celková úžitková plocha domu je 148 m², pričom zastavaná plocha predstavuje 184 m². Dom je situovaný na rovinatom slnečnom pozemku s výmerou 637 m², čo ponúka dostatok priestoru pre priestranné interiéry aj budúce úpravy exteriéru. Záhrada orientovaná na juh poskytuje dostatok prirodzeného svetla počas celého dňa a vytvára výborné podmienky pre realizáciu rôznych záhradných projektov - či už vo forme modernej terasy, bazéna, detského ihriska alebo okrasnej záhrady. Možnosti sú takmer neobmedzené a umožňujú budúcim majiteľom vytvoriť si vlastný súkromný raj.
Pred domom sa nachádza vydláždený vjazd spolu s parkovacím miestom pre dve autá. Toto riešenie výrazne uľahčuje každodenné parkovanie a zároveň dodáva vstupu do domu elegantný vzhľad. Dostatočný priestor na parkovanie je veľkou výhodou, najmä v novovybudovaných lokalitách.

Lokalita a Občianska Vybavenosť
Tento bungalov je situovaný v novej, bezpečnej rezidenčnej štvrti obce Topoľníky, ktorá sa vyznačuje skvelou občianskou vybavenosťou. Blízkosť Dunajskej Stredy zaručuje výbornú dostupnosť k mestským službám, obchodom, školám, zdravotníckym zariadeniam a rekreačným možnostiam. Pokojné prostredie novej štvrte v kombinácii s dobrou infraštruktúrou vytvára ideálne podmienky pre rodinné bývanie. Lokalita poskytuje rovnováhu medzi kľudným vidieckym životom a výhodami blízkosti mesta.
Investičná Príležitosť
Cena domu je 460 000 €. Predajcovia, realitná kancelária PLUS REALITY, vám ponúka tento moderný rodinný dom ako atraktívnu investičnú príležitosť. Dom bol skolaudovaný v roku 2024 a kompletne dokončený a zariadený koncom roka 2025, čo znamená, že ide o novostavbu s modernými technológiami a dizajnom. Jeho poloha v rozvíjajúcej sa štvrti, kvalitné materiály a nadštandardné vybavenie zaručujú vysokú hodnotu nehnuteľnosti. Text a fotografie sú autorským dielom realitnej kancelárie PLUS REALITY, spol. s r.o., čo potvrdzuje jedinečnosť a autentickosť prezentovanej ponuky.
Pre viac informácií alebo dohodnutie obhliadky nás kontaktujte na čísle 0911 999 823. Tento bungalov predstavuje nielen domov, ale aj životný štýl, ktorý spĺňa najvyššie nároky na bývanie.