Správna príprava stavebných otvorov pre interiérové dvere s obložkovými zárubňami je základným kameňom úspešnej montáže, ktorý vám môže ušetriť nielen čas a peniaze, ale aj predísť mnohým budúcim komplikáciám. Stavebný otvor je v podstate výrez v stene, do ktorého sa následne osádza zárubňa s dverným krídlom. Jeho rozmery nie sú náhodné a odvíjajú sa od konkrétneho typu dverí a zárubne, ktoré plánujete inštalovať. Nesprávne zameranie alebo realizácia stavebného otvoru môže viesť k problémom s montážou, funkčnosťou dverí, ich životnosťou a v neposlednom rade aj k estetickým nedostatkom.

Základné Pravidlá a Odporúčané Rozmery
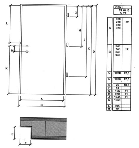
Pre väčšinu interiérových dverí s obložkovými zárubňami platí univerzálne pravidlo, ktoré vám pomôže vyhnúť sa mnohým komplikáciám. Pri určovaní šírky stavebného otvoru je potrebné k svetlej priechodzej šírke dverného krídla pripočítať približne 10 cm. Pre príklad, ak plánujete použiť dvere so šírkou 80 cm, stavebný otvor by mal mať šírku 90 cm. Podobne je to aj s výškou. K svetlej priechodzej výške zárubne sa pripočítava približne 5 cm. Ideálna výška od dokončenej podlahy je štandardne 202 cm. Tieto rozmery zohľadňujú potrebný priestor pre osadenie zárubne, ako aj pre montážnu penu, ktorá zabezpečí pevné a stabilné uchytenie zárubne v stene.
Je dôležité poznamenať, že rozmery dverí, na ktoré sa odkazujeme, v skutočnosti znamenajú svetlú priechodziu šírku a výšku zárubne, nie samotného dverného krídla. Pri plánovaní a realizácii stavebných otvorov je nevyhnutné dbať na presnosť. Maximálna prípustná odchýlka rozmerov otvorov by mala byť ±1,5 cm. V prípade, že sú odchýlky väčšie, je nutné konzultovať riešenie s odborníkmi, pretože to môže vyžadovať špecifické úpravy alebo výber atypických riešení.

Výnimky a Špecifické Prípady
Hoci vyššie uvedené pravidlo pokrýva drvivú väčšinu situácií, existujú aj výnimky a špecifické prípady, ktoré si vyžadujú osobitnú pozornosť.
- Reverzné dvere: Tieto dvere majú odlišnú konštrukciu, ktorá ovplyvňuje ich priechodný rozmer. Reverzné dvere majú menší svetlý prechod do rovnakého stavebného otvoru v porovnaní s klasickými falcovými alebo bezfalcovými dverami. Ak chcete pri reverzných dverách zachovať rovnaký svetlý priechod ako pri štandardných dverách, musíte počítať s tým, že stavebný otvor bude musieť byť väčší.
- Štandardy výrobcov a atypické rozmery: Niektorí výrobcovia ponúkajú dvere aj v iných normách, napríklad s posunom po 5 cm v šírke (napr. 75, 80, 85, 90 cm). Táto flexibilita môže byť výhodná v prípadoch, keď sa vyskytnú mierne nesprávne rozmery stavebných otvorov, pretože niekedy nie je nutné priplácať za atypické rozmery dverí. Vždy je však dobré vopred sa informovať o možnostiach konkrétneho výrobcu.
- Skryté zárubne: Pri inštalácii skrytých zárubní, ktoré vytvárajú minimalistický a moderný vzhľad, sa rozmery stavebného otvoru líšia. Napríklad pri skrytých ALU/drevených zárubniach (kolekcie DODIA City a DODIA Tiama) sa odporúča pripočítať 15 cm k šírke a 7,5 cm k výške dverného krídla (merané od dokončenej podlahy). Pri skrytých ALU MAT zárubniach (LUALDI Porte) sa tieto hodnoty ďalej líšia v závislosti od typu steny (murovaná alebo sadrokartónová). Pri murovanej stene sa pripočítava 6 cm k šírke a 3 cm k výške, zatiaľ čo pri sadrokartónovej stene je to 9 cm k šírke a 4,5 cm k výške. Pri týchto typoch zárubní sa finálna úprava stavebného otvoru často odporúča až po osadení kontrazárubne alebo skrytej zárubne.
- Hrúbka steny: Pri výbere zárubní je kľúčové presne zmerať hrúbku hotovej steny vrátane omietky alebo obkladu. Zárubne sa totiž vyrábajú v rôznych hrúbkach (napr. 75-95 mm, 100-120 mm, 125-145 mm, atď.). Nesprávne zvolená hrúbka zárubne vzhľadom na hrúbku steny môže viesť k problémom pri montáži alebo k neestetickým presahom či medzerám.
- Výška dverí: Je dôležité si uvedomiť, že existujú rozdiely v štandardných výškach dverí medzi rôznymi krajinami alebo výrobcami. Napríklad slovenský štandard sa môže líšiť od iných. Rozdiel môže byť približne 5-6 cm na výšku, preto je nutné ešte pred realizáciou stavebného otvoru určiť, odkiaľ budú dvere pochádzať, aby sa zabezpečila ich kompatibilita s otvorom.
Ako správne pripraviť stavebný otvor pre obložkové zárubne a dvere
Riešenie Problémov pri Nesprávnych Stavebných Otvoroch
Aj napriek snahe o presnosť sa občas stane, že stavebný otvor nie je úplne v súlade s požadovanými rozmermi. V takýchto prípadoch je dôležité poznať možné riešenia, aby sa predišlo ďalším komplikáciám.
- Príliš úzke otvory: Ak je stavebný otvor príliš úzky, napríklad len o 7-8 cm širší ako svetlý rozmer dverí, zárubňa sa doň nemusí zmestiť. V takomto prípade môže pomôcť drobné vysekanie do muriva v oblasti pántov. Toto vysekanie môže zúžiť montážny otvor o približne 15 mm, čím sa vytvorí potrebný priestor pre osadenie zárubne.
- Príliš široké otvory: Ak je otvor naopak príliš široký, montážna PUR pena nemusí dostatočne pevne držať zárubňu, alebo zárubňa nemusí prekryť celý stavebný otvor, čo vedie k vzniku medzier medzi zárubňou a murivom. Tieto medzery môžu byť esteticky rušivé a oslabovať celkovú stabilitu dverí. Riešenia pre príliš široké otvory zahŕňajú:
- Objednanie dverí v inej norme: Niektoré krajiny (napr. Poľsko, Nemecko) majú odlišné štandardy pre rozmery dverí, ktoré môžu byť kompatibilné s existujúcim otvorom.
- Použitie zárubní so širšími obložkami: Existujú typy obložkových zárubní, ktoré majú širšie obložky, schopné prekryť väčšie medzery medzi zárubňou a murivom.
- Výroba v atypických rozmeroch: V niektorých prípadoch je možné objednať zárubňu alebo dvere v atypických rozmeroch, ktoré presne zodpovedajú šírke stavebného otvoru.
- Doplnkové materiály a úpravy: V závislosti od veľkosti medzery je možné použiť dodatočné materiály na vyplnenie alebo vyrovnanie povrchu steny pred montážou zárubne.

Dôležitosť Presnosti a Odborného Dohľadu
Je dôležité si uvedomiť, že stavebný otvor pre dvere je prvok, ktorý sa realizuje raz a jeho správnosť ovplyvňuje funkčnosť a vzhľad dverí po celú dobu ich životnosti. Nespoliehajte sa slepo na stavbárov, že vedia, aké presné rozmery stavebných otvorov sú potrebné pre konkrétny typ dverí a zárubní. V praxi sa často stretávame s tým, že stavbári urobia otvory nesprávne, čo potom komplikuje montáž a vedie k dodatočným nákladom.
Pri meraní stavebných otvorov si vždy pripravte kvalitný meter, vodováhu a ceruzku. Ak ešte nemáte položenú finálnu podlahu, nezabudnite pripočítať jej predpokladanú hrúbku k celkovej výške otvoru. Rovné a kolmé steny bez vychýlení a "brucha" v murive sú rovnako dôležité ako presné rozmery. Pevné a stabilné murivo je nevyhnutné, najmä pri montáži ťažších dverí, ako sú bezpečnostné alebo vchodové dvere.
V prípade vchodových dverí je otázka správneho stavebného otvoru ešte dôležitejšia, pretože okrem estetiky a funkčnosti je potrebné riešiť aj bezpečnosť, izoláciu proti hluku a teplu, a celkovú stabilitu konštrukcie. Nesprávna montáž, ktorá často vyplýva z nesprávne pripraveného otvoru, môže spôsobiť, že aj tie najkvalitnejšie dvere stratia svoj význam a nebudú plniť svoju funkciu.
Ak si nie ste istí, ako má vyzerať ideálny stavebný otvor, alebo ak plánujete inštaláciu špeciálnejších typov dverí (napr. extra vysoké, skryté, alebo dvere s atypickými rozmermi), vždy je najlepšie obrátiť sa na odborníkov. Konzultácia s predajcom dverí alebo s montážnou firmou vám môže ušetriť mnoho problémov a zabezpečiť, že vaše nové dvere budú dokonale zapadnúť do vášho interiéru a slúžiť vám bezchybne po mnoho rokov.

Príprava Stavebného Otvoru ako Investícia do Budúcnosti
Správne pripravený stavebný otvor nie je len technickou požiadavkou, ale investíciou do dlhodobej spokojnosti s vašimi dverami. Je to jeden z tých detailov, ktorý sa oplatí nepodceniť. Či už staviate nový dom alebo rekonštruujete starší, venujte príprave stavebných otvorov náležitú pozornosť. Ak si nie ste istí, ako na to, alebo potrebujete poradiť s výberom dverí a ich montážou, neváhajte osloviť odborníkov. Radi vám pomôžu s výberom vhodných dverí, s presným zameraním a prípravou stavebného otvoru, a následne sa postarajú aj o profesionálnu montáž. Týmto spôsobom si zabezpečíte, že celý proces bude prebiehať hladko a výsledok bude zodpovedať vašim očakávaniam.