Ak sa chystáte zaobstarať si vlastnú nehnuteľnosť a váhate, v akej veľkosti by mala byť, pomôžeme vám pri rozhodovaní. Vieme, na čo by ste mali myslieť! Pokiaľ však hľadáte byt na určité obdobie, ste teda sám/sama alebo pár hľadajúci riešenie bytovej otázky len na pár rokov, je oveľa väčší predpoklad, že vám bude vyhovovať viac ponúkaných dispozičných riešení. Niekedy ťažká otázka. Počet m2 totiž nemusí vždy zodpovedať potrebnému počtu miestností či celkovému priestoru. Väčšina cien je však uvádzaná na metre štvorcové a to nás môže spliesť.
Dvojizbové byty patria už roky medzi najvyhľadávanejšie typy bývania - bývajú prvým domovom mladých párov, single ľuďom ponúknu dostatok priestoru a postačia aj pre čerstvé rodiny. Aj keď dvojizbové byty môžu na prvý pohľad pôsobiť kompaktne, pri správnom zariadení dokážu ponúknuť prekvapivo veľa priestoru a komfortu. Dvojizbový byt dokáže poskytnúť dostatok priestoru na každodenný život. Obývačka spojená s kuchyňou a samostatná spálňa tvoria ideálny základ: máte súkromie a zároveň priestor na všetko potrebné.

Počiatočné Etapy Spoločného Bývania: Garsónky a Jednoizbové Riešenia
Garsónky a jednoizbové byty v centre mesta sú veľmi atraktívne aj pre budúce prenájmy a ľahko dokážu splniť nároky mladých ľudí. Avšak, ich cena s dvojizbovými bytmi býva niekedy veľmi porovnateľná, preto treba zvážiť, či sa vám oplatí investovať o niečo viac a získať pár metrov navyše alebo vám postačí menší priestor za menšiu cenu.
Byty s rozlohou približne 25 až 40 m² patria medzi najvyhľadávanejšie nehnuteľnosti v sektore prenájmu zariadených bytov. Tieto byty sú ideálne pre dvoch mladých ľudí, ktorí hľadajú štartovacie bývanie. Ich dispozícia často núti k maximálnej efektivite využitia priestoru.
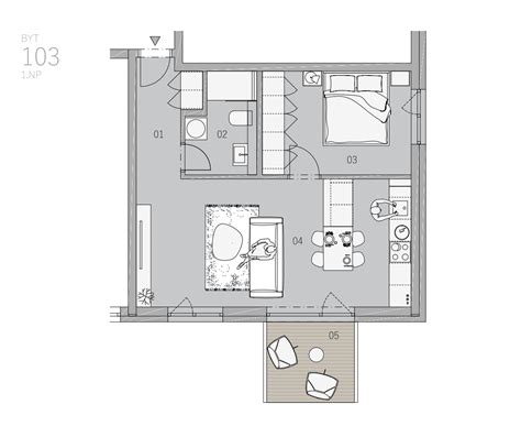
Analýza Konkrétnych Príkladov Menších Bytov
Pri porovnávaní menších bytov v petržalských Slnečniciach vidíme jasné dispozičné rozdiely. Vybraný jednoizbový byt s výmerou 33 m² je svojou veľkosťou aj dispozíciou vhodný pre mladý pár skôr ako prechodné bývanie. Spojenie obývačky, kuchyne a spálne má charakter garsónky, takže optické predelenie jednotlivých zón možno dosiahnuť nábytkovými prvkami. Medzi posteľou a sedačkou môže tak vzniknúť zaujímavá nábytková deliaca stena.
Bratislavský Einpark ponúka vybraný jednoizbový byt s rozlohou 31 m². Dispozične má takisto charakter garsónky, keďže spojenie kuchyne a obývačky si vyžaduje transformáciu do odpočinkovej formy. Práve vzhľadom k takému variantnému využitiu by sme odporučili oddeliť vstupnú časť od obytnej, napríklad posuvnými dverami s mliečnym sklom kvôli prieniku svetla. Úložného priestoru je tu dostatok, no odporučili by sme pri realizácii kuchyne zvoliť iné usporiadanie spotrebičov, keďže by bolo potrebné skrátiť kuchynskú linku kvôli pohodlnému priechodu popri nej v čase rozloženia sedačky na posteľ.
Štartovací byt dvoch mladých ľudí v bratislavskej novostavbe je miesto, kde je prakticky využitý každý centimeter, miesto, kde sa síce robili kompromisy s ohľadom na rozpočet, no dizajnu to na kráse neubralo ani štipku. Vo finále je to miesto, kde sa žije perfektne.

Dvojizbové Byty: Komfort a Súkromie pre Dvoch
Dvojizbové byty sú obľúbené najmä u slobodných ľudí a párov, ktorí oceňujú rozumné usporiadanie izieb. Dvojizbový byt s rozlohou 52 m² (príklad zo Slnečníc) už ponúka o niečo viac priestoru a súkromná časť je navyše od spoločenskej oddelená. V rámci optimálnejšieho využitia priestoru by sme navrhovali posunúť práve deliacu priečku medzi spálňou a obývačkou v prospech väčšej obývacej časti. V spálni by bol stále dostatok priestoru pre prídavnú komodu. Takisto by sme do tejto priečky navrhovali zabudovať dverné puzdro pre posuvný systém, čím by sa spoločenský priestor oddelil od vstupnej haly.
Pri zariaďovaní bytu menšej výmery sa ráta každý centimeter. Priestor navyše si v dvojizbovom byte vytvoríte aj pomocou optického rozdelenia priestoru. Ak pracujete z domu, určite oceníte napríklad možnosť vytvoriť si pracovný kút, ktorý nebude rušiť oddychovú časť.
Dvojizbák, ktorý vie ako na to: Menšia kuchyňa, ale spálňa so šatníkom. Tento malý byt predstavuje zaujímavú kombináciu moderného štýlu s prvkami tradičnejšieho. Dokázala miestnosti navrhnúť tak, aby poskytovali pohodlie a zároveň efektívne využívali dostupný priestor.
Optimalizácia Priestoru v Dvojizbových Dispozíciách
Dvojizbový byt s rozlohou 54 m² (príklad z Einparku) má kuchyňu členenú podobným princípom, no vďaka L-kovému tvaru miestnosti umožňuje umiestnenie samostatnej jedálenskej časti, ktorá je spolu s kuchyňou pocitovo oddelená od obývačky, no zároveň si celá miestnosť zachováva vzdušnosť a otvorenosť. Spálňa disponuje dostatkom úložného priestoru pre osobné veci, ktoré zostanú v súkromí oddelené od návštevy pohybujúcej sa po zvyšku bytu.
Viac svetla navodí väčší pocit priestoru, čo je v dvojizbovom byte veľmi dôležité. Ak máte možnosť, vyberte si preto zariadenie v svetlých farbách. Priestor sa snažte nezahltiť zbytočným nábytkom, aby pôsobil vzdušnejšie. Pomôcť pri tom môžu neutrálne farby, svetlé podlahy a jednoduchý nábytok. Dvojizbový byt najlepšie funguje vtedy, keď jednotlivé zóny spolu ladia. Dvojizbákom veľmi prospieva prirodzené svetlo. Presne takéto byty sú súčasťou akcie Edícia Plaza Comfort v piatej etape Čerešní. Ide o väčšie dvojizbové byty s oknami do dvoch svetových strán, ktoré poskytujú výborné svetelné podmienky pre každú izbu.
Pracovný kútik v obývačke nemusí zabrať veľo miesta. Často postačí jedna doska menších rozmerov a taburetka. V jednom z analyzovaných príkladov sa druhý pracovný kútik perfektne zapasoval ako súčasť vstavanej skrine v spálni. Ak rozmýšľate, kam s pracovným stolíkom v spálni, toto je úplne dokonalé riešenie. V prípade, že už nebude treba stolík pracovný, raz-dva z neho bude stolík toaletný.

Rozhodovanie o Veľkosti: Krátkodobé vs. Dlhodobé Plány
Ak očakávate prírastok alebo ho plánujete v blízkych rokoch a zvažujete v takom prípade kúpu dvojizbového bytu prakticky na celý život, tu už odporúčame zvážiť niečo väčšie. Hoci dvojizbové byty postačia pre pár, príchod dieťaťa radikálne mení nároky na priestor.
Špecifický problém môže pri zariaďovaní dvojizbového bytu riešiť rodina s malým dieťaťom. Spálňu rodičov možno na prvé roky upraviť tak, aby sa do nej zmestila aj detská postieľka. Mnoho rodičov volí postieľky, ktoré možno spojiť priamo s manželskou posteľou. Obývačka sa pre rodinu s dieťaťom stáva multifunkčným centrom domácnosti. Už spomínané úložné riešenia nadobúdajú pri viacčlennej rodine úplne nový význam. Úložné priestory schovajú hračky, doplnky ku kočíku aj detské oblečenie, aby pôsobil byt stále upratane.
Presun k Väčším Dispozíciám: Trojizbové Riešenia
Pri hľadaní bývania pre pár, ktorý plánuje rodinu, sa kľúčovými stávajú trojizbové byty, ktoré ponúkajú potrebnú flexibilitu. Bytový komplex v Dúbravke ponúka trojizbový byt s výmerou 74 m², ktorý je plnohodnotným riešením bývania pre rodiny s jedným i dvoma deťmi (v prípade použitia poschodovej postele). Atypické a členité riešenie spoločnej časti celý priestor oživuje a vďaka preskleniu na terasu bude i dostatočne svetlý.
Kolísky v Záhorskej Bystrici ponúkajú taktiež niekoľko variant bytov. Vybrali sme trojizbový byt s rozlohou 73 m². Tento variant má samostatne pocitovo oddelenú vstupnú časť, ktorá ponúka aj dostatok úložného priestoru.
Princípy Navrhovania a Minimálne Rozmery: Keď je Každý Centimeter Dôležitý
Trendom výstavby sú veľmi striedme, až minimálne rozmery izieb. Ekonomické prepočty stavebníkov či developerov jednoducho „nepustia“. Je to optimálne riešenie? Ak staviate či rekonštruujete dom a neviete si predstaviť, aké bývanie vám prinesú minimálne rozmery izieb, povieme vám to. Každý dom i byt sa skladá z miestností, bez ktorých nemôže plniť svoju funkciu. Obytná dispozícia má, samozrejme, svoje pravidlá. Bývanie môže disponovať aj ďalšími úžitkovými priestormi - komorou, špajzou, technickou miestnosťou, príručným skladom atď. Čím je byt menší, tým viac funkcií musí vojsť do menšieho počtu izieb a úspornejšieho priestoru.
Snaha šetriť na výmere siaha čoraz častejšie až k takým dispozičným riešeniam, ktoré bývanie oberajú o zásadné priestory. Zádverie, vstupná chodba či malá hala nie sú náročné na rozlohu, no majú zásadný vplyv na funkčnosť bývania. Vyhnite sa projektu rodinného domu aj kúpe bytu, ktorý vás po otvorení vstupných dvier vedie priamo do obývačky, jedálne či kuchyne.
Vplyv Tvaru a Nábytku na Využiteľnosť
Optimálne plochy obytných miestností sa odvíjajú od rozmerov nábytku, ktorým treba každú z nich zariadiť. Existujú dokonca štandardy, ktoré musí nábytok rozmerovo spĺňať, aby sa dal komfortne používať. Vychádzajú z parametrov ľudského tela, no nesmie sa zabúdať ani na to, že všade popri nábytku musí zostať priestor na pohyb.
Najlepšie sa zariaďujú miestnosti so štvorcovým pôdorysom alebo s pôdorysom s pomerom strán podobným štvorcu. Najjednoduchšie sa v nich prepájajú všetky potrebné funkcie s požiadavkou na priechodnosť a priestrannosť. V novostavbách neraz figurujú aj trojuholníkové miestnosti. Prezentujú sa ako lákavý „atyp“. V skutočnosti vznikli skôr tak, že projektant nedokázal získať v stiesnených pomeroch bytu či domu ďalšiu izbu nijako inak. V strehu treba byť aj pri podkrovných izbách alebo mezonetových bytoch. Nie vždy sú navrhnuté a postavené s premyslenou dispozíciou a dobrými väzbami medzi miestnosťami.

Kvantifikácia Priechodnosti a Pohybu
Priemerná výška človeka u nás je 173 cm. Základná priechodná šírka pre jedného človeka je 60 cm, ak prechádza okolo nízkeho nábytku. Ak človek potrebuje prejsť okolo skrine, ktorá nemá posuvné, ale otvárajúce sa dvere, mal by mať pred ňou k dispozícii 90 cm. Ak má byť na chodbe šatníková skriňa, treba pripočítať hĺbku 60, ideálne 65 cm. Ani 60 cm hĺbka nie je určená z brucha. Myslite na to, či vedľa seba prejdú dvaja oprotiidúci, či je dostatočná šírka medzi knižnicou a sedačkou, či sa dá prejsť bez ošúchania steny poza vysunutú stoličku pri jedálenskom stole, ak na nej aj niekto sedí.
Minimálne vs. Norma: Norma určuje najmenšie prípustné rozmery jednotlivých miestností. Mnohí veľkí stavebníci sa ich držia kvôli maximálnej finančnej efektivite výstavby. Stavebná norma určuje ako minimálnu plochu obytnej miestnosti v byte 8 m², čo je rozmer 4 × 2 m. Ak má bývanie jedinú obytnú miestnosť, podľa predpisov by jej malo stačiť aj 12 m². Predstava, že žijete na takejto ploche a má sa na ňu vmestiť spanie, príprava jedla, stolovanie, rovnako práca a koníčky, skladovanie odevov aj potravín, je dosť limitujúca. A to ešte nehovoríme o tom, že sem-tam chcete prijať aj návštevu. Obyvateľ takéhoto bytu bude asi väčšinu činností robiť v posteli, pretože tá bude zaberať najviac miesta.
Štandardy pre Jednotlivé Typy Miestností pre Dvoch
Spálňa: Veľkosť spálne pre dvoch ľudí má byť najmenej 12 m² s minimálnou šírkou 260 cm. Pri posteli s rozmermi 160 × 220 cm, čo je menšie dvojlôžko, nebude stačiť 40 cm na prechod popri stene. Dať posteľ na dĺžku izby alebo z jednej strany prisunúť k stene? Obe riešenia sú nešťastné. Čelo postele nie je komfortné postaviť ani pod okno - bude sa komplikovane otvárať a krídlo bude nad posteľou prekážať. Do spálne patrí skriňa na oblečenie dvoch dospelých ľudí, pričom šatník dospelého človeka potrebuje šírku 180 cm. Možno tam chcete mať zásuvkovú komodu, toaletný stolík so zrkadlom, prípadne kresielko či taburetku.
Obývacia Izba: Na samostatnú obývaciu izbu má stačiť 16 m². Obývacie izby v rodinných domoch môžu mať 30, ale určite i viac štvorcových metrov. Prečo? Zvyčajne sa zariaďujú trojsedačkou, dvojsedačkou a dvoma kreslami. Štýlové sú monobloky do pôdorysného tvaru U alebo L.
Kuchyňa: V panelákovej ére sa budovali tzv. laboratórne kuchyne - dlhé a úzke. Mali šírku 180 až 200 cm a dĺžku do 3 m. Dnes je bežný termín pracovná kuchyňa a najmenšia plocha pre ňu je vypočítaná na 8 m². Kuchynská linka môže byť usporiadaná jednostranne, do tvaru písmena L alebo U, s ostrovčekom, ktorý môže slúžiť ako jedálenský stôl. Pri takejto širokej plejáde funkcií sa dá považovať za optimálnu veľkosť aj 30 m² pre obytnú kuchyňu spojenú s jedálňou, čo môže byť reálne len pri veľkometrážnych dispozíciách bytov.
Kúpeľňa a WC: Optimálna kúpeľňa má veľkosť 6 m², vhodný je rozmer 240 × 270 cm. Rozhodujúce je, či dispozícia ráta len s jednou kúpeľňou a toaletou priamo v nej. Väčšie bývanie jednoznačne potrebuje aj separátnu toaletu s malým umývadlom. Samostatnej toalete s malým umývadlom stačí plocha 1,5 až 1,8 m².

Flexibilita a Individualita v Modernom Bývaní
V súčasnosti, keď je na trhu neúrekom krásnych možností, úplne chápem, že sa človek v tom celom trošičku stratí. Dôležité je nájsť dispozičné riešenie, ktoré je funkčné.
Bytový komplex v Dúbravke ponúka niekoľko neštandardných riešení interiéru, a to vďaka múrom lomeným nie v štandardnom pravom uhle. Takéto typy interiérov sú ideálne pre ľudí s minimalistickým cítením, ktorí majú radi vzdušné riešenia priestoru. Dvojizbový byt s rozlohou 59 m² ponúka štedrý úložný priestor vo vstupnej časti aj spálni. WC i kúpeľňa sú priestranné a oddelené, čím možno uchovať kúpeľňu ako súkromný priestor, do ktorého návšteva nevstupuje. Celý spoločenský priestor kuchyne, jedálne a obývačky má so vsadenou loggiou a šikmou stenou veľmi moderný charakter, no na úkor veľkosti kuchynskej časti.
Individualita nehnuteľnosti je čoraz dôležitejšia, a preto môže byť o vašu nehnuteľnosť mimoriadny záujem. Aj byty a domy s veľmi individuálnymi vlastnosťami alebo úplne atypickými požiadavkami si môžu nájsť vhodnú medzeru na trhu v sektore zariadených bytov. Prejav bezstarostnej dôvery, odvahy a zvedavosti, ktoré oživujú nášho tvorivého ducha v súčasnosti pomáha prijať zmenenú krajinu, ktorá nám prináša nové možnosti a vízie.
V jednom prípade moderného bytu sa využili drevené lamely, ktoré priestor prepájajú. Sú upevnené aj na stene v obývačke ako dizajnový akcent, ale aj prakticky vymedzujú priestor kuchyne a obývačky. Lamely sú perfektnou záležitosťou, ktorá priestor zjednotí a dodá mu istú hravosť. Opticky oddeľujú kuchyňu od obývačky. Dokonale vymedzia priestor, pôsobia ľahko a trendy.
Štandardy Prenájmu a Dôležité Atribúty Pre Páry
Pri výbere bytu na prenájom pre pár sú dôležité aj iné faktory ako len samotná rozloha. Dvojizbové byty sú obľúbené najmä u slobodných ľudí a párov, ktorí oceňujú rozumné usporiadanie izieb. Atraktivitu zvyšuje samostatná pracovňa alebo dobre integrovaný pracovný kútik. Vonkajšie priestory, ako je balkón, strešná terasa alebo záhrada, majú pozitívny vplyv na prenajímateľnosť. Pračka alebo práčka so sušičkou v byte je nevyhnutnosťou.
V súčasnosti, keď je práca z domu bežná, zariadenie "pracovne" môže podporiť prenajímateľnosť viac ako v minulosti. Ak sa rozhodujete medzi viacerými typmi bytov a nie ste si istí, ktorý by bol pre vás praktickejší, oslovte nás! Naše empirické hodnoty sú usmerneniami, nie záväznými podmienkami.
Pri rozhodovaní o vhodnej veľkosti bytu pre dvoch ľudí je kľúčové zvážiť, či ide o prechodné riešenie, alebo o dlhodobý domov, ktorý musí pojať aj prípadné zmeny v rodinnej situácii. Kompromisy v rozmeroch sú nevyhnutné, ale mali by byť podložené znalosťou optimálnych priestorových nárokov na základné životné funkcie.