Hľadáte priestranné bývanie vo Vranove nad Topľou, ktoré by ste si mohli prispôsobiť podľa svojich predstáv? Zvážte možnosť kúpy 5-izbového bytu, ktorý ponúka nielen dostatok miesta pre celú rodinu, ale aj potenciál na vytvorenie domova snov. Tento článok vás prevedie špecifikami takýchto nehnuteľností vo Vranove nad Topľou, od ich dispozície a lokalít až po aktuálnu situáciu na trhu s nehnuteľnosťami.

Charakteristika 5-izbových bytov vo Vranove nad Topľou
Päťizbový byt vo Vranove nad Topľou predstavuje nadštandardné bývanie s úžitkovou plochou, ktorá často presahuje 100 m². Tieto byty sú ideálnou voľbou pre rozsiahlejšie rodiny, ktoré potrebujú dostatok súkromných priestorov pre každého člena, alebo pre tých, ktorí hľadajú flexibilné riešenie s možnosťou využitia ďalších izieb ako pracovne, hosťovskej izby či priestoru pre hobby.
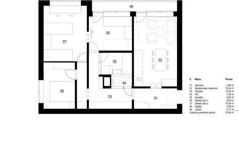
Dispozícia 5-izbových bytov sa zvyčajne skladá z obývacej izby, štyroch ďalších izieb, ktoré môžu slúžiť ako spálne alebo detské izby, samostatnej kuchyne, kúpeľne a samostatného WC. Niektoré z nich môžu disponovať aj balkónom alebo loggiou, ktoré poskytujú príjemný exteriérový priestor na relaxáciu. V bytových domoch s piatimi izbami je bežné aj príslušenstvo v podobe pivnice, ktorá slúži na uskladnenie sezónnych vecí alebo iných predmetov.

V ponukách sa objavujú byty v rôznych stavoch. Niektoré sú po čiastočnej rekonštrukcii, čo znamená, že základné prvky sú v dobrom stave, ale nové vlastníctvo si môže želať modernizáciu podľa vlastného vkusu. Iné byty prešli kompletnou a vkusnou rekonštrukciou, ktorá spája komfort bývania s praktickosťou každodenného života. Tieto byty sú často pripravené na okamžité nasťahovanie, s novými rozvodmi elektriny, vody a odpadu, novými podlahami, plastovými oknami, interiérovými dverami, modernou kuchynskou linkou a zrekonštruovanou kúpeľňou.
Existujú aj ponuky, kde je byt v pôvodnom stave, čo otvára dvere pre rozsiahlejšie úpravy a rekonštrukciu podľa individuálnych predstáv a možností nového majiteľa. Tieto byty môžu byť atraktívnou voľbou pre investorov alebo pre tých, ktorí chcú vytvoriť jedinečný priestor od základov.
Lokalita a občianska vybavenosť
Pri výbere 5-izbového bytu vo Vranove nad Topľou zohráva kľúčovú úlohu lokalita. V ponukách sa často stretávame s bytmi situovanými v centre mesta alebo na vyhľadávaných sídliskách, ako je Sídlisko 1. mája, Sídlisko Okulka, alebo v pokojnejších častiach ako Lúčna či Čemerné. Každá z týchto lokalít ponúka svoje špecifické výhody.
Byty v centre mesta poskytujú výhodu bezprostrednej blízkosti k kompletnej občianskej vybavenosti. V okruhu bytového domu nájdete obchody, reštaurácie, kaviarne, úrady, školy, materské školy a zdravotnícke zariadenia. Táto dostupnosť je ideálna pre rodiny s deťmi a pre aktívnych jednotlivcov, ktorí ocenia pohodlie a úsporu času pri vybavovaní každodenných záležitostí.

Sídliská, ako napríklad Sídlisko 1. mája alebo Okulka, sú často charakteristické dostatkom zelene, parkovými plochami a dobrou dostupnosťou k službám. Bytové domy na týchto sídliskách bývajú panelové, ale často prešli čiastočnou alebo kompletnou rekonštrukciou, vrátane zateplenia bytového domu, čo prispieva k zníženiu nákladov na energie. Niektoré bytové domy sú vybavené aj zrekonštruovanými výťahmi, čo zvyšuje komfort bývania, najmä pre staršie osoby alebo rodiny s malými deťmi.
Pokojnejšie časti mesta, ako je Lúčna alebo Čemerné, ponúkajú bývanie v menej rušnom prostredí, často s výhľadom na okolitú prírodu. Tieto lokality sú ideálne pre tých, ktorí hľadajú pokoj a súkromie, pričom si stále zachovávajú dobrú dostupnosť k základným službám.
Pri výbere bytu je dôležité zvážiť aj dopravnú dostupnosť. Vranov nad Topľou je síce menšie mesto, ale dobré autobusové spojenie a blízkosť k hlavným cestným ťahom sú výhodou pre obyvateľov, ktorí dochádzajú za prácou alebo potrebujú cestovať do iných miest.
Finančné aspekty a realitný trh vo Vranove nad Topľou
Trh s nehnuteľnosťami vo Vranove nad Topľou ponúka široké spektrum cien a typov nehnuteľností. Podľa dostupných údajov je v lokalite Vranov nad Topľou evidovaných viacero realitných ponúk, z čoho značná časť sú byty na predaj. Priemerná cena nehnuteľnosti v lokalite sa pohybuje okolo 122-tisíc eur, pričom priemerná cena bytu je o niečo nižšia, okolo 104-tisíc eur. Ceny sa však výrazne líšia v závislosti od veľkosti, stavu, lokality a vybavenosti bytu.
Cena 5-izbového bytu vo Vranove nad Topľou sa bude prirodzene odvíjať od jeho úžitkovej plochy, ktorá môže dosahovať aj nad 80 m² a viac. Napríklad, priestranný 4-izbový byt s balkónom a úžitkovou plochou 80 m² sa môže pohybovať v cenovej relácii okolo 169.000,- €. 3-izbové byty s loggiou o výmere 73 m² sa pohybujú okolo 91.890,- €. Menšie 2-izbové byty, aj keď prerobené na 3-izbové, s plochou okolo 52 m² sa môžu predávať za ceny okolo 96.990,- €.
Ako vypočítať komerčné nájomné [zjednodušená cena za štvorcový meter]
Je dôležité sledovať aktuálne štatistické údaje o cenách za meter štvorcový. Pri celkovej rozlohe je priemerná cena 1431 eur za meter štvorcový a pri podlahovej - úžitkovej ploche je to 1599 eur za meter štvorcový. Pri kúpe 5-izbového bytu, ktorý má typicky väčšiu úžitkovú plochu, je preto kľúčové porovnať cenu za meter štvorcový s ostatnými ponukami na trhu.
Pri kúpe bytu je tiež dôležité brať do úvahy dodatočné náklady, ako sú poplatky za právny servis, daň z prevodu nehnuteľnosti, poplatky spojené s hypotekárnym úverom a prípadné náklady na rekonštrukciu. Mnohé realitné kancelárie ponúkajú bezplatný prepočet hypotéky a bezplatné spracovanie podkladov pre jej schválenie, čo môže proces kúpy výrazne uľahčiť.
Pri predaji bytu existuje aj možnosť podmienky predaja, ako je napríklad nechať nájomcov v byte na určitý čas, čo môže byť zaujímavé pre investičné účely.
Tipy pre potenciálnych kupujúcich 5-izbového bytu
Pri hľadaní 5-izbového bytu vo Vranove nad Topľou je dôležité postupovať systematicky a zvážiť všetky aspekty.
- Definujte svoje potreby: Pred začatím hľadania si jasne stanovte, koľko izieb reálne potrebujete, aká veľkosť bytu je pre vás optimálna a aké sú vaše priority ohľadom lokality a občianskej vybavenosti.
- Preskúmajte lokalitu: Navštívte rôzne časti mesta a zistite si informácie o občianskej vybavenosti, dopravnej dostupnosti, bezpečnosti a potenciálnom hluku.
- Skontrolujte stav bytu a bytového domu: Pri obhliadke venujte pozornosť nielen samotnému bytu, ale aj stavu bytového domu, spoločných priestorov, strechy, fasády a technických rozvodov. Zaujímajte sa o plánované rekonštrukcie bytového domu a ich financovanie.
- Zvážte náklady na rekonštrukciu: Ak uvažujete o byte v pôvodnom stave alebo po čiastočnej rekonštrukcii, pripravte si odhad nákladov na rekonštrukciu podľa vašich predstáv.
- Porovnajte ceny: Analyzujte aktuálne ponuky na trhu a porovnajte ceny bytov s podobnou veľkosťou, stavom a lokalitou. Sledujte priemerné ceny za meter štvorcový.
- Využite služby realitných kancelárií: Realitné kancelárie vám môžu pomôcť s vyhľadávaním vhodných nehnuteľností, organizovaním obhliadok a zabezpečením právneho servisu. Overte si, či realitná kancelária pôsobí aj v regióne Vranov nad Topľou.
- Financovanie: Ak plánujete kúpu prostredníctvom hypotekárneho úveru, vopred si zistite vaše možnosti a požiadajte o bezplatný prepočet hypotéky.

Kúpa 5-izbového bytu vo Vranove nad Topľou je významným krokom, ktorý si vyžaduje dôkladnú prípravu a informovanosť. S dostatkom priestoru, dobrou lokalitou a potenciálom na prispôsobenie interiéru, môže takýto byt predstavovať ideálne miesto pre rast a rozvoj vašej rodiny.