Téma článku sa zameriava na predaj a prenájom 4-izbových bytov, pričom osobitnú pozornosť venuje nehnuteľnostiam po kompletnej rekonštrukcii. V súčasnom realitnom trhu je dopyt po priestranných bytoch, ktoré zároveň ponúkajú moderné bývanie a komfort, extrémne vysoký. Mnohé z ponúkaných nehnuteľností prešli rozsiahlou obnovou, ktorá zahŕňa nielen estetické úpravy, ale aj zásadné technické zmeny. Tieto rekonštrukcie sa často zameriavajú na zmenu dispozície, modernizáciu elektroinštalácie, vodovodných a odpadových rozvodov, výmenu okien a dverí, ako aj na inštaláciu nových podláh a sanít.

Priestor a Dispozícia: Kľúč k Pohodlnému Životu
Štvorizbový byt tradične ponúka dostatočný priestor pre rodiny s deťmi, ale aj pre jednotlivcov či páry, ktoré ocenia možnosť vytvorenia pracovného kútika, hosťovskej izby alebo šatníka. V ponuke sa objavujú byty s pôvodnou štvormiestnou dispozíciou, ako aj tie, ktoré boli šikovne prerobené z pôvodne väčších bytov, alebo naopak, kde bola trojizbová dispozícia sofistikovane upravená na štvormiestnu.
V Nitre sa napríklad ponúka výnimočne priestranný a svetlý 4-izbový byt (aktuálne 3 izbový) na ulici Ľudovíta Okánika. Tento byt na 9. poschodí z 13 ponúka dva samostatné izby a dostatok úložného priestoru vďaka veľkým vstavaným skriniam v spálni a na chodbe. Denná časť bytu je tvorená veľkorysou kuchyňou a kúpeľňou s vaňou a WC. Zaujímavým prvkom je priestranná obývacia izba prepojená s otvorenou pracovňou, ktorá má potenciál byť úplne uzavretá a vytvoriť tak ďalšiu miestnosť s priamym prechodom do spálne, čím sa vytvorí intímna nočná zóna oddelená od zvyšku domácnosti. K bytu prislúcha aj nadštandardná loggia s výmerou približne 6 m², prístupná pozdĺž dvoch izieb, s príjemným výhľadom a priestorom na relax. Bytový dom prešiel obnovou vrátane zateplenia.
Iná ponuka z Bratislavy, konkrétne z Petržalky na ulici Švabinského, predstavuje 4-izbový byt s výmerou 83,37 m² na 7. poschodí z 9. Každé poschodie disponuje len dvoma bytmi, čo zaručuje väčšie súkromie. Byt pozostáva zo vstupnej chodby, obývacej izby, troch samostatných izieb, kuchyne rozšírenej o loggiu, kúpeľne a samostatnej toalety. Byt je slnečný a svetlý, orientovaný na dve svetové strany - západ a východ. Prislúcha k nemu pivničná kobka. Bytový dom je udržiavaný a boli v ňom vymenené výťahy. Mesačné zálohové predpisy sú vo výške 372,- Eur (správca) a 40,- Eur (elektrina a plyn podľa ročnej spotreby). Poloha bytu ponúka kompletnú občiansku vybavenosť a výbornú dostupnosť do centra mesta aj na obchvat, dostatok zelene, detské ihriská, škôlku, základnú školu, reštaurácie, obchody a služby. Parkovanie je bezproblémové s možnosťou využitia PASS opakovacieho systému.
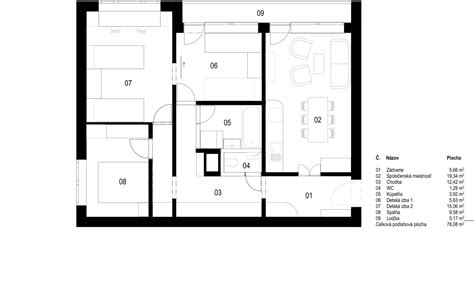
V Bratislave, v mestskej časti Bratislava II, sa ponúka moderný priestranný 4-izbový byt po kompletnej rekonštrukcii s loggiou v tichej lokalite. Tento byt je navrhnutý s dôrazom na komfort a praktickosť, pričom interiér kombinuje nadčasový dizajn s funkčnosťou.

Komplexná Rekonštrukcia: Nový Život Pre Staré Nehnuteľnosti
Kompletná rekonštrukcia je kľúčovým pojmom, ktorý svedčí o rozsahu prác vykonaných na byte. V Košiciach, na Ždiarskej ulici v mestskej časti Nad jazerom, sa predáva 3-izbový byt (64 m²) po kompletnej rekonštrukcii z roku 2022. Rekonštrukcia zahŕňa murované bytové jadro, nové rozvody vody, odpadu, novú elektroinštaláciu, plastové okná, plávajúcu podlahu, novú kuchynskú linku so spotrebičmi a bezpečnostné dvere. Byt sa nachádza na 4. poschodí zo 7 v zateplenom bytovom dome s výťahom a prislúcha k nemu pivnica. Dispozícia pozostáva zo vstupnej chodby, obývacej izby s loggiou, spálne, detskej izby, samostatnej kuchyne, samostatnej kúpeľne a samostatnej toalety. Všetky izby sú nepriechodné.
Ďalšou ponukou s kompletnou rekonštrukciou je moderný priestranný 4-izbový byt v Bratislave II. Tento byt prešiel rozsiahlou obnovou, ktorá zahŕňa kompletnú výmenu elektroinštalácie, vodovodných a odpadových potrubí, ako aj inštaláciu podlahového kúrenia. V byte sa nachádzajú plastové okná s exteriérovými žalúziami, laminátové podlahy a interiérové dvere značky Porta. Vchodové bezpečnostné dvere sú značky ADLO. Kuchynská linka je na mieru so vstavanými spotrebičmi.
V Komárne, na VII. sídlisku, sa ponúka na predaj kompletne prerobený 4 izbový byt s balkónom. V byte prebehla kompletná rekonštrukcia s výmenou všetkých inžinierskych sietí (elektrika, voda, potrubia, radiátory). Kúpeľňa bola prepojená s toaletou, čím vznikla priestrannejšia miestnosť. Vybavenie kuchyne zahŕňa murovanú špajzu, kuchynskú linku, kombinovaný sporák, chladničku s mrazničkou, kuchynský stôl a stoličky. Vybavenie kúpeľne zahŕňa klasickú vaňu, umývadlo so skrinkou, práčku a toaletu. Zariadenie v byte je možné dohodnúť.
V Bratislave, na ulici Wolkrova v Petržalke, sa nachádza zaujímavá ponuka na predaj pôvodne 4-izbového bytu, prerobeného na dva 2-izbové byty. Každá bytová jednotka má vlastný vstup, kúpeľňu, WC, kuchyňu, spálňu, klimatizáciu, umývačku riadu a práčku. Obe jednotky sú aktuálne prenajaté, spolu za sumu 1 500 € mesačne, vrátane nákladov a internetu. Bytový dom prešiel rekonštrukciou - zateplenie, nová fasáda, stúpačky, nové výťahy, plastové okná v spoločných priestoroch, vstupné priestory, schránky a vstupná brána na čip. Lokalita na začiatku Petržalky patrí medzi najvyhľadávanejšie časti mesta vďaka výbornej dostupnosti do centra a zároveň blízkosti prírody.

Lokalita a Občianska Vybavenosť: Dôležité Predpoklady Kvalitného Bývania
Výber lokality je rovnako dôležitý ako samotný stav nehnuteľnosti. V Bratislave sa hľadajú pokojné a nové lokality, kde si výhody mesta užívate v pokoji a kľudu, v blízkosti lesov Malých Karpát. Príkladom je Rínok Rača, ktorý sa nachádza v bratislavskej časti Rača, neďaleko kvalitnej mestskej vybavenosti. Atraktívna lokalita pri Kubačovej ulici je vhodná pre milovníkov turistiky a cyklistiky. Byt v tejto lokalite sa nachádza na 2. poschodí z celkových 12 podlaží, vo veľmi tichej a bezpečnej lokalite Rače. K bytu je zabezpečené vnútorné garážové státie priamo v budove.
V Košiciach, v mestskej časti Nad jazerom, sa predávaný 3-izbový byt nachádza vo vyhľadávanej lokalite s kompletnou občianskou vybavenosťou v blízkosti obchodov, škôl, škôlok. V Leviciach sa ponúka príjemný a moderne zrekonštruovaný 3-izbový byt na Konopnej ulici, ktorý sa nachádza v pokojnej lokalite s kompletnou občianskou vybavenosťou v pešej dostupnosti.
V Nitre, v najlepšej časti Chrenovej, sa nachádza 4-izbový byt, ktorý je ideálnou voľbou pre rodinu hľadajúcu dostatok miesta za férovú cenu. Vďaka nízkej réžii ide o bezpečnú a ekonomicky rozumnú kúpu. Lokalita poskytuje kompletnú občiansku vybavenosť, ako aj výbornú dopravnú dostupnosť do centra Nitry a vynikajúce spojenie MHD, ako aj rýchle napojenie na diaľnicu. V blízkosti sa nachádzajú univerzity, čo robí z lokality obľúbenú oblasť pre nájom. Okrem toho je v blízkosti aj množstvo zelene, parkov a rekreačných možností, ideálne na prechádzky, jogging či šport.
V Bratislave, v historickom centre na pešej zóne, sa v rezidenčnom projekte City Gate prenajíma dizajnový 2-izbový byt. Táto lokalita spája výhody mestského bývania s luxusom a eleganciou.
Video z nehnuteľnosti - Byt v centre Bratislavy
Investičný Potenciál a Finančné Možnosti
Niektoré z ponúkaných bytov sú prezentované aj ako ideálna investícia. Pôvodne 4-izbový byt prerobený na dva 2-izbové byty v Petržalke na Wolkrovej ulici je aktuálne prenajatý za 1 500 € mesačne, čo predstavuje zaujímavý príjem pre investora. V Nitre sa tiež uvádza, že byt je možné využiť ako investičné bývanie, nakoľko sa v blízkosti nachádzajú univerzity a lokalita je obľúbená pre nájom.
Pri kúpe nehnuteľnosti sú finančné možnosti často dôležitým faktorom. Niektoré ponuky explicitne uvádzajú možnosť kúpy prostredníctvom hypotéky a ponúkajú asistenciu pri jej vybavovaní. V prípade predaja 4-izbového bytu na Ždiarskej ulici v Košiciach je uvádzaná cena bez zariadenia, s možnosťou dohody. V Komárne, kde sa predáva kompletne prerobený 4-izbový byt, je v cene zahrnutý kompletný právny servis a v prípade záujmu o kúpu cez hypotekárny úver je zabezpečenie hypotéky bezplatné.
Je dôležité si všímať aj detaily týkajúce sa nákladov na bývanie. V Nitre sa pri 4-izbovom byte na ulici Ľudovíta Okánika uvádza, že byt kombinuje výhodu nadštandardnej plochy s nízkymi prevádzkovými nákladmi. V Bratislave, pri ponuke na ulici Švabinského, sú mesačné zálohové predpisy v rozumnej výške. V inom prípade predaja 4-izbového bytu v Bratislave sú uvádzané náklady na réžiu ako mimoriadne dôležité, pričom byt má vlastný kotol plynového kúrenia s podlahovým systémom.
Špecifické Ponuky a Detaily
Okrem štandardných 4-izbových bytov sa objavujú aj špecifické ponuky. Napríklad, v blízkosti Bardejova, v Kľušove, sa od 01.04.2026 ponúka na prenájom novo zariadený byt (nie 4-izbový, ale s viacerými izbami) s cenou 500 € mesačne. Tento byt má jednu spálňu a obývačku, kompletne zariadenú kuchyňu a obývačku s novým LCD televízorom a sedačkou. V spálňach sú vstavané skrine a manželská posteľ.
V Bratislave, na ulici Pod gaštanmi, sa predáva novostavba 1,5-izbová chatka, ktorá plnohodnotne nahradí trvalé bývanie s pozemkom a malou záhradkou. Tento útulný, klimatizovaný a kompletne zariadený byt (21 m²) má k dispozícii záhradu s rozlohou 159 m². Domček je dizpozične riešený ako 1,5-izbový s obývacou izbou s kuchyňou a spacím kútom, a kúpeľňou s WC. Predáva sa kompletne zariadený, pripravený na okamžité bývanie. Súčasťou je terasa, elektrické podlahové kúrenie, mestská voda, kanalizácia, optický internet a TV, a klimatizácia. Parkovanie je zabezpečené pre dve autá priamo na pozemku.
V Bratislave, v rezidenčnom projekte City Gate, sa okrem dizajnového 2-izbového bytu prenajíma aj dizajnový jednoizbový byt. Tento apartmán ponúka nadštandardnú výmeru, vysoké stropy a prvotriedne dizajnové spracovanie. Dispozične pozostáva zo vstupnej predsiene s úložným priestorom a hosťovskej kúpeľne. Dominantou je obývacia izba prepojená s plne vybavenou kuchyňou, z ktorej vedú dvere do šatníka. Súčasťou je aj samostatná špajza a práčovňa s práčkou a sušičkou. Byt je zariadený v luxusnom štandarde s použitím kvalitných materiálov.
V priestoroch bytového domu v Bratislave sa nachádza aj tzv. "kobka" - nebytový priestor, ktorý sa prenajíma spolu s bytom a poskytuje možnosť ďalšieho úložného priestoru.
Pri predaji 4-izbového bytu v Bratislave na ulici Švabinského je dôležité spomenúť, že mesačné zálohové predpisy sú vo výške 372,- Eur (správca), 40,- Eur (elektrina) a plyn podľa ročnej spotreby. Cena nehnuteľnosti je 299.000,- Eur a bude k nej pripočítaná sprostredkovateľská odmena realitnej kancelárie, ktorá zahŕňa všetky poplatky spojené s prevodom, právny a hypotekárny servis.
Tieto rôznorodé ponuky ukazujú široké spektrum možností na trhu s nehnuteľnosťami, kde si každý môže nájsť byt zodpovedajúci jeho potrebám a preferenciám, či už ide o priestranný 4-izbový byt po kompletnej rekonštrukcii, alebo menšiu, ale moderne zariadenú nehnuteľnosť s pridanou hodnotou v podobe záhrady či unikátnej lokality.
tags: #4 #izbovy #byt #zahranicie #kompletna #rekonstrukcia